Ga naar inhoud

Te koop: woonhuis Bûtewacht 65 9202 JR Drachten

Makelaarswerk Drachten Garantiemakelaars
Neem contact met mij op

Verkocht o.v.

€ 350.000,- k.k.

Ruime twee-onder-een-kapwoning met garage, serre én werk-/slaapkamer op de begane grond
– gelegen in woonwijk De Wiken in Drachten

Op een royale kavel van maar liefst 577 m² eigen grond mogen wij u deze ruime en praktische twee-onder-een-kapwoning aanbieden. De woning beschikt onder andere over een aangebouwde garage, vier slaapkamers op de verdieping, een werk-/slaapkamer op de begane grond, én een heerlijke serre aan de tuinzijde.

De woning is gelegen aan de rand van de woonwijk De Wiken, een rustige en kindvriendelijke buurt met uitstekende voorzieningen op loopafstand. Zo vindt u in de directe omgeving een modern winkelcentrum, gezondheidscentrum, basisscholen, sportfaciliteiten en meerdere speelvoorzieningen. Daarnaast zijn er goede busverbindingen, en zit u binnen enkele minuten op de uitvalswegen richting Groningen, Leeuwarden en Heerenveen.

Drachten is een van de grotere plaatsen in Friesland met een uitgebreid aanbod aan winkels, scholen (waaronder middelbaar onderwijs en MBO), horeca, cultuur en recreatie. Ook natuurgebieden zoals het Drents-Friese Wold en het Bakkeveense Duinen liggen op korte afstand.

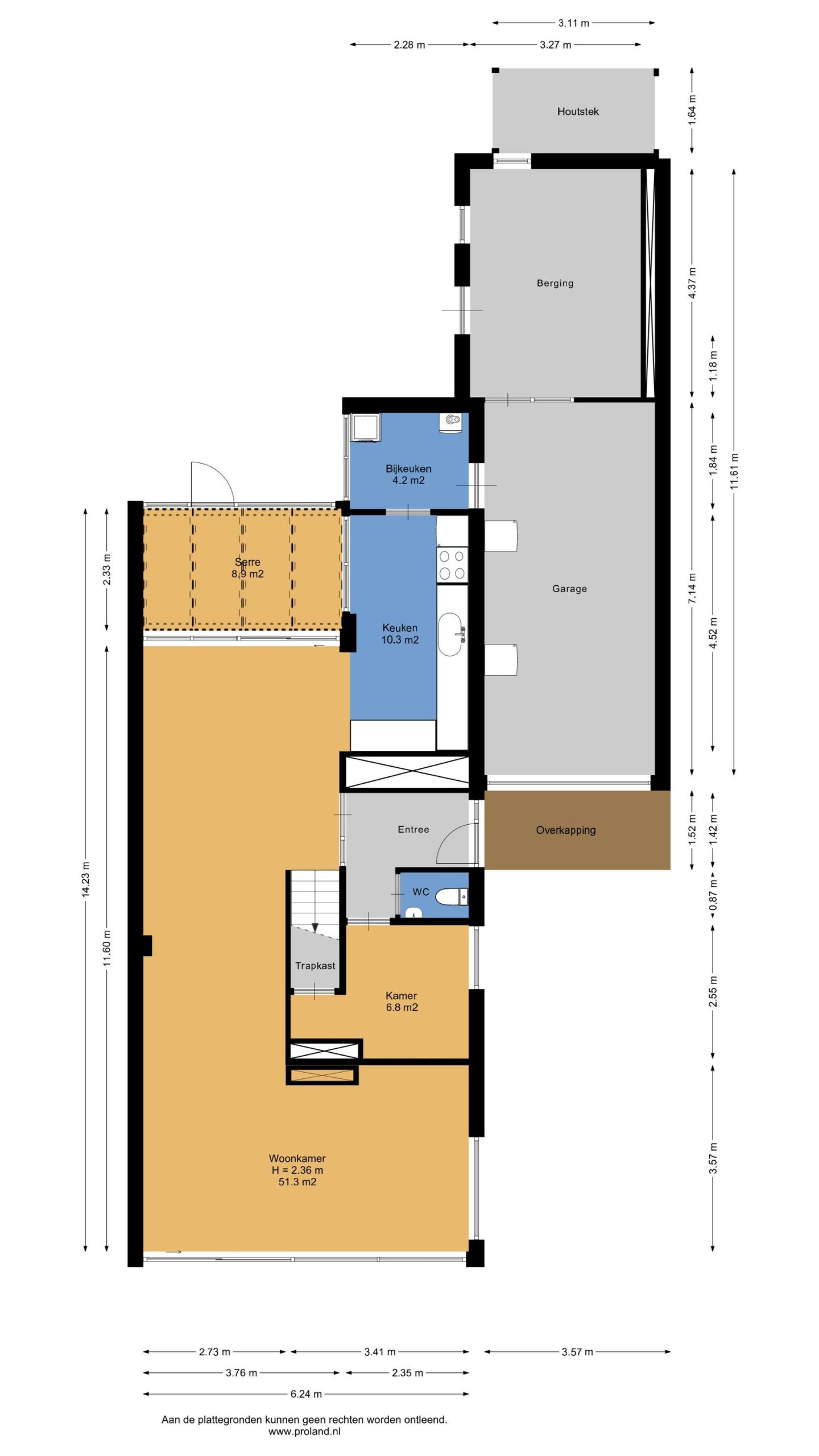
Begane grond:
Zij-entree, hal met toilet, ruime L-vormige woonkamer met serre en schuifpui naar de tuin, open keuken in praktische L-opstelling, werkkamer/slaapkamer op de begane grond, voorzien van trapkast, bijkeuken met aansluitingen voor witgoed, doorgang naar de garage met extra berging en achterom.

Eerste verdieping:
Overloop, vier slaapkamers, waarvan twee met vaste kasten en een met bergzolder, badkamer met douche, toilet en wastafelmeubel

Zolder:
Middels vlizotrap bereikbare bergzolder

Bijzonderheden:
– Bouwjaar: 1974
– Perceeloppervlakte: 577 m² eigen grond
– Verwarming via CV-combiketel (eigendom, bouwjaar 2013)
– Energielabel C
– Ruime voortuin op het westen, achtertuin op het oosten
– Gunstige ligging nabij voorzieningen en uitvalswegen
– Serre met veel lichtinval, perfect voor voorjaar en najaar

Bent u op zoek naar een ruime woning met veel mogelijkheden, zowel binnen als buiten, in een fijne woonomgeving met alle voorzieningen binnen handbereik? Dan is deze woning aan de rand van De Wiken zeker een bezichtiging waard.

Openhuis:
U bent van harte welkom om de woning zelf te ervaren tijdens het openhuis op vrijdag 17 oktober van 16.00 tot 17.00 uur. Een afspraak maken is niet nodig “vrije inloop”. Voorafgaand aan het openhuis plannen we geen kijkafspraken.

  • 155 m2
  • 577 m2
  • 5

Kenmerken Bûtewacht 65

Overdracht

Vraagprijs€ 350.000,- k.k.
AanvaardingIn overleg

Oppervlaktes en inhoud

Perceel oppervlakte577 m2
Woonoppervlakte155 m2
Inhoud723 m3

Bouw

SoortEengezinswoning
BouwvormBestaande bouw
Bouwjaar1974
Dak typeSamengesteld dak
IsolatievormenDakisolatie, Dubbelglas
EnergielabelC

Indeling

Aantal verdiepingen3
Aantal kamers6
Aantal slaapkamers5
Aantal badkamers1

Maandlasten

Ligging Bûtewacht 65

Voorzieningen

Centraal gelegen informatie over de buurt

Aantal inwoners

In de gemeente

55.695

Leeftijd

in percentages van totaal

Huishoudsamenstelling

in percentages van totaal

44%

20% NL

28%

20% NL

28%

20% NL

Vergelijkbaar woningaanbod