€ 475.000,- k.k.
Droom je van een woning met een garage, een zonnige tuin en een grote veranda? Aan de Henriette Polaklaan staat deze goed onderhouden twee-onder-een kapwoning die aan deze wensen voldoet. Verder zijn er drie ruime slaapkamers, een moderne keuken en een mooie keuken met inbouwapparatuur. Het buitenschilderwerk is vorig jaar gedaan en in 2020 zijn er zonnepanelen geplaatst, gericht op het westen.
Er zijn twee winkelcentra op fietsafstand, net als scholen en sportverenigingen. Voor kinderen zijn er genoeg plekken om buiten te spelen en er is een goede busverbinding met het centrum en treinstation. Het buitengebied en de uiterwaarden van de IJssel zijn prachtige plekken voor een wandeling of fietstocht. Via diverse uitvalswegen omliggende steden als Apeldoorn, Deventer, Doetinchem en Arnhem goed bereikbaar.
Indeling:
Begane grond:
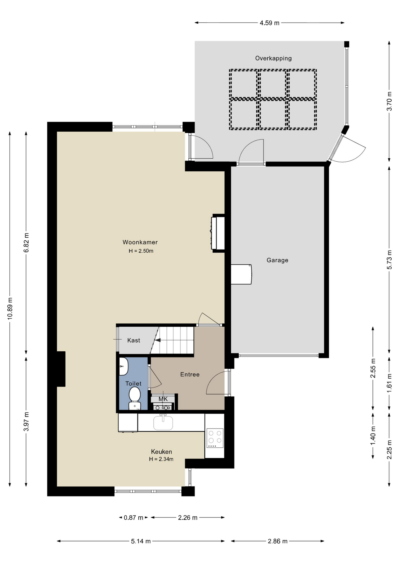
Bij de oprit is de entree van deze ruime woning, die aan de achterzijde een verrassing biedt. Maar eerst stap je de hal in, met de meterkast en de trap naar de eerste verdieping. Naast de trap is de in lichte kleuren uitgevoerde toiletruimte, met een fonteintje en deels betegelde wanden.
De tuingerichte woonkamer heeft een breedte van ruim 5.10 meter, met grote ramen aan de westkant en een Helex inbouw gashaard bij het zitgedeelte. Het plafond is voorzien van inbouwverlichting en de kleuren op de muren passen goed bij de laminaatvloer, die op bijna de hele begane grond ligt.
In de hoek van de woonkamer is een deur naar de fraaie, in 2018 gebouwde veranda met een grote lichtstraat.
Aan de voorzijde is de keuken, die in 2015 is vernieuwd. De ochtendzon verwarmt de keuken snel, en het uitzicht naar de rustige straat is fraai. Er staat een lichte hoekopstelling, met een granieten aanrechtblad en achterwand, en alle benodigde apparatuur is ingebouwd: een inductie kookplaat, afzuigkap, vaatwasser, combi-oven en een koelkast.
Dankzij de veranda kun je, overdekt en droog, vanuit de woning naar de aangebouwde garage lopen. Je kunt deze ruimte gebruikt voor de auto, (kinder)fietsen, een werkbank en als berging/provisieruimte.
Eerste verdieping:
Een groot voordeel van deze woning zijn de ruime slaapkamers op de eerste verdieping, beiden over de hele breedte van de woning. Op de vloer ligt laminaat en de kamer aan de voorzijde heeft lichtinval vanaf twee zijden. In de master bedroom, aan de voorzijde, is de muur achter het bed voorzien van mooi behang.
Ook de badkamer maakt een goede indruk. Aan de rechterzijde, naast het wastafelmeubel, is de inloopdouche en aan de linkerzijde staat het heerlijke ligbad. Uiteraard is er ook een toilet en het tegelwerk, in wit en zwart, geeft de badkamer een luxe uitstraling.
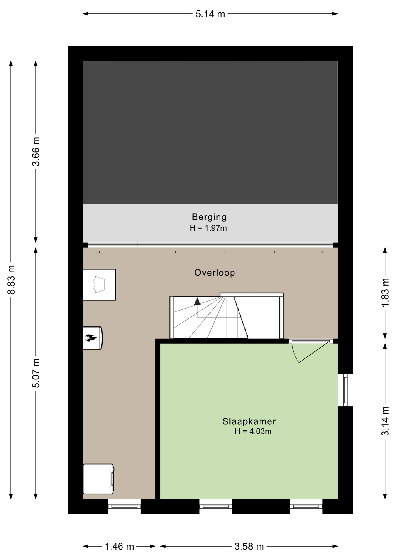
Tweede verdieping:
Onder het hoge, schuine dak zijn een ruime overloop en de derde slaapkamer. De slaapkamer, met ramen aan twee zijden, is aan de voorzijde en de L-vormige overloop biedt onder andere ruimte aan de wasapparatuur. In de schuinte van het dak, achter de schuifdeuren, is een royale berging over de hele breedte van het huis.
Exterieur:
De luxe veranda staat in open verbinding met de tuin, gesitueerd op het westen. In het achterste deel is een terras gemaakt, en verder zie je een gazon, houten schuttingen en gevarieerde beplanting. Ook in de voortuin staat veel groen, deels groenblijvend en met mooie kleuren. Op de oprit kan de auto staan en rechts van de garage is een achterom, met een poort naar de veranda.
Bijzonderheden:
– Dak-, spouwmuur- en vloerisolatie;
– Houten kozijnen met isolerende beglazing;
– Het buitenschilderwerk is in 2024 gedaan;
– Verwarming en warm water via een HR-ketel (Nefit, 2010);
– 8 zonnepanelen van 300 Wp, geplaatst in 2020;
– Fraaie veranda in de achtertuin (2018);
– Drie ruime slaapkamers;
– Vernieuwde keuken en badkamer;
– Energielabel B
- 131 m2
- 242 m2
- 3
Kenmerken Henriette Polaklaan 110
Overdracht
| Vraagprijs | € 475.000,- k.k. |
|---|---|
| Aanvaarding | In overleg |
Oppervlaktes en inhoud
| Perceel oppervlakte | 242 m2 |
|---|---|
| Woonoppervlakte | 131 m2 |
| Inhoud | 530 m3 |
Bouw
| Soort | Eengezinswoning |
|---|---|
| Bouwvorm | Bestaande bouw |
| Bouwjaar | 1996 |
| Dak type | Lessenaardak |
| Isolatievormen | Muurisolatie, Dubbelglas |
| Energielabel | B |
Indeling
| Aantal verdiepingen | 3 |
|---|---|
| Aantal kamers | 4 |
| Aantal slaapkamers | 3 |
| Aantal badkamers | 1 |
Maandlasten
Ligging Henriette Polaklaan 110
Voorzieningen
Centraal gelegen informatie over de buurt
Aantal inwoners
In de gemeente
47.340
Leeftijd
in percentages van totaal
Huishoudsamenstelling
in percentages van totaal
21%
20% NL
30%
20% NL
49%
20% NL