€ 230.000,- k.k.
OPEN HUIS WOENSDAG 23 APRIL 15.30-17.30 UUR.
Registreer je via de knop “Vraag een bezichtiging aan” en ontvang alle informatie voorafgaande aan het open huis. Alleen registratie via deze manier.
Zie je vaak verbouwde en gestijlde woningen te koop, maar niet naar jouw smaak? Misschien wil je geen marmerlook en een visgraatvloer, wil je andere kleuren of vind je het gewoon leuk om zelf te verbouwen en klussen…
Voor deze mensen hebben we deze uitgebouwde woning in de Rosmolenbuurt. Aan de achterzijde zijn een uitbouw en een dakopbouw gerealiseerd, waardoor er meer ruimte is dan de voorzijde doet vermoeden. Boven zijn drie slaapkamers, de doucheruimte en een bergzolder waardoor er genoeg plek is voor een gezin. Op de begane grond vind je onder anderen de woonkamer en eetkeuken, die samen circa 45 m2 groot zijn. De tuin met berging/hobbyruimte en achterom maakt het huis compleet.
Je woont in de Rosmolenbuurt; een wijk met karakter waar in de afgelopen jaren veel is vernieuwd. Hier wonen starters, gezinnen en senioren op een mooie plek in Zaandam, op loop-/fietsafstand van het centrum. In de wijk bevinden zich kinderopvang, een basisschool, buurthuis, speeltuin, het Burgemeester In ’t Veldtpark en een school voor speciaal onderwijs. Er zijn goede busverbindingen, onder andere met het treinstation en Amsterdam Centraal. Zo is het vanaf het treinstation maar 12 minuten naar Amsterdam CS! Liever met de auto? De A7 en de A8, die in verbinding staat met de Ring A10, zijn met de auto goed bereikbaar.
Indeling:
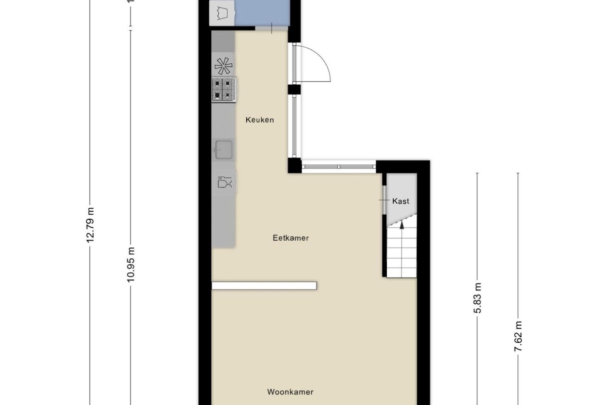
Begane grond:
Via de hal loop je naar de woonkamer, die aan de achterzijde is uitgebouwd. Het niveauverschil in de vloer, die is afgewerkt met vloerdelen, geeft aan hoeveel extra ruimte er is gecreëerd. De oppervlakte van de woonkamer en keuken is circa 45 m2, klaar voor een nieuwe invulling. Onder de trap is een handige bergkast en in de eetkeuken staat een lange, eikenhouten wandopstelling met een gaskookplaat, afzuigkap, vaatwasser en een oven. In het achterste deel van de aanbouw is een toilet-/wasruimte, met kunststof wandpanelen en een raam in de buitengevel.
Eerste verdieping:
Dankzij de dakopbouw is er verrassend veel ruimte op de eerste verdieping. Aan de voorzijde zijn twee slaapkamers, waarvan een met een dakkapel. De derde slaapkamer en de overloop met doucheruimte bevinden zich aan de achterzijde.
Kies je voor de huidige indeling met drie slaapkamers, of kies je voor twee ruime slaapkamers en een badkamer? Met een totale vloeroppervlakte van circa 35 m2 kun je hier de indeling creëren die bij jouw woonwensen past.
Zolder:
In een van de slaapkamers is een plafondluik, die toegang tot de zolder verleend. Verder is er een kleine vliering, te bereiken vanaf de overloop.
Berging en tuin:
Vanuit de keuken is de tuin te bereiken, gesitueerd op het noorden. De berging met elektra en verwarming is een prima plek voor de hobbyist. Het bijgebouw dient, net als de woning, gerenoveerd te worden.
De tuin is geheel betegeld, waardoor er genoeg plek is om buiten te zitten. Wil je meer groen, dan is dat mogelijk en behoud je nog altijd een fijne plek voor een loungeset.
Bijzonderheden:
– Volle eigendom
– Aanbouw en een dakopbouw aan de achterzijde
– Hardhouten kozijnen (voorzijde eerste verdieping) en kunststof kozijnen (overig), voorzien van isolerende beglazing
– Verwarming via een HR-ketel (Intergas, eigendom), warm water via de HR-ketel en een boiler
– Energielabel E
– Fundering is matig en in beweging, er is een meetrapport aanwezig. Fundering zal moeten worden hersteld, indicatie offerte herstel is aanwezig voor de woningen van het blok.
- 82 m2
- 97 m2
- 3
Kenmerken Eendrachtstraat 43
Overdracht
| Vraagprijs | € 230.000,- k.k. |
|---|---|
| Aanvaarding | In overleg |
Oppervlaktes en inhoud
| Perceel oppervlakte | 97 m2 |
|---|---|
| Woonoppervlakte | 82 m2 |
| Inhoud | 290 m3 |
Bouw
| Soort | Eengezinswoning |
|---|---|
| Bouwvorm | Bestaande bouw |
| Bouwjaar | 1902 |
| Dak type | Mansardedak |
| Isolatievormen | Dubbelglas |
| Energielabel | E |
Indeling
| Aantal verdiepingen | 3 |
|---|---|
| Aantal kamers | 4 |
| Aantal slaapkamers | 3 |
Maandlasten
Ligging Eendrachtstraat 43
Voorzieningen
- Rooms Katholieke Basisschool Willibrord 361 m Symon Claeszstraat 9 ZAANDAM
- Hogeschool IPABO Amsterdam Alkmaar 9 km Jan Tooropstraat 136 AMSTERDAM
- Stichting ROC TOP 1 km Provincialeweg 302 ZAANDAM
- Hogeschool IPABO Amsterdam Alkmaar 9 km Jan Tooropstraat 136 AMSTERDAM
- Universiteit van Amsterdam 10 km Spui 21 AMSTERDAM
Centraal gelegen informatie over de buurt
Aantal inwoners
In de gemeente
153.679
Leeftijd
in percentages van totaal
Huishoudsamenstelling
in percentages van totaal
47%
20% NL
25%
20% NL
28%
20% NL