Ga naar inhoud

Te koop: woonhuis Clusiuslaan 309 1504 HA Zaandam

Beschikbaar

€ 400.000,- k.k.

Deze ruime woning nabij het Darwinpark vormt een goede basis om naar eigen smaak te verbouwen en moderniseren. Op het dak liggen zonnepanelen, het merendeel van de kozijnen is van kunststof en de HR-ketel dateert van 2017. In totaal zijn er vijf slaapkamers, waarvan een op de tweede verdieping, en aan de woonkamer is een tuinkamer met twee lichtkoepels gebouwd. Openslaande deuren geven toegang tot de achtertuin, met een berging en achterom En de voortuin? Heerlijk ruim en op het zonnige zuiden!

De Clusiuslaan is een rustige straat aan de rand van de wijk, met het Darwinpark op nog geen 50 meter afstand. In de wijk is volop speelgelegenheid voor de kinderen en voorzieningen als kinderopvang, gastouderopvang en basisonderwijs zijn in de nabijheid. Ook sportverenigingen, openbaar vervoer en supermarkten zijn op loop/fietsafstand. Met de fiets is het ongeveer 10 minuten naar het NS-station en het Stadshart van Zaandam met winkels, restaurants en uitgaansgelegenheden. De oprit van de snelweg A8, richting de Ring A10 en A7, is ongeveer 4 kilometer rijden.

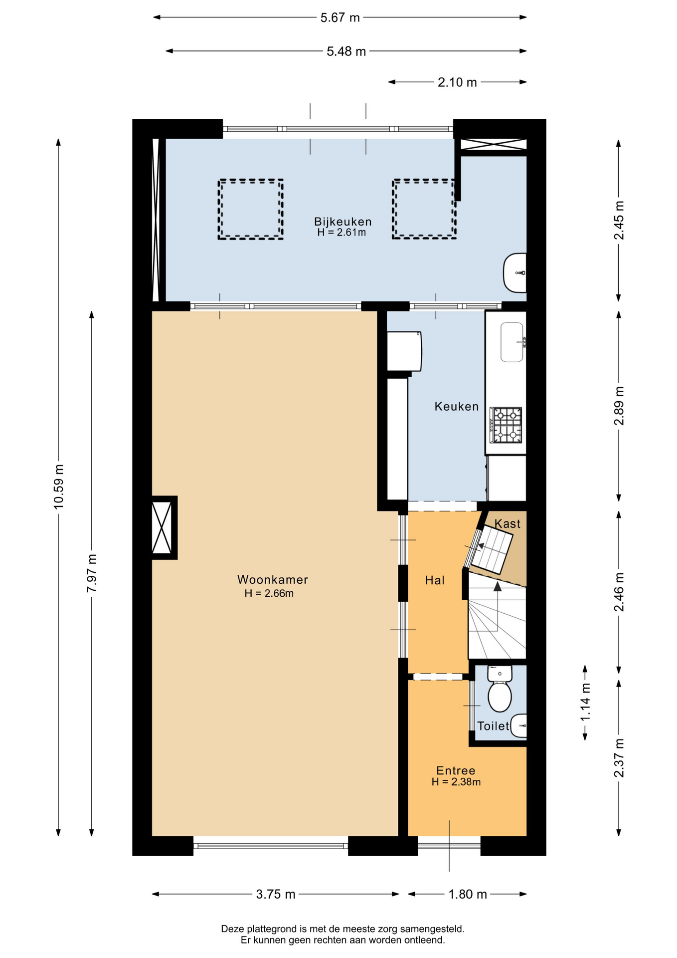
Indeling:
Begane grond:
Via de klassieke voordeur bereik je de hal, met de toiletruimte en de trap naar de eerste verdieping. Achter de deur met glas is, aan de rechterzijde, een verdiepte kelderkast. De tegelvloer ligt niet alleen in de hal, maar ook in de woonkamer en keuken.
De bijna 8 meter lange woonkamer grenst aan de achterzijde aan een circa 2.50 meter lange uitbouw, waardoor er een zeer royale leefruimte is. Kies je voor het zitgedeelte aan de voorzijde en het eetgedeelte aan de achterzijde, of wordt de tuinkamer straks een fantastische eetkamer?
In de dichte keuken, te bereiken vanuit de hal en tuinkamer, staat een dubbele wandopstelling met granieten aanrechtbladen en diverse inbouwapparatuur. De tuinkamer met grote ramen, openslaande tuindeuren en twee lichtkoepels, is een heerlijk lichte ruimte met een fonteintje, radiator en de unit van de vloerverwarming.

Eerste verdieping:
Met vier slaapkamers en een badkamer op de eerste verdieping biedt deze woning de perfecte indeling voor een gezin. Er zijn twee kamers aan de voorzijde en twee aan de achterzijde, waarvan een met een wastafel. Qua vloer-, wand- en plafondafwerking krijg je de kans om de slaapkamers naar eigen smaak te vernieuwen.
De te renoveren badkamer is ingedeeld met een wastafel, toilet en een bad. Droom je van een bad en een douche, dan is het een overweging om in een van de slaapkamers een ruime badkamer te realiseren. Zo creëer je een indeling met drie slaapkamers en twee badkamers!

Tweede verdieping:
Een vaste trap geeft toegang tot de tweede verdieping, met een dakkapel aan de achterzijde en een hoge nok. Op deze verdieping zijn een overloop met eenvoudige keuken, een berging en een ruime slaapkamer met wastafel.

Tuin:
De royale, grotendeels betegelde voortuin is gesitueerd op het zuiden en de achtertuin, met berging en achterom, op het noorden. Er is genoeg ruimte om in de zon te zitten, maar ook voor de liefhebber van een plek in de schaduw is dit het perfecte huis. Maak jij van deze tuin, en de woning, jouw droomplek in Zaandam?

Bijzonderheden:
– Volle eigendom
– Kunststof kozijnen met isolerende beglazing (m.u.v. dakkapel)
– Verwarming en warm water via een HR-ketel (Intergas, 2017, eigendom)
– 12 zonnepanelen (3188 Wp) aan de zuidkant
– Uitbouw aan de achterzijde
– Vijf slaapkamers, waarvan een met een dakkapel
– De woning dient gerenoveerd/gemoderniseerd te worden
– Verkoop onder voorbehoud van goedkeuring Rechtbank
– Energielabel C

  • 132 m2
  • 140 m2
  • 5

Kenmerken Clusiuslaan 309

Overdracht

Vraagprijs€ 400.000,- k.k.
AanvaardingIn overleg

Oppervlaktes en inhoud

Perceel oppervlakte140 m2
Woonoppervlakte132 m2
Inhoud451 m3

Bouw

SoortEengezinswoning
BouwvormBestaande bouw
Bouwjaar1964
Dak typeZadeldak
IsolatievormenDakisolatie, Dubbelglas
EnergielabelC

Indeling

Aantal verdiepingen3
Aantal kamers6
Aantal slaapkamers5
Aantal badkamers1

Maandlasten

Ligging Clusiuslaan 309

Voorzieningen

Centraal gelegen informatie over de buurt

Aantal inwoners

In de gemeente

153.679

Leeftijd

in percentages van totaal

Huishoudsamenstelling

in percentages van totaal

37%

20% NL

18%

20% NL

45%

20% NL

Vergelijkbaar woningaanbod