€ 365.000,- k.k.
Wonen aan de Oude Rijn, in het hart van Woerden!
Aan de kade van de Oude Rijn, op een van de meest karakteristieke plekken van Woerden, staat dit authentieke woonhuis met een rijke historie. Hier woon je in een rustige straat, direct aan de Oude Rijn, terwijl het historische centrum, de winkels, het station en de gezellige terrassen op loopafstand liggen. Het dagelijkse uitzicht op het kabbelende water en passerende bootjes geeft de woning een bijzondere sfeer. De woning is in de basis prima maar heeft liefde en aandacht nodig om het weer helemaal van deze tijd te maken. Wie houdt van sfeer, karakter en het zelf vormgeven van een thuis, kan hier iets heel moois van maken. De basis is goed, de ruimtes zijn verrassend royaal en de indeling biedt meerdere mogelijkheden, bijvoorbeeld een grote doorzon-woonkamer of gelijkvloers wonen op de begane grond. Dit is een huis met potentie, klaar om met aandacht en visie te worden getransformeerd tot een warme, eigentijdse en comfortabele woonplek.
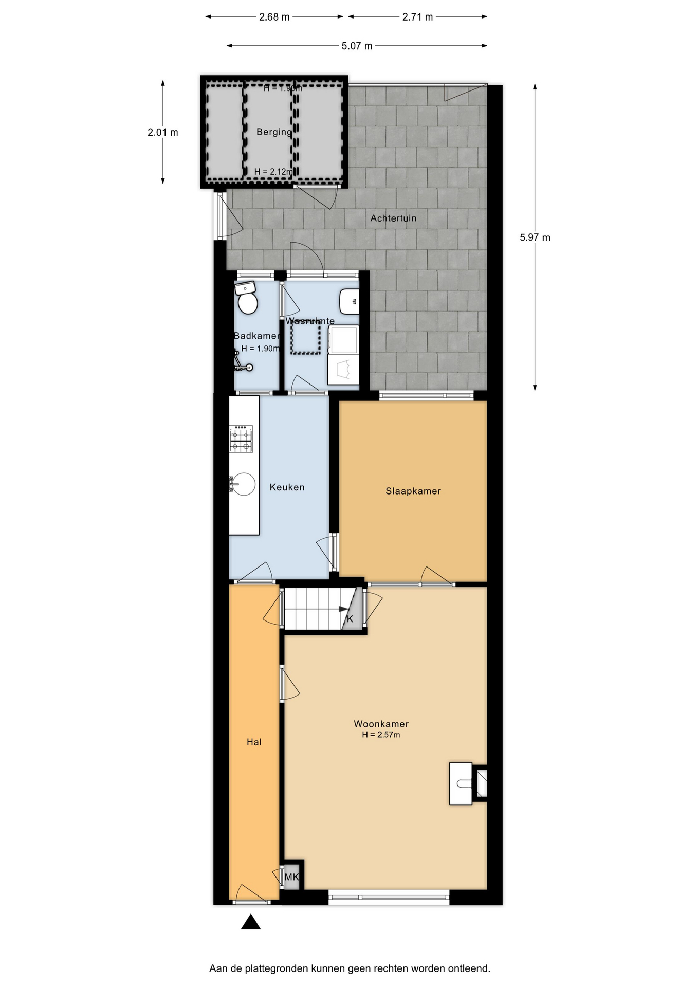
Begane grond:
Via de entree aan de kade stap je binnen in de hal, met toegang tot de woonkamer, de keuken, de trapopgang en de meterkast. Aan de voorzijde bevindt zich de woonkamer, met breed raam en uitzicht op de Oude Rijn. De ruimte is licht en heeft een prettige, rustige uitstraling. De aangrenzende kamer aan de achterzijde wordt momenteel gebruikt als slaapkamer, maar kan ook uitstekend worden ingericht als eetkamer. Door deze kamer te verbinden met de woonkamer ontstaat eenvoudig een royale doorzon-leefruimte. De keuken ligt aan de achterzijde en geeft toegang tot zowel de badkamer als de stadstuin.
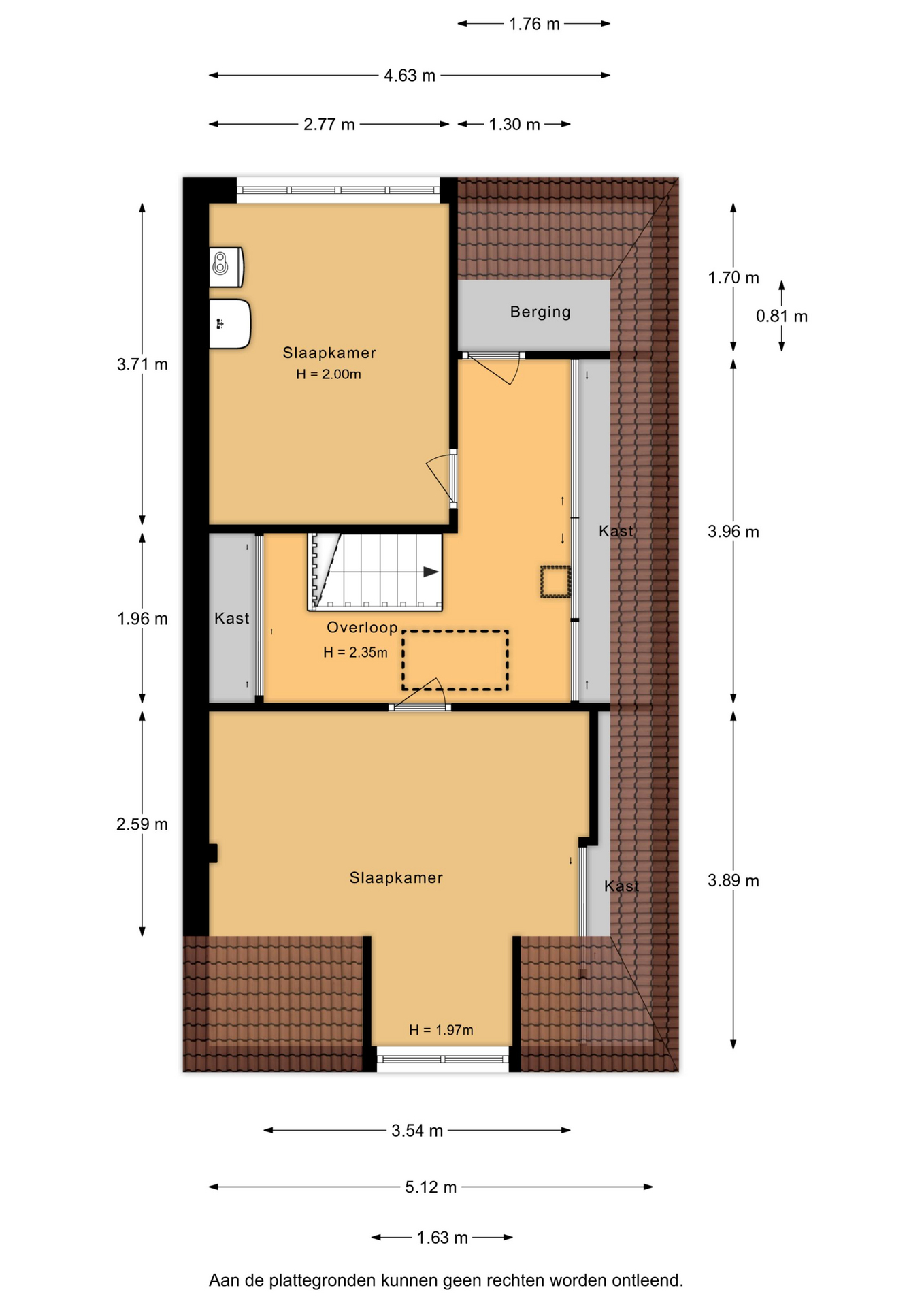
Eerste verdieping:
Op de eerste verdieping bevinden zich twee ruime slaapkamers, elk met voldoende licht en praktische bergruimte.
De kamer aan de voorzijde beschikt over een dakkapel en kijkt uit op de gezellige straatzijde. De slaapkamer aan de achterzijde is rustig gelegen.
Vliering:
Via de overloop is de vliering bereikbaar, ideaal als extra opbergruimte.
Tuin & Berging:
Achter de woning ligt een stadstuin met een prettige mate van privacy. De tuin is grotendeels onderhoudsvriendelijk aangelegd en biedt ruimte om in alle rust buiten te zitten. Achterin staat een houten berging, handig voor het stallen van fietsen en het opbergen van materialen.
Bijzonderheden:
-Bouwjaar: 1930;
-Woonoppervlakte circa 93m2;
-3 slaapkamers + vliering;
-Tuin met berging;
-Gelegen aan de Oude Rijn;
-Centrum, horeca en winkels op loopafstand;
-C.V. ketel: Nefit Pro line (2024);
-Energielabel: D;
-Mogelijkheid tot moderniseren naar eigen keuze.
Kortom:
Fantastisch wonen, nabij het centrum en aan de Oude Rijn!
- 93 m2
- 83 m2
- 3
Kenmerken Rijnkade 3
Overdracht
| Vraagprijs | € 365.000,- k.k. | 
|---|---|
| Aanvaarding | In overleg | 
Oppervlaktes en inhoud
| Perceel oppervlakte | 83 m2 | 
|---|---|
| Woonoppervlakte | 93 m2 | 
| Inhoud | 338 m3 | 
Bouw
| Soort | Eengezinswoning | 
|---|---|
| Bouwvorm | Bestaande bouw | 
| Bouwjaar | 1930 | 
| Dak type | Schilddak | 
| Isolatievormen | Gedeeltelijk dubbelglas | 
| Energielabel | D | 
Indeling
| Aantal verdiepingen | 3 | 
|---|---|
| Aantal kamers | 4 | 
| Aantal slaapkamers | 3 | 
| Aantal badkamers | 1 | 
Maandlasten
Ligging Rijnkade 3
Voorzieningen
Centraal gelegen informatie over de buurt
Aantal inwoners
In de gemeente
51.513
Leeftijd
in percentages van totaal
Huishoudsamenstelling
in percentages van totaal
32%
20% NL
32%
20% NL
36%
20% NL
 
                             
                             
                             
                             
                             
                             
                             
                             
                             
                             
                             
                             
                             
                             
                             
                             
                             
                             
                             
                             
                             
                             
                             
                             
                             
                             
                             
                             
                             
                             
                             
                             
                             
                             
                             
                             
                             
                             
                             
                             
                             
                             
                                 
                                 
                                 
                                 
                                 
                                 
                                 
                                 
                                 
                                 
                                 
                                 
                                 
                                 
                                 
                                 
                                 
                                 
                                 
                                 
                                 
                                 
                                 
                                 
                                 
                                 
                                 
                                 
                                 
                                 
                                 
                                 
                                 
                                 
                                 
                                 
                                 
                                 
                                 
                                 
                                 
                                 
                                 
                                 
                                 
                                 
                                 
                                     
                                     
                                     
                                     
                                     
                                                             
                             
                             
                             
                             
             
             
             
             
            