€ 490.000,- k.k.
Zeer royale 2/1 kapwoning met aangebouwde tuinkamer, berging en tuin met veranda gelegen aan rustige straat straat in het dorp Volkel op loopafstand van dorpspark, basisschool en enkele winkels. Het centrum van Uden ligt op circa 3,5 kilometer afstand.
De woning is gebouwd in 1974 en is rond 2000/2001 uitgebouwd met een fraaie tuinkamer. Hierdoor heeft de woning een gebruiksoppervlakte wonen van maar liefst 179 m². Naast de woning is een ruime oprit met een berging (voorheen garage) van 15 m² en daarvoor een carport. Achter de woning is ook nog een tuinberging aangebouwd van 14 m². De totale inhoud van de woning met berging is circa 736 m³. Het perceel is 281 m² groot. De woning is goed onderhouden, beschikt over een waterontharder, hardhouten kozijnen met isolatieglas en is volledig geïsoleerd bij zowel de gevels, vloer als het dak, daardoor heeft de woning ook een energielabel B. Later zijn in 2023 nog eens 9 zonnepanelen geplaatst. Het gehele platte dak bij de woning is in 2020 vernieuwd. KORTOM, EEN VOLLEDIG GEÏSOLEERDE EN GOED ONDERHOUDEN WONING MET VEEL LEEFRUIMTE.
Indeling:
Hal met garderobe en meterkast. De ruime woonkamer heeft een parketvloer, sfeervol balkenplafond en nette wandafwerkingen. Er is een fraaie glaswand geplaatst die de woonkamer verdeeld in een zitkamer en eetkamer. In de woonkamer is een provisiekast onder de trap naar de verdieping. Via de eetkamer is de keuken bereikbaar. Deze dichte keuken is voorzien een functionele keukeninrichting met gaskookplaat, afzuigkap en oven.
Achter de keuken is een ruime bijkeuken. Dit is een centrale ruimte met toegang tot de tuinkamer, een wasruimte, de berging, badkamer en buitendeur naar de tuin met veranda. De badkamer is voorzien van douche, toilet en fonteintje. Het witgoed staat in de wasruimte en de cv.-ketel hangt in de inpandige berging. Hier is naast bergruimte ook nog een wastafel en een deur naar de oprit met carport.
De ruime tuinkamer is aan de achterzijde van de woning gebouwd. Deze ruimte is circa 36 m² groot en voorzien van tegelvloer met vloerverwarming, keukenblok en een schuifpui naar de tuin. Er is ook een groot zonnescherm aanwezig. Deze tuinkamer is een heerlijke tweede leefruimte op de begane grond. Ideaal voor grote gezinnen dan wel als hobbyruimte of ontspanningsruimte.
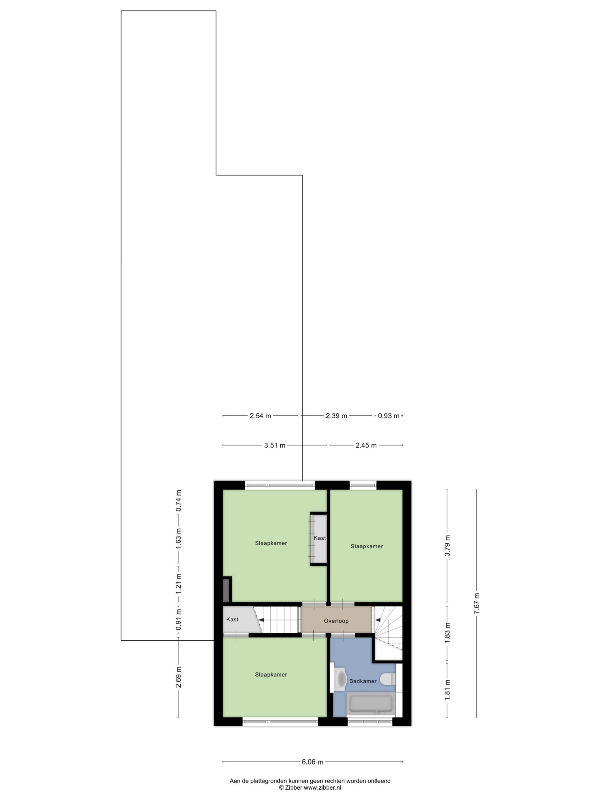
Op de 1e verdieping is een overloop met toegang tot 3 slaapkamers en de badkamer. Deze keurige badkamer is modern afgewerkt en voorzien van ligbad, wastafel en wandcloset. Er is vloerverwarming en afzuiging aanwezig. Alle slaapkamers zijn voorzien van laminaatvloeren. Met een vaste trap is toegang tot de 2e verdieping. Hier is een overloop met toegang tot nog eens 2 slaapkamers, waarvan 1 slaapkamer voorzien van dakkapel. Daarnaast blijft er voldoende bergruimte over op de overloop in een vaste kast.
De tuin is gelegen op het noordoosten en voorzien van terras, gazon, beplanting en een eigen achterom. Aan het huis staat een veranda met tegelvloer. Dit creëert een mooi en beschut plekje om buiten te zitten met privacy. Achterin staat nog een stenen berging voor de fietsen en tuingereedschap.
EEN RUIME GEZINSWONING MET LIEFST 5 SLAAPKAMERS, TWEE BADKAMERS EN EXTRA LEEF-/HOBBYRUIMTE.
- 179 m2
- 281 m2
- 5
Kenmerken Wezelstraat 24
Overdracht
| Vraagprijs | € 490.000,- k.k. | 
|---|---|
| Aanvaarding | In overleg | 
Oppervlaktes en inhoud
| Perceel oppervlakte | 281 m2 | 
|---|---|
| Woonoppervlakte | 179 m2 | 
| Inhoud | 736 m3 | 
Bouw
| Soort | Eengezinswoning | 
|---|---|
| Bouwvorm | Bestaande bouw | 
| Bouwjaar | 1974 | 
| Dak type | Zadeldak | 
| Isolatievormen | Dakisolatie, Muurisolatie, Vloerisolatie, Dubbelglas | 
| Energielabel | B | 
Indeling
| Aantal verdiepingen | 3 | 
|---|---|
| Aantal kamers | 7 | 
| Aantal slaapkamers | 5 | 
| Aantal badkamers | 2 | 
Maandlasten
Ligging Wezelstraat 24
Voorzieningen
Centraal gelegen informatie over de buurt
Aantal inwoners
In de gemeente
41.384
Leeftijd
in percentages van totaal
Huishoudsamenstelling
in percentages van totaal
30%
20% NL
38%
20% NL
32%
20% NL
 
                             
                             
                             
                             
                             
                             
                             
                             
                             
                             
                             
                             
                             
                             
                             
                             
                             
                             
                             
                             
                             
                             
                             
                             
                             
                             
                             
                             
                             
                             
                             
                             
                             
                             
                             
                             
                             
                                 
                                 
                                 
                                 
                                 
                                 
                                 
                                 
                                 
                                 
                                 
                                 
                                 
                                 
                                 
                                 
                                 
                                 
                                 
                                 
                                 
                                 
                                 
                                 
                                 
                                 
                                 
                                 
                                 
                                 
                                 
                                 
                                 
                                 
                                 
                                 
                                 
                                 
                                 
                                 
                                 
                                 
                                     
                                     
                                     
                                     
                                     
                                                             
                             
                             
                             
                             
             
             
             
             
            