Ga naar inhoud

Te koop: woonhuis Willem Barendszoonstraat 27 3134 LT Vlaardingen

Beschikbaar

Bezichtiging plannen

€ 400.000,- k.k.

Mooie en riante herenhuiskansen! Deze 6 a 7 kamerwoning strekt zich uit over 162 m² puur woongenot. De ruime woonkamer met half open keuken bieden een aangename leefruimte, met maar liefst 6 heerlijke slaapkamers, inpandige bergkasten en een complete badkamer, allemaal gehuisvest in de geliefde en kenmerkende Oostwijk.

Op de begane grond betreed je de ruime woonkamer van 31 m² en is voorzien van strak stucwerk afwerking. De ruime half keuken biedt ruimte voor alle hedendaagse inbouwapparatuur. Via de grote schuifpui aan de achterzijde beland je in de heerlijke besloten stadstuin, waar je geniet van maximale privacy en altijd kunt genieten van het buitenleven.

De slaapverdiepingen bieden niet minder dan 6 gezellige slaapkamers, een handige inpandige berging, een knusse loggia voor de lente- en herfstmaanden, en een complete badkamer met zowel een douchecabine als een ligbad.

Dit ruime herenhuis, gebouwd in 1927, is van binnen netjes afgewerkt. De woning is niet alleen goed onderhouden, maar biedt ook een aangenaam wooncomfort met volledige verwarming en energielabel B.

De ligging in de geliefde Oostwijk is uiterst centraal, dichtbij openbaar vervoer zoals bus en metro. Bovendien bevindt het winkelcentrum met bioscoop, casino, theater en stadspark ‘t Hof zich op korte fietsafstand, ideaal voor ontspannen wandelingen. Er zijn ook diverse goede scholen in de buurt. De bereikbaarheid is uitstekend, met snelwegen zoals de A4 en A20 die binnen 20 minuten toegang bieden tot Rotterdam, Delft en Hoek van Holland. Deze woning biedt werkelijk het beste van beide werelden!

Indeling

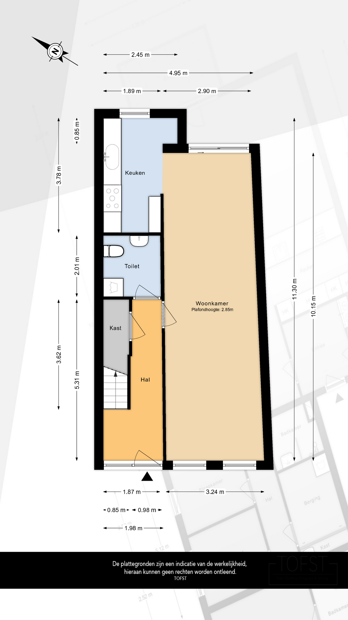
Begane grond
Entree woning, ruime hal voorzien van garderoberuimte en een vaste trap naar de eerste verdieping.
Ruim toilet met wastafel, opstelling wasmachine/wasdroger en mechanische afzuiging.

Royale doorzon woonkamer met eetkamer circa 31 m² voorzien van houtlook vloerafwerking, hoge plafonds, stucwerk afwerking en een grote schuifpui met convectorput naar de achtertuin.
Ruime open keuken circa 8 m² voorzien van spoelbak, losse keukenapparatuur, plavuizen vloer en een groot raam voor veel lichtinval.
Onderhoudsarme stadstuin circa 34 m² met betegeld terras met heerlijke ochtendzon, groene border, overkapping en een berging.

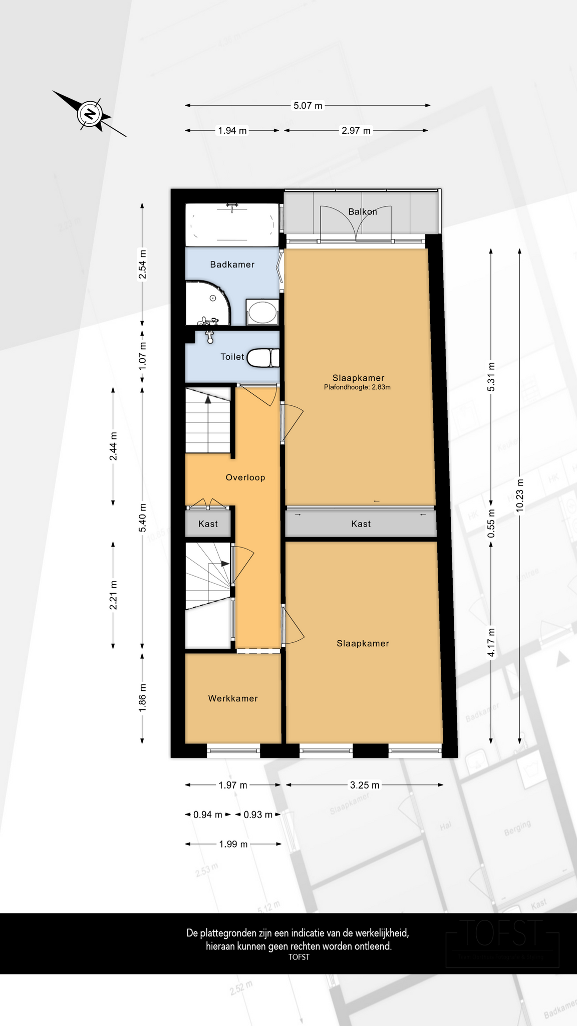
Eerste verdieping
Overloop, hoge plafonds met inbouw plafondspots, vaste kast en toegang tot alle vertrekken. Alle kamers zijn voorzien van een moderne hout look laminaatvloer en strakke afwerking.

Slaapkamer 1 aan de voorzijde circa 13,5 m².
Slaapkamer 2 aan de achterzijde circa 15,7 m² voorzien van vaste schuif wandkast en openslaande deuren naar loggia met ochtendzon.
Slaapkamer 3 aan de voorzijde circa 3,5 m².

Ruime badkamer van circa 5 m² en voorzien van douchecabine, ligbad met whirlpool, wastafel meubel met spiegel en design radiator.
2e badkamer douchecabine en 2e toilet, radiator, betegeld tot het plafond, en luchtafvoer voor natuurlijke ventilatie.

Tweede verdieping
Overloop met vaste kast en toegang tot alle vertrekken.

Slaapkamer 4 aan de voorzijde circa 12,5 m² voorzien van dakkapel.
Slaapkamer 5 aan de voorzijde circa 12 m² bereikbaar via slaapkamer 4 en voorzien van dakkapel..
Slaapkamer 6 aan de achterzijde circa 18 m² voorzien van vaste schuif wandkast, dakkapel en opstelling cv-combiketel

Bijzonderheden
– Royale 6 a 7 kamer stadswoning;
– Woonoppervlakte 162 m² (gemeten volgens de meetinstructie);
– Gelegen op eigen grond;
– Doorzon woonkamer circa 31 m² met half open keuken;
– Onderhoudsarme stadstuin circa 34 m² met overkapping en berging;
– Maar liefst 5 a 6 slaapkamers;
– Dubbele badkamer met 2e toilet;
– Goed onderhouden, geheel voorzien van centrale verwarming en energielabel B;
– Ideale ligging t.o.v. stadspark ‘t Hof, goede basisscholen maar ook openbaar vervoer als de bus en metro en uitvalswegen als de A20 en A4 om binnen 30 minuten uit te komen in Rotterdam, Delft, Den Haag of Hoek van Holland strand;
– In de karakteristieke Oostwijk op korte fietsafstand het centrum van Vlaardingen met theater, bioscoop, casino, verschillende supermarkten, divers winkelaanbod en gezellige horecagelegenheden;
– Oplevering in overleg;
– Ouderdomsclausule wordt toegepast gezien leeftijd van het object.

Overige
Huis kopen? Neem uw eigen NVM Aankoopmakelaar mee!
Download nu via www.dewittegarantiemakelaars.nl de brochure van deze woning.

Een daadwerkelijke koopovereenkomst komt pas tot stand nadat beide partijen de schriftelijke overeenkomst hebben ondertekend.

Toelichtingsclausule Meetinstructie
De Meetinstructie is gebaseerd op de NEN2580. De Meetinstructie is bedoeld om een meer eenduidige manier van meten toe te passen voor het geven van een indicatie van de gebruiksoppervlakte. De Meetinstructie sluit verschillen in meetuitkomsten niet volledig uit, door bijvoorbeeld interpretatieverschillen, afrondingen of beperkingen bij het uitvoeren van de meting.

  • 162 m2
  • 98 m2
  • 6

Kenmerken Willem Barendszoonstraat 27

Overdracht

Vraagprijs€ 400.000,- k.k.
AanvaardingIn overleg

Oppervlaktes en inhoud

Perceel oppervlakte98 m2
Woonoppervlakte162 m2
Inhoud571 m3

Bouw

SoortEengezinswoning
BouwvormBestaande bouw
Bouwjaar1927
Dak typeSamengesteld dak
IsolatievormenDakisolatie, Vloerisolatie, Dubbelglas
EnergielabelB

Indeling

Aantal verdiepingen3
Aantal kamers7
Aantal slaapkamers6
Aantal badkamers1

Kenmerken van verkoper en vrienden

Zelf toevoegen

Ken jij dit huis of deze buurt? Voeg dan in een paar stappen jouw eigen ervaring toe.

Maandlasten

Ligging Willem Barendszoonstraat 27

Voorzieningen

Centraal gelegen informatie over de buurt

Aantal inwoners

In de gemeente

71.999

Leeftijd

in percentages van totaal

Huishoudsamenstelling

in percentages van totaal

44%

20% NL

24%

20% NL

32%

20% NL

Vergelijkbaar woningaanbod