Ga naar inhoud

Te koop: woonhuis Joke Smitkade 150 3137 ZH Vlaardingen

De Witte Garantiemakelaars Vlaardingen
Neem contact met mij op

Verkocht

€ 549.000,- k.k.

Op zoek naar een gelijkvloerse woning met een zonnige tuin in de geliefde wijk Holy Noord?
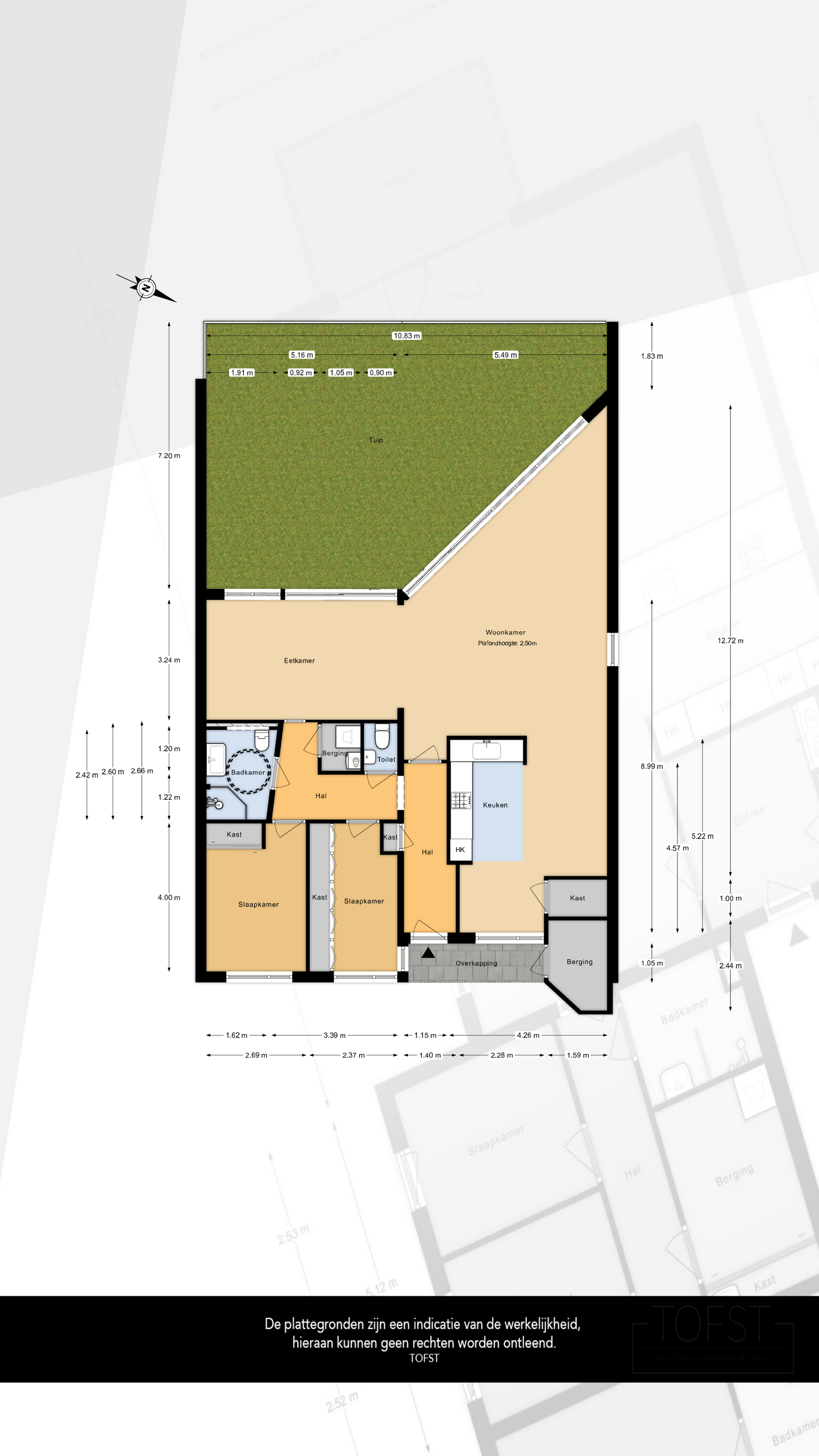
Dan is deze charmante 3- (voorheen 4-) kamer bungalow precies wat u zoekt! Gelegen op een rustige en groene locatie, vlak bij de Vlaardingse Vaart en natuurgebied Midden Delfland, combineert deze woning comfort, ruimte én een heerlijke buitenbeleving.

De royale, lichte woonkamer is het hart van het huis en biedt via twee schuifpuien direct toegang tot de zonnige tuin. Aan de voorzijde bevindt zich de open keuken, die uitnodigt tot gezellig koken en tafelen. De woning beschikt over twee slaapkamers aan de voorzijde. De moderne badkamer is geheel betegeld in hedendaagse grijs-wit tinten en heerlijk licht door de lichtkoepel.
De gehele woning (m.u.v. de slaapkamers) is voorzien van een parketvloer en strak afgewerkte wanden.

De riante, omsloten tuin op het zuidwesten biedt volop privacy en zon. Of u nu wilt loungen, tuinieren of barbecueën: hier is het elke dag genieten van het buitenleven.

De woning ligt aan de rand van de wijk Holy, omringd door groen en rust. Vanuit huis wandelt u zó de Broekpolder in voor een heerlijke wandeling, of langs de sfeervolle Vlaardingse Vaart. Winkels, openbaar vervoer en uitvalswegen — waaronder winkelcentrum De Loper — zijn binnen enkele minuten bereikbaar. En extra uniek is toch wel het raam in de woonkamer, vanwaar de doorgang naar Midden Delfland al zichtbaar is.

Kortom: een comfortabele, gelijkvloerse woning op een toplocatie, waar u het hele jaar door kunt genieten van rust, licht en ruimte!

Wij begrijpen als geen ander dat je hetgeen wij beschrijven graag met eigen ogen zou willen bekijken.
Wacht niet te lang voor het inplannen van een persoonlijke bezichtiging met één van onze makelaars.

Bijzonderheden:
– Riante bungalowwoning aan de rand van natuurgebied Midden Delfland;
– Bouwjaar 1994;
– Woonoppervlakte 117m² (gemeten conform de meetinstructie);
– Gelegen op een perceel van 195 m², erfpacht tot 10-03-2043, de verplichting tot betaling van de canon is afgekocht voor de gehele periode;
– Het dak van de woning is in 2020 compleet vernieuwd;
– Geheel voorzien van houten kozijnen met dubbel glas, de schuifpuien zijn uitgevoerd in aluminium;
– Energielabel B, geldig tot 23-09-2035;
– De ouderdomsclausule en niet-zelfbewoningsclausule zullen worden opgenomen in de koopovereenkomst;
– Oplevering in overleg;
– Goede scholen in de buurt en nabij natuur- en recreatiegebied De Broekpolder om te sporten of te genieten van de natuur;
– Overdracht dient te geschieden via Van Stenis Notarishuis te Maasland;

Overige
Huis kopen? Neem uw eigen NVM Aankoopmakelaar mee!
download nu via www.dewittegarantiemakelaars.nl de brochure van deze woning.

Een daadwerkelijke koopovereenkomst komt pas tot stand nadat beide partijen de schriftelijke overeenkomst hebben ondertekend

Toelichtingsclausule meetinstructie.
De Meetinstructie is gebaseerd op de NEN2580. De Meetinstructie is bedoeld om een meer eenduidige manier van meten toe te passen voor het geven van een indicatie van de gebruiksoppervlakte. De Meetinstructie sluit verschillen in meetuitkomsten niet volledig uit, door bijvoorbeeld interpretatieverschillen, afrondingen of beperkingen bij het uitvoeren van de meting.

Nadrukkelijk zij vermeld, dat deze vrijblijvende informatieverstrekking niet als een aanbieding of een offerte mag worden beschouwd. Aan deze gegevens kunnen geen rechten worden ontleend.

  • 117 m2
  • 195 m2
  • 2

Kenmerken Joke Smitkade 150

Overdracht

Vraagprijs€ 549.000,- k.k.
AanvaardingIn overleg

Oppervlaktes en inhoud

Perceel oppervlakte195 m2
Woonoppervlakte117 m2
Inhoud410 m3

Bouw

SoortBungalow
BouwvormBestaande bouw
Bouwjaar1994
Dak typePlat dak
IsolatievormenDakisolatie, Muurisolatie, Dubbelglas
EnergielabelB

Indeling

Aantal verdiepingen1
Aantal kamers3
Aantal slaapkamers2
Aantal badkamers1

Maandlasten

Ligging Joke Smitkade 150

Voorzieningen

Centraal gelegen informatie over de buurt

Aantal inwoners

In de gemeente

71.999

Leeftijd

in percentages van totaal

Huishoudsamenstelling

in percentages van totaal

41%

20% NL

35%

20% NL

23%

20% NL

Vergelijkbaar woningaanbod