€ 325.000,- k.k.
Heb jij altijd als wens gehad om te werken aan huis? Dan is dit je kans! Want op het hoekje Groen van Prinstererstraat en de Gedempte Biersloot hebben wij een uniek pandje in de verkoop gekregen, waar je deze wens kan verwezenlijken!
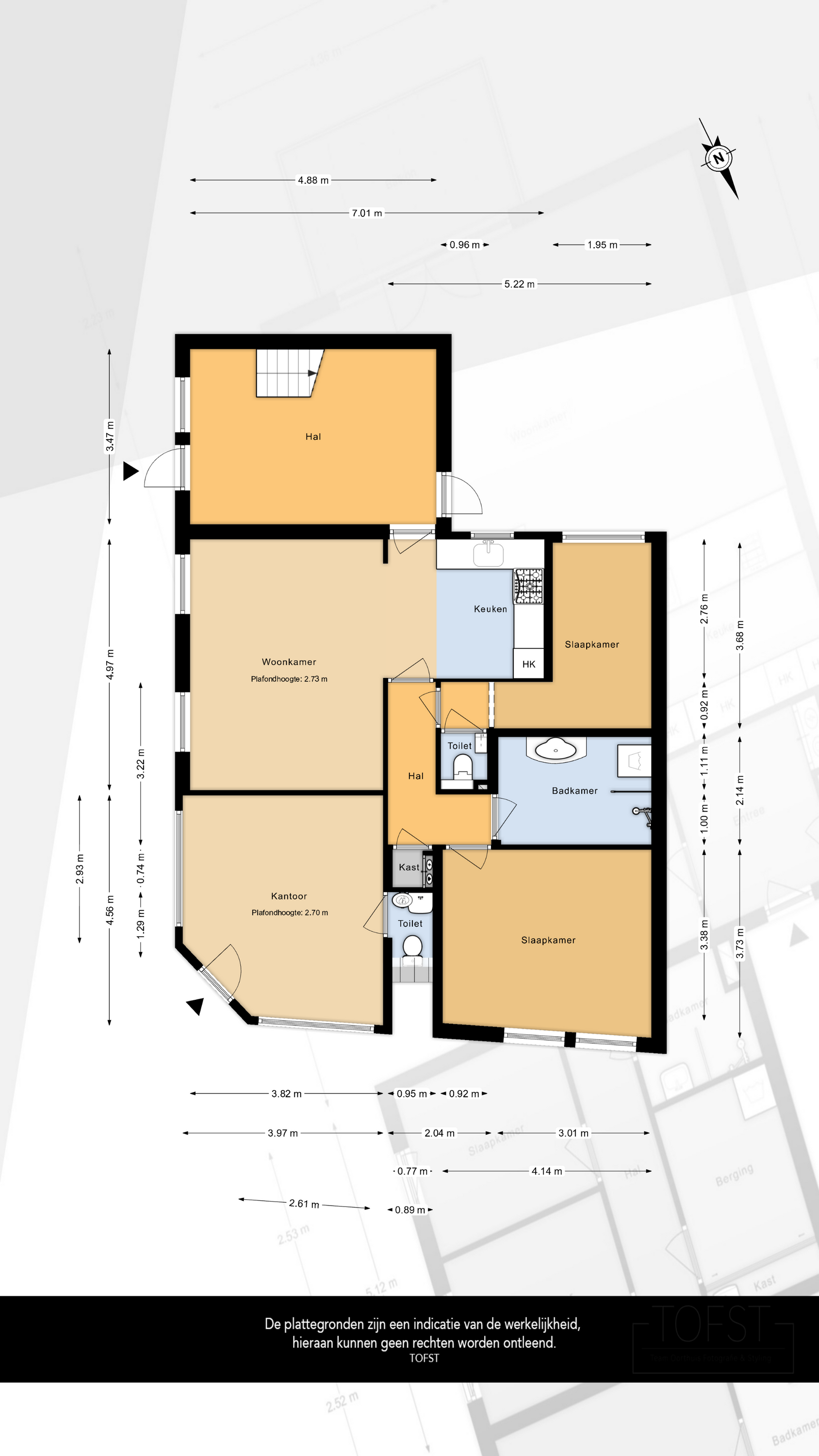
Vanaf de Gedempte Biersloot wordt allereerst de toegang verstrekt tot het appartement.
De riante ontvangsthal verzorgt de toegang tot de diverse vertrekken en is voorzien van een grote hoeveelheid opbergruimte. Middels de loopdeur wordt ook direct de toegang verstrekt tot de fijne achtertuin. Deze is gelegen op het zonnige zuidwesten, onderhoudsarm bestraat maar toch lekker groen door alle beplanting tegen de gevels en beschikt over een riante berging voorzien van elektra. 
De fijne woonkamer is aan de voorzijde van het appartement gelegen en beschikt nog over authentieke glas-in-loodramen! De vloer en wanden zijn strak afgewerkt en vanuit de woonkamer is er zicht op de moderne L-vormige open keukenopstelling voorzien van een koelkast, vriezer, vaatwasser, groot gasfornuis met oven en veel kastruimte. Middels een vernieuwd kunststof raam kijk je vanuit de keuken leuk de tuin in!
Op de begane grond beschikt het appartement over twee fijne slaapkamers met een respectievelijk oppervlakte van 14 m² en ruim 7 m².
Beide slaapkamers zijn voorzien van een moderne vloerafwerking met hoge witte plinten, strakke wanden en hard houten kozijnen met dubbel glas. De hoofdslaapkamer beschikt net als de woonkamer nog over authentiek glas-in-loodramen voor een extra historische sfeer. 
De riante badkamer is geheel betegelde en voorzien van een fijne inloopdouche met easydrain en regendouche, groot wastafelmeubel met spiegelkast, inbouwspots, designradiator en de aansluitingen van zowel de wasmachine als droger zijn hier aanwezig. Seperaat is de hal is een geheel betegelde toiletruimte aanwezig, voorzien van een hangend closet en fontein.
Vanuit de entreehal is middels een vaste trap de toegang tot de derde slaapkamer aanwezig. Deze ruime slaapkamer heeft een oppervlakte van ruim 17 m² en is evenals het hele huis netjes afgewerkt. In de vaste kast is de cv combi-ketel van het merk Remeha weggewerkt.
Of je nou een klein winkeltje wil openen, een werkplek aan huis zoekt, of toch liever een vierde slaapkamer wenst dan is dit wel echt een unieke kans. Het winkeltje is toegankelijk middels een eigen entree aan de Groen van Prinstererstraat en is voorzien van een moderne vloer met hoge plintafwerking, grote ramen voor veel natuurlijk lichtinval en de ruimte is eveneens voorzien van een eigen toiletruimte en close-in-boiler;
Bijzonderheden:
– Unieke benedenwoning met de mogelijkheid tot het realiseren van een winkel of werkruimte aan huis;
– Gelegen in het centrum van Vlaardingen;
– Zowel de woning als winkel zijn onafhankelijk van elkaar bereikbaar;
– Woonoppervlakte 121 m² (gemeten conform de meetinstructie);
– Centraal verwamd middels cv-combiketel van het merk Remeha met als bouwjaar 2015;
– Gelegen in een complex met een actieve vereniging van eigenaren en een maandelijkse bijdrage van € 172,50;
– De woning wordt gezien de leeftijd verkocht in combinatie met de ouderdomsclausule;
– Op loopafstand van diverse winkel, restaurants, de bioscoop en het openbaar vervoer;
– Opleveren in overleg;
– Gelegen op eigen grond. 
Overige
Huis kopen? Neem uw eigen NVM Aankoopmakelaar mee!
Download nu via www.dewittegarantiemakelaars.nl de brochure van deze woning.
Een daadwerkelijke koopovereenkomst komt pas tot stand nadat beide partijen de schriftelijke overeenkomst hebben ondertekend.
Toelichtingsclausule Meetinstructie
De Meetinstructie is gebaseerd op de NEN2580. De Meetinstructie is bedoeld om een meer eenduidige manier van meten toe te passen voor het geven van een indicatie van de gebruiksoppervlakte. De Meetinstructie sluit verschillen in meetuitkomsten niet volledig uit, door bijvoorbeeld interpretatieverschillen, afrondingen of beperkingen bij het uitvoeren van de meting.
Nadrukkelijk zij vermeld, dat deze vrijblijvende informatieverstrekking niet als een aanbieding of een offerte mag worden beschouwd. Aan deze gegevens kunnen geen rechten worden ontleend.
- 121 m2
- 3
Kenmerken Gedempte Biersloot 38
Overdracht
| Vraagprijs | € 325.000,- k.k. | 
|---|---|
| Aanvaarding | In overleg | 
Oppervlaktes en inhoud
| Woonoppervlakte | 121 m2 | 
|---|---|
| Inhoud | 434 m3 | 
Bouw
| Soort | Benedenwoning | 
|---|---|
| Bouwvorm | Bestaande bouw | 
| Bouwjaar | 1931 | 
| Dak type | Plat dak | 
| Isolatievormen | Voorzetramen, Grotendeels dubbelglas | 
| Energielabel | E | 
Indeling
| Aantal verdiepingen | 2 | 
|---|---|
| Aantal kamers | 5 | 
| Aantal slaapkamers | 3 | 
| Aantal badkamers | 1 | 
Maandlasten
Ligging Gedempte Biersloot 38
Voorzieningen
Centraal gelegen informatie over de buurt
Aantal inwoners
In de gemeente
71.999
Leeftijd
in percentages van totaal
Huishoudsamenstelling
in percentages van totaal
49%
20% NL
26%
20% NL
25%
20% NL
 
                             
                             
                             
                             
                             
                             
                             
                             
                             
                             
                             
                             
                             
                             
                             
                             
                             
                             
                             
                             
                             
                             
                             
                             
                             
                             
                             
                             
                             
                             
                             
                             
                             
                             
                                 
                                 
                                 
                                 
                                 
                                 
                                 
                                 
                                 
                                 
                                 
                                 
                                 
                                 
                                 
                                 
                                 
                                 
                                 
                                 
                                 
                                 
                                 
                                 
                                 
                                 
                                 
                                 
                                 
                                 
                                 
                                 
                                 
                                 
                                 
                                 
                                 
                                     
                                     
                                     
                                                             
                             
                             
                             
                             
             
             
             
            