€ 1.125.000,- k.k.
Leiderdorp, Brugwacht 74
(See English text below)
Ontdek deze schitterende vrijstaande villa op een unieke waterlocatie aan de Dwarswatering in Leiderdorp. De woning is gebouwd in 1998, heeft een woonoppervlakte van circa 178m² en telt maar liefst 5 ruime slaapkamers, 2 badkamers, een parkeerplaats op eigen terrein en een inpandige, brede garage.
Een bijzonder pluspunt is dat er een optie is om de huidige ligplaats van de bewoners t.b.v. een boot van ca. 6 tot 7 meter, over te nemen (zie verder bijzonderheden).
De directe vaarverbinding met het centrum van Leiden opent een wereld van mogelijkheden: vaar naar de gezellige grachten van de historische binnenstad voor een lunch of bezoek aan de markt, of ontdek de uitgestrekte Kagerplassen voor een dag vol waterplezier. Of u nu houdt van varen, kanoën of gewoon genieten van het uitzicht over het water – alles is mogelijk.
De villa heeft een gunstige zuidwestelijke ligging, waardoor u niet alleen een heerlijk lichte woning heeft, maar ook optimaal profiteert van de zon in uw eigen achtertuin of op de 2 dakterrassen.
Een ideale woning voor iedereen die van wonen aan het water houdt en op zoek is naar veel praktische woonruimte. De 5 slaapkamers, 2 badkamers en 2 grote dakterrassen bieden een gezin met kinderen een eigen plek voor iedereen.
De locatie is werkelijk uniek:
Leiderdorp biedt het beste van twee werelden: de rust van het Groene Hart gecombineerd met alle voorzieningen van een moderne gemeente. De Brugwacht ligt gunstig centraal in Leiderdorp, nabij Park de Bloemerd met uitstekende sportfaciliteiten zoals hockey en voetbal.  De nabijgelegen polders nodigen daarnaast uit tot ontspannende wandelingen en fietstochten door het Groene Hart.
Voorzieningen op loopafstand:
Winkels waaronder een supermarkt, diverse scholen voor basis- en voortgezet onderwijs en openbaar vervoer zijn allemaal gemakkelijk te voet bereikbaar.
Uitstekende bereikbaarheid:
Rijksweg A4 (Amsterdam/Schiphol – Den Haag) en N11 (Utrecht – Gouda – Alphen aan den Rijn) zijn binnen enkele minuten aan te rijden.
Het historische centrum van Leiden ligt op slechts 15 minuten fietsen, zodat een terrasje pakken, een avondje theater of een culturele dag nooit ver weg zijn.
Begane grond:
Via de entree komt u binnen in de ruime hal met praktische meterkast (10 groepen en aardlekschakelaar), een deur naar de lekker brede, inpandige garage (3.85 x 5.60m) met vaste grote bergkast, elektrisch bedienbare garagedeur en aparte loopdeur (ook van afstand te bedienen). Het toilet is voorzien van een vrijdragend closet en een fonteintje.
Woonkamer:
De woonkamer ligt over de volle breedte van 9.36m naar het water en de achtertuin gericht. Hierdoor geniet u niet alleen van het prachtige uitzicht over de Dwarswatering, er is bovendien heerlijk veel lichtinval door de grote raampartijen. De sfeervolle houten vloer geeft de ruimte een warme en luxueuze uitstraling. Via de schuifpui heeft u directe toegang tot de zonnige achtertuin met diverse terrassen.
Keuken:
De woonkeuken is praktisch ingericht en voorzien van een elegant hardstenen werkblad van 6.3 meter. De keuken beschikt over de volgende inbouwapparatuur, waaronder een inductiekookplaat, koelvriescombinatie, oven en vaatwasser. De verwarming is doordacht weggewerkt in de plinten onder de keuken.
Eerste verdieping:
De eerste verdieping biedt veel wooncomfort met maar liefst 4 ruime slaapkamers, 2 complete badkamers en een ruim terras aan de zijgevel. De royale hoofdslaapkamer van circa 22m² is een waar plaatje met veel ramen en beschikt over een luxe badkamer-en-suite. Deze kamer is aan de achterzijde gesitueerd en heeft dus uitzicht over het water. De badkamer is voorzien van een ligbad, een dubbele wastafel in een stijlvol meubel en een douchecabine. Vanuit deze slaapkamer heeft u toegang tot een eigen dakterras van ca. 31m2 met uitzicht over het water. Aan de voorzijde bevinden zich nog twee comfortabele slaapkamers, beide met een hoog plafond wat een gevoel van extra ruimte geeft.
De tweede badkamer is compleet uitgerust met een douche en wastafel. Een separaat 2e toilet met vrijdragend closet zorgt voor extra luxe.
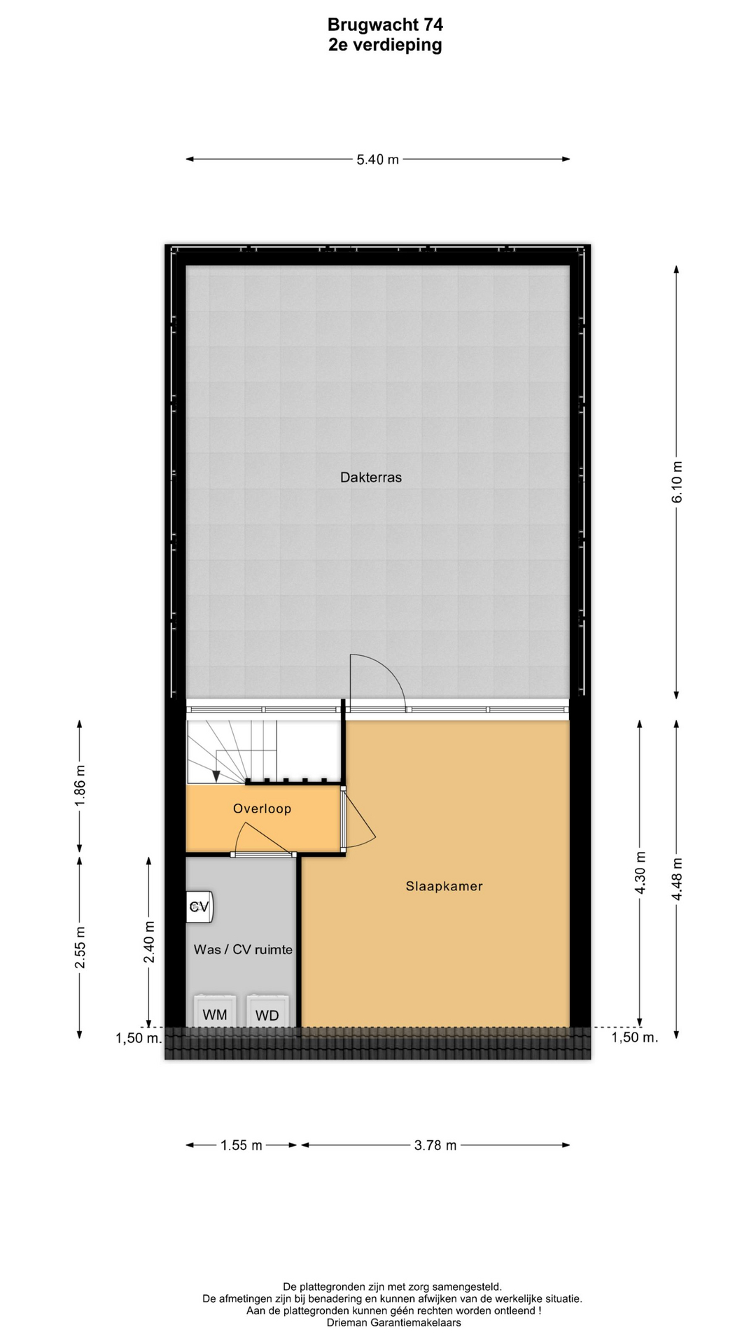
Tweede verdieping:
De overloop biedt toegang tot een ruime berging waar de wasapparatuur en CV-ketel zijn geplaatst – handig weggewerkt maar goed toegankelijk. De CV-ketel is in 2024 vernieuwd en de unit voor de mechanische ventilatie in 2025, voorlopig geen omkijken meer naar dus!
De grote slaapkamer op de tweede verdieping is een waar juweeltje, met toegang tot een enorm dakterras van ca. 33m2 op het zuidwesten. Vanaf dit terras geniet u van een adembenemend, panoramisch uitzicht over de Dwarswatering – een perfecte plek om de dag te beginnen of te eindigen want u heeft hier praktisch de hele dag zon, als deze schijnt.
Perceel en tuin:
De villa beschikt over een parkeerplaats op eigen terrein naast de inpandige garage. De voortuin geeft wat extra privacy, terwijl de ruime achtertuin op zuidwesten optimaal profiteert van de zon gedurende de dag. De tuin (met verlichting)  grenst aan het water met ruim daarachter het wandel en fietspad langs de Dwarswatering.
Bijzonderheden van deze woning:
– woning is volledig voorzien van vloer-, muur- en dakisolatie, alsmede dubbele beglazing voor optimaal wooncomfort
– buitenschilderwerk uitgevoerd in 2024
– Vaillant CV CW5+ vernieuwd in 2024
– mechanische ventilatie vernieuwd in 2025
– garage heeft een elektrisch bedienbare toegangsdeur met afstandsbediening evenals een loopdeur voor de fietsen
– vloer van de garage is geheel voorzien van grijze tegels/plavuizen
– 2 elektrisch te bedienen zonneschermen aan de achterzijde van de woning
– eigen steiger in de Dwarswatering, recht achter de woning. Een koper kan in aanmerking komen om de ligplaats te huren van het Hoogheemraadschap Rijnland na goedkeuring. De steiger zelf dient in dat geval overgenomen te worden van de verkoper en is niet in de huidige prijs inbegrepen.
– woning scheidende wand met garage is een ankerloze spouwmuur.
– woning is gefundeerd op betonpalen
– rookkanaal voor installatie van een open haard in de woonkamer is aanwezig
Plan vandaag nog een bezichtiging in en ervaar zelf de rust, ruimte en unieke waterlocatie, die deze prachtige villa te bieden heeft. Wij ontvangen u graag voor een persoonlijke rondleiding!
*** English ***
Stunning Detached Villa on Unique Waterfront Location
Discover this magnificent detached villa in a unique waterfront location on the Dwarswatering in Leiderdorp. Built in 1998, this property features approximately 178 m² of living space and boasts no fewer than 5 spacious bedrooms, 2 bathrooms, private parking, and an integrated wide garage.
Exceptional Waterfront Living
A particular highlight is that the property includes your own private jetty where you can moor your boat (see further details below). The direct waterway connection to Leiden city center opens up a world of possibilities: sail to the charming canals of the historic city center for lunch or a market visit, or explore the expansive Kager Lakes for a day of water recreation. Whether you enjoy boating, canoeing, or simply enjoying the view over the water – everything is possible from your own jetty.
The villa enjoys a favorable southwest orientation, providing not only a beautifully bright home but also optimal sun exposure in your private backyard and on the 2 roof terraces.
Perfect for Families
An ideal home for anyone who loves waterfront living and seeks plenty of practical living space. The 5 bedrooms, 2 bathrooms, and 2 large roof terraces offer a family with children their own space for everyone.
Prime Location
The location is truly unique: Leiderdorp offers the best of both worlds – the tranquility of the Green Heart combined with all amenities of a modern municipality. De Brugwacht is conveniently located centrally in Leiderdorp, near Park de Bloemerd with excellent sports facilities including hockey and football. The nearby polders invite relaxing walks and cycling tours through the Green Heart.
Walking Distance Amenities:
Shops including supermarket
Various schools for primary and secondary education
Public transportation
Excellent Accessibility:
Highway A4 (Amsterdam/Schiphol – The Hague) and N11 (Utrecht – Gouda – Alphen aan den Rijn) within minutes
Historic center of Leiden just 15 minutes by bike – perfect for grabbing a drink on a terrace, an evening at the theater, or a cultural day out
Property Layout
Ground Floor
Through the entrance, you enter the spacious hallway with practical meter cupboard (10 circuits and earth leakage switch) and door to the conveniently wide integrated garage (3.85 x 5.60m) with large built-in storage cabinet, electrically operated garage door, and separate pedestrian door (also remotely operated). The toilet features a wall-hung WC and small washbasin.
Living Room:
The living room spans the full width of 9.36m facing the water and backyard. This provides not only beautiful views over the Dwarswatering but also wonderful natural light through large windows. The atmospheric wooden flooring gives the space a warm and luxurious appearance. Through sliding doors, you have direct access to the sunny backyard with various terraces.
Kitchen:
The fitted kitchen is practically arranged with an elegant 6.3-meter natural stone worktop. The kitchen includes built-in appliances: induction cooktop, fridge-freezer combination, oven, and dishwasher. Heating is thoughtfully integrated into the plinths under the kitchen.
First Floor
The first floor offers excellent living comfort with no fewer than 4 spacious bedrooms, 2 complete bathrooms, and a spacious terrace on the side wall. The generous master bedroom of approximately 22 m² is truly spectacular with many windows and features a luxury en-suite bathroom. This room is situated at the rear with water views. The bathroom includes a bathtub, double washbasin in stylish vanity unit, and shower cabin. From this bedroom, you have access to a private roof terrace of approximately 31m² with water views.
At the front are two more comfortable bedrooms, both with high ceilings creating a sense of extra space.
The second bathroom is fully equipped with shower and washbasin. A separate second toilet with wall-hung WC provides additional luxury.
Second Floor
The landing provides access to a spacious storage room where washing appliances and central heating boiler are located – conveniently tucked away but easily accessible. The central heating boiler was renewed in 2024 and the mechanical ventilation unit in 2025 – no worries for the foreseeable future!
The large bedroom on the second floor is a true gem, with access to an enormous roof terrace of approximately 33m² facing southwest. From this terrace, you enjoy breathtaking panoramic views over the Dwarswatering – a perfect place to start or end the day as you have sun here practically all day when it’s shining.
Garden & Grounds
The villa features private parking on the property alongside the integrated garage. The front garden provides additional privacy, while the spacious southwest-facing backyard optimally benefits from sun throughout the day. The garden (with lighting) borders the water with ample space behind for the walking and cycling path along the Dwarswatering. Here you’ll find your private jetty where you can moor your boat.
Special Features
Details
Property is fully equipped with floor, wall, and roof insulation, plus double glazing for optimal living comfort
Exterior painting completed in 2024
Vaillant central heating CW5+ renewed in 2024
Mechanical ventilation renewed in 2025
Garage has electrically operated entrance door with remote control plus pedestrian door for bicycles
Garage floor is completely finished with gray tiles
2 electrically operated awnings at the rear of the property
Private jetty in the Dwarswatering, directly behind the house. A buyer may be eligible to rent the mooring from the Rijnland Water Board after approval. In that case, the jetty itself must be acquired from the seller and is not included in the current price.
Party wall with garage is an anchor-free cavity wall
Property is founded on concrete piles
Flue for installation of a fireplace in the living room is present
Schedule a viewing today and experience for yourself the tranquility, space, and unique waterfront location this beautiful villa has to offer. We look forward to welcoming you for a personal tour!
- 178 m2
- 274 m2
- 5
Kenmerken Brugwacht 74
Overdracht
| Vraagprijs | € 1.125.000,- k.k. | 
|---|---|
| Aanvaarding | In overleg | 
Oppervlaktes en inhoud
| Perceel oppervlakte | 274 m2 | 
|---|---|
| Woonoppervlakte | 178 m2 | 
| Inhoud | 638 m3 | 
Bouw
| Soort | Villa | 
|---|---|
| Bouwvorm | Bestaande bouw | 
| Bouwjaar | 1998 | 
| Isolatievormen | Dakisolatie, Muurisolatie, Vloerisolatie, Dubbelglas | 
| Energielabel | B | 
Indeling
| Aantal verdiepingen | 3 | 
|---|---|
| Aantal kamers | 6 | 
| Aantal slaapkamers | 5 | 
| Aantal badkamers | 2 | 
Maandlasten
Ligging Brugwacht 74
Voorzieningen
Centraal gelegen informatie over de buurt
Aantal inwoners
In de gemeente
27.128
Leeftijd
in percentages van totaal
Huishoudsamenstelling
in percentages van totaal
21%
20% NL
30%
20% NL
49%
20% NL
 
                             
                             
                             
                             
                             
                             
                             
                             
                             
                             
                             
                             
                             
                             
                             
                             
                             
                             
                             
                             
                             
                             
                             
                             
                             
                             
                             
                             
                             
                             
                             
                             
                             
                             
                             
                             
                             
                             
                             
                             
                             
                             
                             
                             
                             
                                 
                                 
                                 
                                 
                                 
                                 
                                 
                                 
                                 
                                 
                                 
                                 
                                 
                                 
                                 
                                 
                                 
                                 
                                 
                                 
                                 
                                 
                                 
                                 
                                 
                                 
                                 
                                 
                                 
                                 
                                 
                                 
                                 
                                 
                                 
                                 
                                 
                                 
                                 
                                 
                                 
                                 
                                 
                                 
                                 
                                 
                                 
                                 
                                 
                                     
                                     
                                     
                                     
                                                             
                             
                             
                             
                             
             
             
             
             
            