€ 589.000,- k.k.
Karakteristiek wonen in Kockengen
Aan de charmante Wagendijk 44 staat dit prachtige rijksmonument: een sfeervolle hoekwoning met een speelse indeling en authentieke uitstraling. De woning biedt een ruime woonkamer met open keuken en drie slaapkamers op de eerste verdieping. Dankzij de uitstekende ligging, de royale ruimte en de bijzonder diepe achtertuin op het zuidwesten – voorzien van een grote schuur, overkapping en veel privacy – is dit een unieke kans!
Deze sfeervolle woning is gelegen in een beschermd dorpsgezicht in de oude dorpskern van Kockengen. Een rustige omgeving, omringd door groen en rust en op loopafstand van de winkels (zoals de slager, supermarkt) en andere voorzieningen. Kockengen biedt naast basisonderwijs, ook veel sportfaciliteiten (zoals water-, racket-, wieler- en veldsporten) in en rondom het zwem- en recreatiepark de Koet. Voor voortgezet onderwijs zijn er tal van mogelijkheden in het nabijgelegen Breukelen, Maarssen, Woerden en Utrecht. Ook winkels en supermarkt(en) zijn in Kockengen en in de nabije omgeving te vinden.
Kockengen valt onder de Gemeente Stichtse Vecht en ligt op 15 respectievelijk 25 autominuten afstand van de steden Utrecht en Amsterdam (A2) midden in het Groene Hart. Het gezellige toeristische Breukelen ligt op circa 5 km afstand en heeft een treinstation. Ook Amersfoort, Rotterdam, Den Bosch, Leiden en Den Haag zijn binnen 50 autominuten te bereiken. Geniet van de landelijke sfeer terwijl u toch dicht bij voorzieningen en uitvalswegen bent.
Indeling
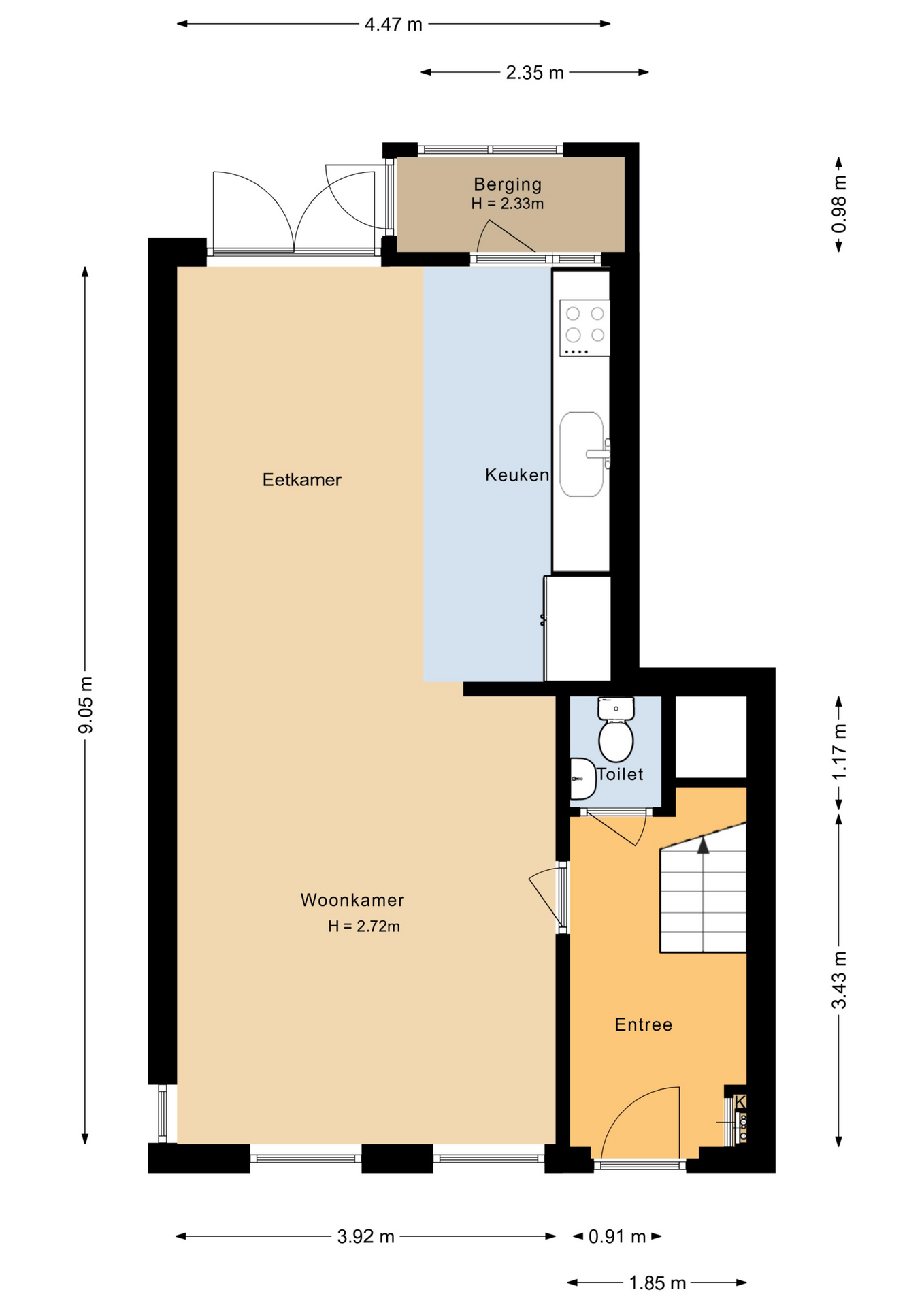
Begane grond
Entree, hal, garderoberuimte, meterkast, toiletruimte met toilet en fonteintje, trap naar de eerste verdieping en toegang tot de woonkamer en de keuken.
De lichte woonkamer met houten vloer en leuk uitzicht op de Wagendijk is aan de voorzijde van de woning gelegen. De eethoek met open keuken is aan de achterzijde gelegen. De open keuken met deur naar de achtertuin en deur naar het klompenhok is eveneens aan de achterzijde gelegen. De keuken is voorzien van diverse inbouwapparatuur zoals een inductiekookplaat, combi-oven/magnetron, afzuigkap, vaatwasmachine en losse Amerikaanse koelkast.
1e Verdieping
Overloop met toegang tot 3 slaapkamers en een badkamer.
Ruime badkamer, voorzien van een 2-persoonswastafelmeubel, inloopdouche, 2e toilet en sierradiator. Tevens is hier de CV-ketel gesitueerd, weggewerkt in een kast.
Slaapkamer I ligt aan de achterzijde van de woning met mooi uitzicht.
Slaapkamer II met toegang tot de vliering, is gelegen aan de voorzijde.
Slaapkamer III met dakkapel en toegang tot de vliering ligt eveneens aan de voorzijde. 
Tuin
Zij oprit met toegang tot de achtertuin. De riante achtertuin is gelegen op het zuidwesten en biedt enorm veel privacy en een fraai uitzicht, een waar genot door de vele mogelijkheden voor tuinliefhebbers. Verder is er een royale schuur, gezellige overkapping en een achterom.
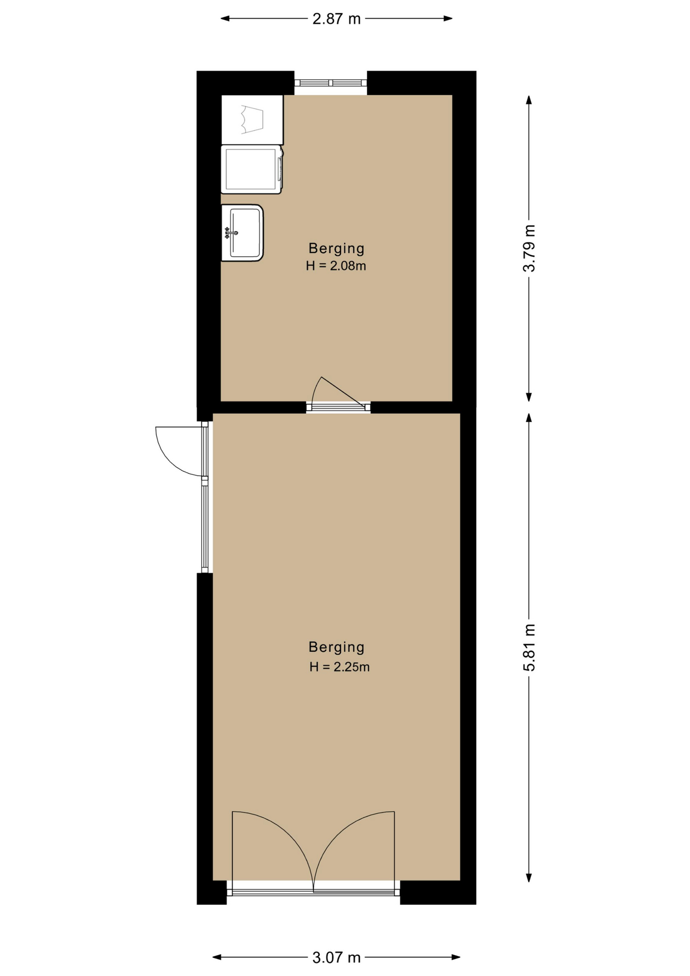
Schuur
Grote schuur met vliering. Het achterste gedeelte is geïsoleerd en voorzien van wasmachine- en drogeraansluiting. De omvormer van de zonnepanelen is hier eveneens gesitueerd. 
Bouwjaar: circa 1905
Gebruiksoppervlakte wonen: circa 92 m2
Gebruiksoppervlakte overig inpandige ruimte: circa 2 m2
Gebruiksoppervlakte externe bergruimte: circa 29 m2
Bruto inhoud woning: circa 331 m3
Totale grondoppervlakte: 338 m2
De oppervlakten en algeheel resultaat zijn opgebouwd conform de Branche Brede Meet Instructie (BBMI) afgeleid van de NEN2580. Aan de oppervlakten en inhouden kunnen geen rechten worden ontleend.
Bijzonderheden
– De woning is grotendeels voorzien van Rapid Pane beglazing
– Definitief energielabel C
– Het buitenschilderwerk is in 2018 uitgevoerd
– De woning is voorzien van 10 zonnepanelen (2021)
– In 2019 is de meterkast vervangen
– Rijksmonument nummer: 23716. Deze status biedt aantrekkelijke fiscale voordelen voor onderhoud van de woning
– Status: karakteristiek object
– Beschermd dorpsgezicht
– Recht van overpad voor de buren op 45
– Mechanische ventilatie aanwezig
– Elektrische boiler (Plieger, 2018) in de schuur
– CV-combiketel Remeha (2023)
- 92 m2
- 338 m2
- 3
Kenmerken Wagendijk 44
Overdracht
| Vraagprijs | € 589.000,- k.k. | 
|---|---|
| Aanvaarding | In overleg | 
Oppervlaktes en inhoud
| Perceel oppervlakte | 338 m2 | 
|---|---|
| Woonoppervlakte | 92 m2 | 
| Inhoud | 331 m3 | 
Bouw
| Soort | Eengezinswoning | 
|---|---|
| Bouwvorm | Bestaande bouw | 
| Bouwjaar | 1905 | 
| Isolatievormen | Dubbelglas | 
| Energielabel | C | 
Indeling
| Aantal verdiepingen | 3 | 
|---|---|
| Aantal kamers | 4 | 
| Aantal slaapkamers | 3 | 
| Aantal badkamers | 1 | 
Maandlasten
Ligging Wagendijk 44
Voorzieningen
Centraal gelegen informatie over de buurt
Aantal inwoners
In de gemeente
64.450
 
                             
                             
                             
                             
                             
                             
                             
                             
                             
                             
                             
                             
                             
                             
                             
                             
                             
                             
                             
                             
                             
                             
                             
                             
                             
                             
                             
                             
                             
                             
                             
                             
                             
                             
                             
                             
                             
                                 
                                 
                                 
                                 
                                 
                                 
                                 
                                 
                                 
                                 
                                 
                                 
                                 
                                 
                                 
                                 
                                 
                                 
                                 
                                 
                                 
                                 
                                 
                                 
                                 
                                 
                                 
                                 
                                 
                                 
                                 
                                 
                                 
                                 
                                 
                                 
                                 
                                 
                                 
                                 
                                     
                                     
                                     
                                                             
                             
                             
                             
                             
             
             
             
             
            