Ga naar inhoud

Te koop: woonhuis Troubadoursborch 63 3992 BE Houten

Verkocht

€ 585.000,- k.k.

Ben je al een tijdje op zoek naar een ruim helft van dubbel woonhuis waar je de mogelijkheid hebt om thuis te werken of die leuke speelkamer voor de kinderen te realiseren? Kom dan zeker deze fraaie woning in woonwijk De Borchen bezoeken die is gelegen op een autoluwe en groene locatie!

Deze twee-onder-een-kap-woning beschikt over een optimale indeling waarbij voor iedereen in huis wel een eigen plek te vinden is. De begane grond is ingedeeld met een tuingerichte woonkamer met sfeervolle open haardpartij en heeft een werk-/studeerkamer. De voormalige garage is deels bij de woning betrokken waardoor er ook nog een praktische berging aanwezig is. De auto parkeer je op eigen terrein of de oprit. Aan de voorzijde van de woonkamer is de complete keuken aanwezig van waaruit je vrij en open wegkijkt. De erkerpartij aan de voorzijde van deze woning zorgt voor een mooie uitstraling.

De achtertuin ligt tussen Zuid Westen en Westen, je geniet hier van vele zonuren, het is dan ook heerlijk om tot in de late avonduurtjes onder de overkapping te vertoeven. Vanuit de keuken kijk je naar op de opkomende zon en de voortuin.

Ook de eerste verdieping is optimaal ingedeeld, hier tref je vier slaapkamers aan. De vierde slaapkamer is op de voormalige garage gesitueerd en is heerlijk ruim. Ideaal als tienerslaapkamer of voor muziek of hobby. Ook tref je op deze verdieping de complete badkamer aan met dubbele wastafel, whirlpool ligbad en douchegelegenheid. De toiletruimte is hier separaat en bereikbaar vanaf de overloop.

De tweede verdieping heeft een voorzolder met opstelplaats wasapparatuur, c.v.-installatie en toegang tot een zolderberging. De zolder is gesplitst en heeft twee mooie slaapkamers.

De woning is gelegen op korte afstand van alle voorzieningen. Met de fiets ben je in ongeveer 5 tot 10 minuten op winkelcentrum Het Rond en het NS-station. Hier tref je vele winkels aan maar kun je ook naar het theater of de bioscoop! Even snel een boodschap? De Plus buurtsuper is eveneens op enkele fietsminuten van de woning verwijderd.

Kortom een ideale gezinswoning op een uitstekende locatie, zeer geschikt voor jonge gezinnen die willen wonen en werken aan huis en alle voorzieningen binnen handbereik.

Bouwjaar 1991. Perceel: 253 m2. Woonoppervlak: 179 m2. Inhoud: 605 m3.

INDELING

BEGANE GROND: parkeerplaats op eigen terrein. Toegang tot berging.

Entree, ruime hal, toiletruimte met wandcloset en fonteintje, meterkast en garderobe.

Toegang tot de woonkamer van 36 m2 met open haard, tuindeur en schuifpui met toegang tot achtertuin gelegen op het Westen. Naast de woonkamer is de werk-/ studeerkamer aanwezig van 12 m2 met vast kozijn met lichtinval en doorgang naar de berging.

In de achtertuin is een overkapping aanwezig van circa 12 m2. Langs de zijkant van het huis is een overkapping voor fietsen, openhaard hout en buitenspullen.

De keuken is aan de voorzijde gesitueerd, deze is gedeeltelijk geplaatst in de erkerpartij en is uitgerust met de volgende inbouwapparatuur: inductiekookplaat, rvs – afzuigschouw, oven, vaatwasmachine, koelkast, natuurstenen aanrechtblad en kastruimte.

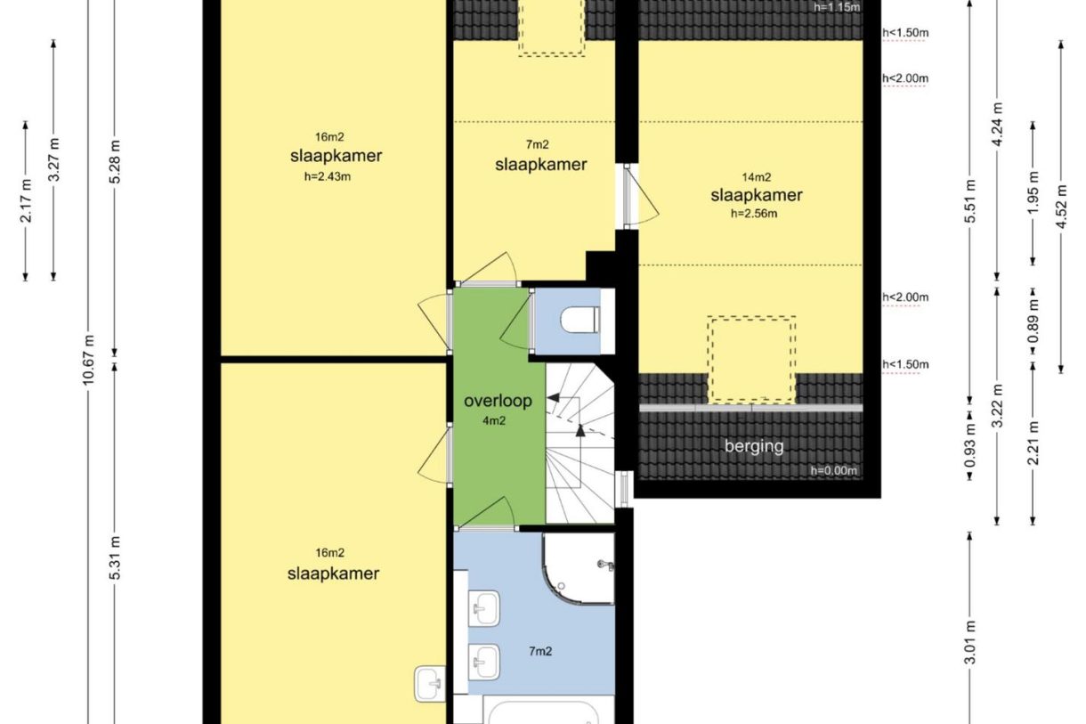
EERSTE VERDIEPING: overloop, separaat toilet, toegang tot twee slaapkamers van 16 m2, slaapkamer van 7 m2 met doorgang naar de slaapkamer van 14 m2 met lichtinval door Velux dakraam. Aan de voorzijde is bergruimte aanwezig.

Volledig betegelde badkamer met dubbele wastafel, ligbad met whirlpool en douchecabine.

TWEEDE VERDIEPING: ruime voorzolder met opstelplaats voor de wasapparatuur, wasbakje en c.v.-ketel.

Twee slaapkamers van beiden 8 m2 groot die zijn voorzien van Velux dakramen. Er is bergruimte aanwezig achter de knieschotten op beide slaapkamers en er is een praktische bergzolder aanwezig.

BIJZONDERHEDEN:
-Mooie en groene ligging aan autoluwe fietsroute;
-Woonkamer met open haard;
-Werk / studeerkamer begane grond;
-Zes slaapkamers;
-Besloten tuin op het Westen met overkapping;
-Parkeren op eigen terrein;
-Op wandelafstand van park;
-Via het Imkerspad ben je zo op Het Rond;
-Alle voorzieningen binnen handbereik;
-Utrecht eenvoudig per fiets te bereiken;
-Exact gemeten;
-Voor de indeling bekijk de plattegronden.

  • 179 m2
  • 253 m2
  • 6

Kenmerken Troubadoursborch 63

Overdracht

Vraagprijs€ 585.000,- k.k.

Oppervlaktes en inhoud

Perceel oppervlakte253 m2
Woonoppervlakte179 m2
Inhoud605 m3

Bouw

SoortEengezinswoning
BouwvormBestaande bouw
Bouwjaar1990
Dak typeZadeldak
IsolatievormenVolledig geïsoleerd
EnergielabelC

Indeling

Aantal verdiepingen3
Aantal kamers8
Aantal slaapkamers6
Aantal badkamers1

Maandlasten

Ligging Troubadoursborch 63

Voorzieningen

Centraal gelegen informatie over de buurt

Aantal inwoners

In de gemeente

49.300

Leeftijd

in percentages van totaal

Huishoudsamenstelling

in percentages van totaal

14%

20% NL

42%

20% NL

44%

20% NL

Vergelijkbaar woningaanbod