Ga naar inhoud

Te koop: woonhuis Atlaslaan 132 7904 JM Hoogeveen

Hup & Fidom Garantiemakelaars Hoogeveen
Neem contact met mij op

Verkocht

€ 265.000,- k.k.

Op zoek naar een ruime hoekwoning in Krakeel? Kom dan snel kijken bij de Atlaslaan 132 met vier slaapkamers!

Deze woning heeft een definitief energielabel C en een besloten achtertuin op het zuiden met achterom op een eigen perceel van 176 m² grond. Het huis wacht op een liefdevolle renovatie om het om te toveren tot een modern droomhuis in een rustig hofje.

De woning ligt verder centraal ten opzichte van alle denkbare voorzieningen. Op loopafstand liggen scholen, winkelcentrum “de Grote Beer”, supermarkten en multifunctioneel centrum “De Magneet”. Middelbaar onderwijs, diverse sportvoorzieningen en het centrum van Hoogeveen zijn tevens op korte/fietsafstand gelegen. Ten slotte liggen de op- en afritten van de A37 en A28 op steenworp afstand.

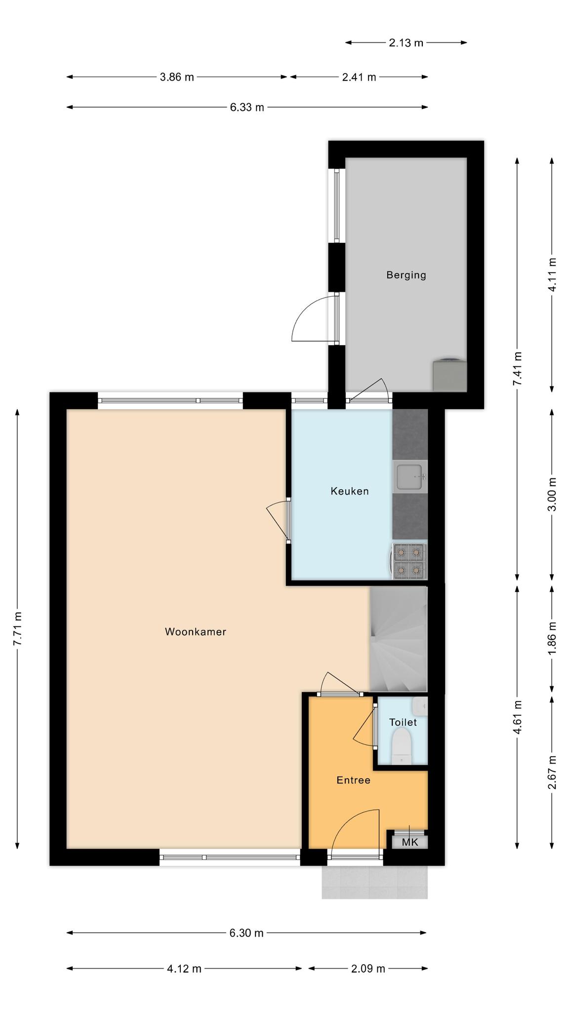
Globale indeling woonhuis:
Op de begane grond de hal/entree, meterkast en toiletruimte; royale doorzon woonkamer met open trap naar de verdieping; Dichte keuken met eenvoudige keukeninrichting; aangebouwde berging met achterom naar de tuin.
Op de verdieping een overloop met vaste kasten, drie slaapkamers, waarvan 2 met inbouwkasten, een 1 met wastafel; eenvoudige badkamer met wastafel, douche, 2e toilet en wasmachine aansluiting.
Op de zolder, welke bereikbaar is via een vaste trap, wederom een overloop met bergruimte en de vierde slaapkamer.

Buiten:
De tuin heeft een achtertuin op het zuiden welke achterom bereikbaar is. Het parkeren van de auto kan zonder parkeervergunning aan de voorzijde.

Bijzonderheden en kenmerken:
• Bouwjaar 1971;
• Verwarming en warm water middels Cv-installatie (AWB, 2011);
• Voorzien van dubbele en deels HR-beglazing;
• Woonoppervlakte ca. 120 m²;
• Perceeloppervlakte 176 m² eigen grond;
• Besloten achtertuin op het zuiden;
• Ouderdomsclausule en ‘as-is-where-is’ clausule worden opgenomen in de koopakte;
• Van deze woning is geen vragenlijst en geen lijst van zaken beschikbaar;
• Aanvaarding op korte termijn bespreekbaar.

Is jouw interesse gewekt? Wij verzorgen graag een rondleiding!
Neem contact op met ons kantoor voor het maken van een afspraak 0528-262191.

  • 120 m2
  • 176 m2
  • 4

Kenmerken Atlaslaan 132

Overdracht

Vraagprijs€ 265.000,- k.k.
AanvaardingDirect

Oppervlaktes en inhoud

Perceel oppervlakte176 m2
Woonoppervlakte120 m2
Inhoud454 m3

Bouw

SoortEengezinswoning
BouwvormBestaande bouw
Bouwjaar1971
Dak typeZadeldak
IsolatievormenDubbelglas, HR glas
EnergielabelC

Indeling

Aantal verdiepingen3
Aantal kamers5
Aantal slaapkamers4
Aantal badkamers1

Maandlasten

Ligging Atlaslaan 132

Voorzieningen

Centraal gelegen informatie over de buurt

Aantal inwoners

In de gemeente

55.311

Leeftijd

in percentages van totaal

Huishoudsamenstelling

in percentages van totaal

31%

20% NL

30%

20% NL

38%

20% NL

Vergelijkbaar woningaanbod