€ 375.000,- k.k.
Bevelandselaan 7 te Heythuysen
Op een rustige, geliefde locatie nabij het centrum van Heythuysen staat deze goed onderhouden geschakelde twee-onder-één-kapwoning/semi-bungalow met eigen oprit, carport en zonnige achtertuin met houten berging. De woning combineert het comfort van gelijkvloers wonen met extra ruimte op de verdieping – ideaal voor senioren, starters of een gezin!
Heythuysen is centraal gelegen nabij Roermond en Weert en zeer centraal t.o.v. uitvalswegen.
Indeling: Entree / hal met garderobe, meterkast, bergkast met opstelling voor wasmachine en droger / toilet met inbouwreservoir en fontein / ruime woonkamer met laminaatvloer, convectorput, sfeervolle schouw met houtkachel en open wenteltrap naar de verdieping / keuken met tegelvloer in hoekopstelling voorzien van gaskookplaat, afzuigkap, oven, koelkast en een vaatwasser / praktische bijkeuken met witgoedaansluitingen en bergruimte / vanuit de hal kunt u naar de slaapkamer / slaapkamer met directe toegang tot de tuin en de badkamer / luxe badkamer voorzien van een inloopdouche, wastafelmeubel, 2e toilet met inbouwreservoir en design radiator / fraai aangelegde zonnige achtertuin met overkapping, vijverpartij en een houten berging.
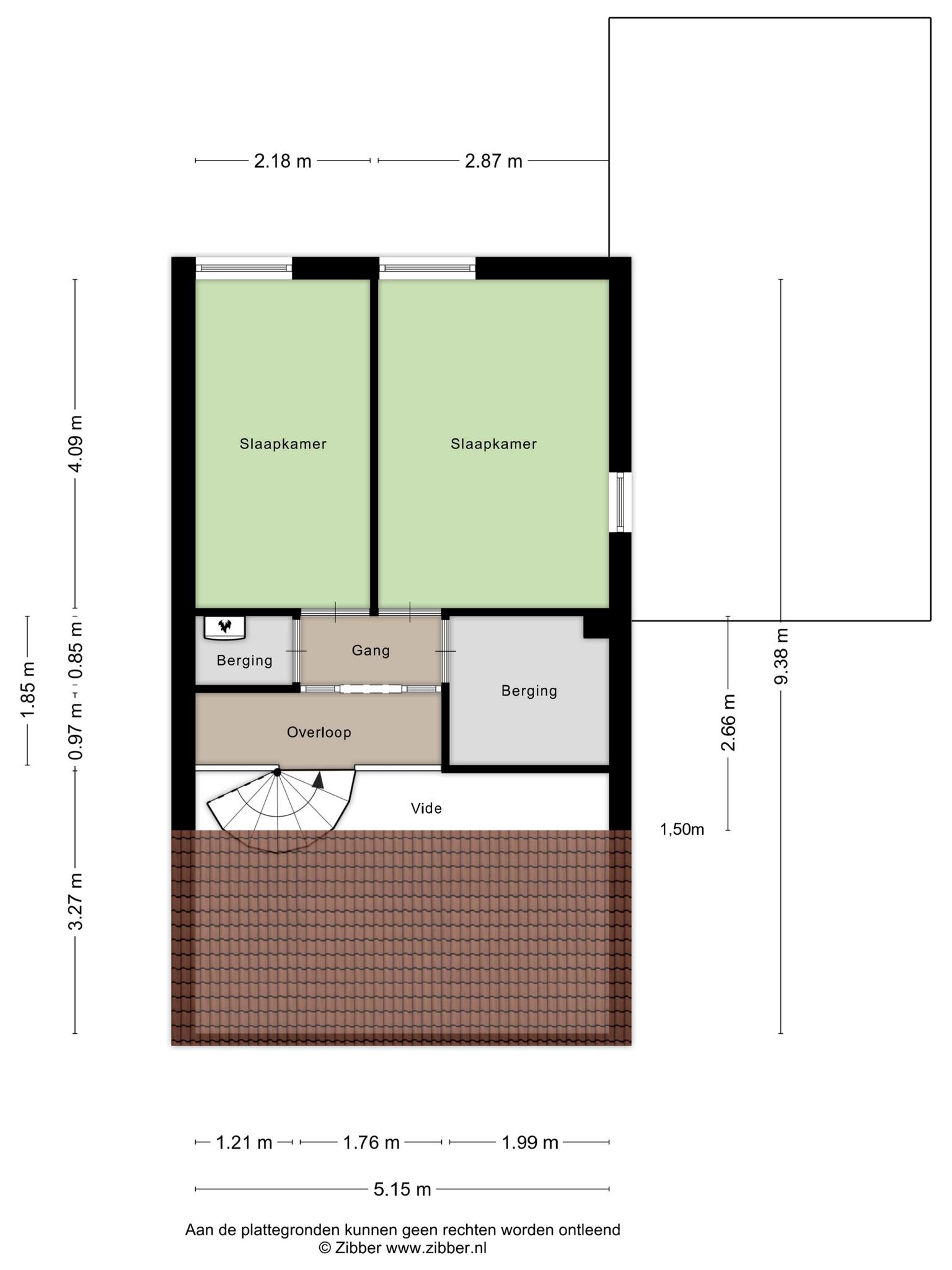
1e verdieping: Overloop met vide / berging met CV-opstelling (Intergas Kompakt HRE anno 2023) / berging / twee slaapkamers met beide een kleine vliering met extra opslagruimte.
* Bouwjaar 1978
* Perceeloppervlakte 239 m²
* Woonoppervlakte ca. 108 m²
* Inhoud ca. 384 m³
Bijzonderheden:
* Semi-bungalow met slaapkamer en badkamer op de begane grond;
* Twee slaapkamers en veel bergruimte op de verdieping, badkamer mogelijk, leidingwerk reeds aanwezig;
* Eigen oprit met parkeergelegenheid voor 2 auto’s en carport;
* Rustige ligging op loopafstand van het gezellige centrum van Heythuysen;
* Dit is uw kans om gelijkvloers te wonen met de auto voor de deur!
- 108 m2
- 239 m2
- 3
Kenmerken Bevelandselaan 7
Overdracht
| Vraagprijs | € 375.000,- k.k. | 
|---|---|
| Aanvaarding | In overleg | 
Oppervlaktes en inhoud
| Perceel oppervlakte | 239 m2 | 
|---|---|
| Woonoppervlakte | 108 m2 | 
| Inhoud | 384 m3 | 
Bouw
| Soort | Eengezinswoning | 
|---|---|
| Bouwvorm | Bestaande bouw | 
| Bouwjaar | 1978 | 
| Dak type | Lessenaardak | 
| Isolatievormen | Dakisolatie, Gedeeltelijk dubbelglas | 
| Energielabel | C | 
Indeling
| Aantal verdiepingen | 3 | 
|---|---|
| Aantal kamers | 4 | 
| Aantal slaapkamers | 3 | 
| Aantal badkamers | 1 | 
Maandlasten
Ligging Bevelandselaan 7
Voorzieningen
Centraal gelegen informatie over de buurt
Aantal inwoners
In de gemeente
35.878
Leeftijd
in percentages van totaal
Huishoudsamenstelling
in percentages van totaal
31%
20% NL
36%
20% NL
33%
20% NL
 
                             
                             
                             
                             
                             
                             
                             
                             
                             
                             
                             
                             
                             
                             
                             
                             
                             
                             
                             
                             
                             
                             
                             
                             
                             
                             
                             
                             
                             
                             
                             
                             
                             
                             
                             
                             
                             
                             
                             
                                 
                                 
                                 
                                 
                                 
                                 
                                 
                                 
                                 
                                 
                                 
                                 
                                 
                                 
                                 
                                 
                                 
                                 
                                 
                                 
                                 
                                 
                                 
                                 
                                 
                                 
                                 
                                 
                                 
                                 
                                 
                                 
                                 
                                 
                                 
                                 
                                 
                                 
                                 
                                 
                                 
                                 
                                     
                                     
                                     
                                                             
                             
                             
                             
                             
             
             
             
             
            