Ga naar inhoud

Te koop: woonhuis Bantingstraat 40 7555 ME Hengelo

Beschikbaar

Bezichtiging plannen

€ 429.500,- k.k.

Luxe, ruimte en comfort.. dat vindt u aan de Bantingstraat 40 te Hengelo (O)

In de geliefde woonwijk “Woolderes”, omringd door groen, ligt deze uitgebouwde tweekapper met stenen berging, carport en parkeergelegenheid aan de voorzijde. De woning is hoogwaardig afgewerkt en beschikt over een vernieuwde keuken, badkamer en toilet, een vernieuwde meterkast, maar liefst vier airco’s en extra isolatievoorzieningen, waardoor u verzekerd bent van optimaal wooncomfort.

Een bijzonder pluspunt is de serre van bijna 18 m² én de uitbouw met erker aan de zijkant, die het leefgedeelte flink vergroten en zorgen voor een lichte, ruime en sfeervolle woonkamer. Dankzij de serre en de erker kunt u van het vroege voorjaar tot het late najaar optimaal genieten van extra ruimte, licht en uitzicht op de tuin.

De zonnige tuin op het oosten biedt rust en privacy. Voorzieningen zoals basis- en middelbare scholen, een supermarkt, de op- en afrit van de A35, de bossen van Twickel en het gezellige stadscentrum liggen op korte afstand.

Een ideale woning voor wie luxe, comfort en een groene woonomgeving waardeert, met alle moderne gemakken binnen handbereik.

Indeling
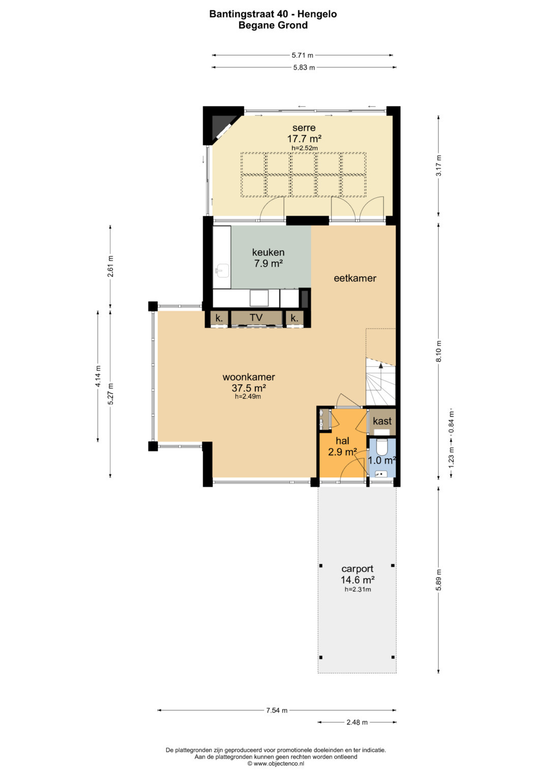
Begane grond
Bij binnenkomst komt u in de hal met garderobenis, meterkast, provisiekast en toilet. Vanuit de hal heeft u toegang tot de woonkamer met erker en de keuken, die rechtstreeks in verbinding staat met de serre via openslaande tuindeuren en een achterdeur.

De woning beschikt over een lichte en uitnodigende woonkamer van ca. 38 m², compleet met airco voor optimaal comfort. De royale erker aan de zijkant zorgt voor extra ruimte en een karakteristiek accent, terwijl de grote raampartijen zorgen voor een overvloed aan natuurlijk licht en een open, sfeervolle uitstraling.

De half open keuken is voorzien van een complete luxe inbouwkeuken in L-vormige opstelling met volop bergruimte en diverse treklades. Het geheel is opgetrokken in moderne kleurstelling en afgewerkt met een granieten aanrechtblad waarin verwerkt een enkele roestvrijstalen spoelbak. Als gebruiker/bewoner heeft u de beschikking over de navolgende inbouwapparatuur: RVS afzuigkap, 4-pits inductie kookplaat, koelkast, vaatwasser, combimagnetron.

Direct vanuit de keuken stapt u de sfeervolle serre van ca. 18 m² binnen – slim ingedeeld en een echte eyecatcher van de woning. Dankzij het dak met lichtstraat baadt deze ruimte in natuurlijk daglicht, terwijl de houtkachel in de hoek zorgt voor een warme, knusse sfeer. Hier geniet u het hele jaar door van het uitzicht op de tuin: van de eerste zonnestralen in het voorjaar tot lange, gezellige avonden in de winter.

Eerste verdieping
Op de eerste verdieping vindt u een ruime overloop met vaste trap naar de tweede verdieping, drie comfortabele slaapkamers en een stijlvolle badkamer.

Alle slaapkamers zijn voorzien van praktische draairamen, waarbij twee kamers zijn uitgerust met een airco-installatie voor extra comfort. De ruime slaapkamer aan de voorzijde heeft een inbouwkast met schuifdeuren. De kamers meten ca. 12, 10 en 6 m² en zijn ideaal als slaap-, werk- of hobbyruimte.

De zeer luxe opgetrokken badkamer is uitgevoerd in een chique kleurstelling en beschikt over een royale inloopdouche, modern wastafelmeubel, toilet en designradiator. Voor optimaal comfort is er zowel natuurlijke als mechanische ventilatie aanwezig.

Tweede verdieping
Vanaf de trapopgang komt u op de overloop, voorzien van een aparte stookruimte met de cv-installatie evenals de aansluitingen voor wasmachine en droger. Vanuit de overloop is er toegang tot de royale vierde slaapkamer.
Deze lichte en luchtige kamer is voorzien van een dakkapel aan de voorzijde en twee dakvensters aan de achterzijde, waardoor er volop lichtinval is. De laminaatvloer geeft de kamer een moderne en warme uitstraling, ideaal als master bedroom, tienerkamer of thuiskantoor.

Tuin & berging
De achtertuin is onderhoudsvriendelijk aangelegd met een mooie combinatie van bestrating en groene borders. Achterin vindt u een ruime vrijstaande stenen berging (ca. 10 m²) met elektra, ideaal voor opslag of hobby. Bovendien is er aan de zijkant een praktische, overkapte ruimte aanwezig – precies groot genoeg om een buitenkeuken te plaatsen of een knusse loungehoek te creëren.

Overige bijzonderheden:
Deze woning werd gebouwd rond 1975 en staat op een perceel van 257 m². Met een woonoppervlak van ca. 126 m² en een inhoud van 433 m³ biedt het huis volop leefruimte. Verwarming en warm water worden verzorgd door een moderne Intergas HR combiketel uit 2021 (eigendom). Dankzij vloer-, muur-, dak- én glasisolatie beschikt de woning over energielabel C.

Voor extra comfort is de gehele begane grond en de badkamer op de eerste verdieping voorzien van vloerverwarming. Daarnaast geniet u van vier airco-units, stijlvolle binnendeuren, een luxe hangtoilet op de begane grond en een prachtig maatwerk tv-meubel. Hier komt comfort samen met stijl!

”Interesse in dit huis? Schakel direct uw eigen NVM- aankoopmakelaar in. Uw NVM- aankoop makelaar komt op voor uw belang en bespaart u tijd, geld en zorgen. Adressen van collega NVM- aankoopmakelaars in Twente vindt u op nvmtwente.nl”

In de koopakte zal een deponering van 10 % waarborgsom of bankgarantie door de koper worden opgenomen.

  • 126 m2
  • 257 m2
  • 4

Kenmerken Bantingstraat 40

Overdracht

Vraagprijs€ 429.500,- k.k.
AanvaardingIn overleg

Oppervlaktes en inhoud

Perceel oppervlakte257 m2
Woonoppervlakte126 m2
Inhoud433 m3

Bouw

SoortEengezinswoning
BouwvormBestaande bouw
Bouwjaar1975
Dak typeZadeldak
IsolatievormenDakisolatie, Muurisolatie, Vloerisolatie, Grotendeels dubbelglas
EnergielabelC

Indeling

Aantal verdiepingen3
Aantal kamers6
Aantal slaapkamers4
Aantal badkamers1

Maandlasten

Ligging Bantingstraat 40

Voorzieningen

Centraal gelegen informatie over de buurt

Aantal inwoners

In de gemeente

80.802

Leeftijd

in percentages van totaal

Huishoudsamenstelling

in percentages van totaal

32%

20% NL

39%

20% NL

29%

20% NL

Vergelijkbaar woningaanbod