€ 495.000,- k.k.
Unieke kans! Ruime jaren ’30 3-kamer benedenwoning met royale tuin en eindeloos veel mogelijkheden
Ben je op zoek naar een stijlvol en sfeervol appartement dat je helemaal naar je eigen smaak kunt verbouwen? Deze ruime 3-kamer benedenwoning combineert licht, ruimte en een geweldige tuin. Perfect voor wie gelijkvloers wil wonen met een fijne buitenruimte!
Sfeervol en helemaal naar jouw wens in te richten
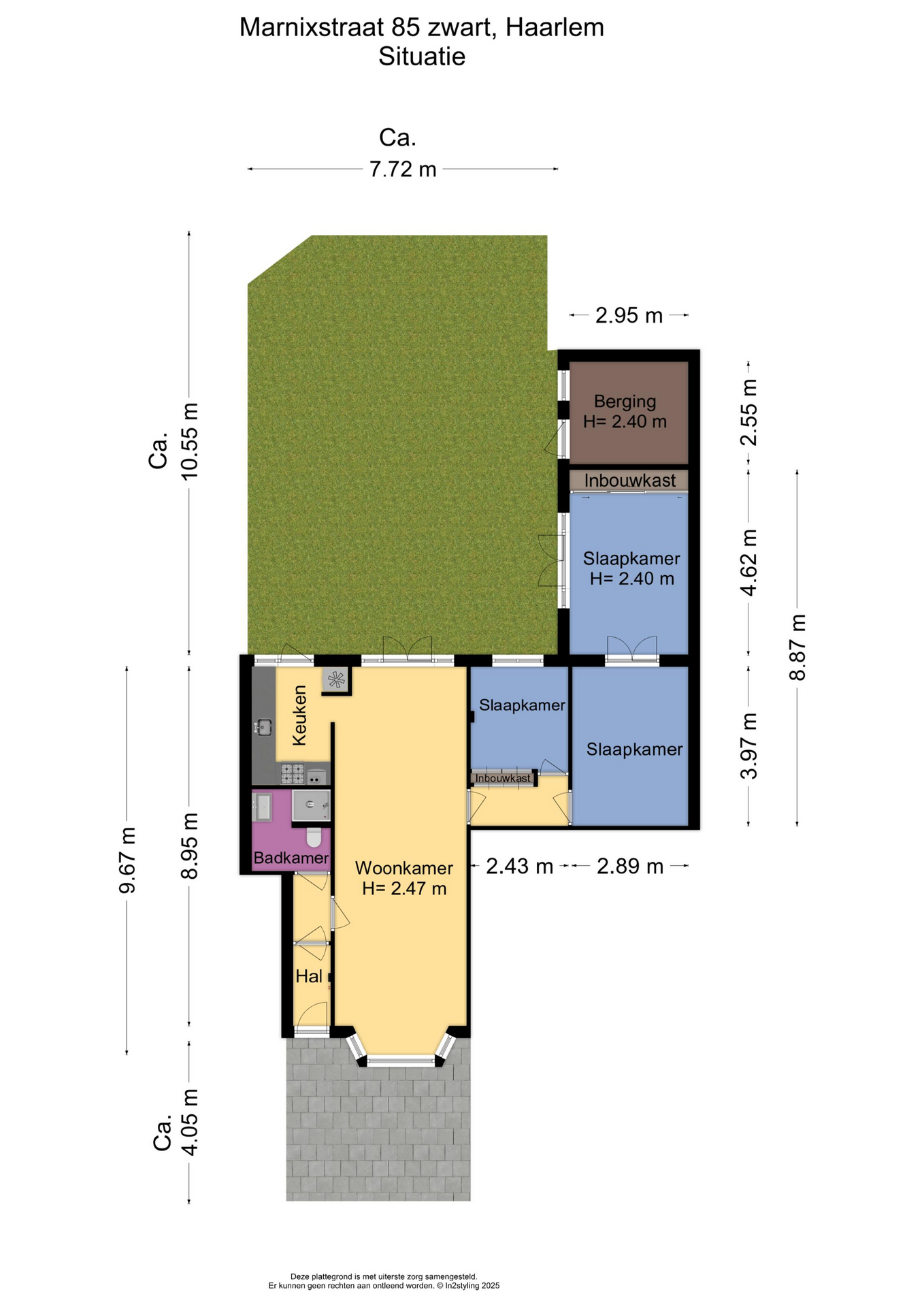
Zodra je binnenstapt, valt meteen op hoe ruim en licht de woning is. Dankzij de grote raampartijen stroomt het daglicht rijkelijk naar binnen. De woning biedt volop mogelijkheden om te moderniseren en in te delen zoals jij dat wilt. De open keuken kan eenvoudig worden aangepast aan jouw smaak en de royale woonkamer biedt talloze indelingsopties.
Rust en ruimte in een groene omgeving
De ruime slaapkamer is een oase van rust en biedt volop comfort. Aansluitend ligt de voormalige slaapkamer, ideaal als thuiskantoor of hobbyruimte. De tweede slaapkamer is perfect als kinderkamer of extra werkplek. En dan de tuin: een echte eyecatcher! Goed onderhouden, royaal en dé plek om te ontspannen of te genieten van de zon. In de tuin een ruime geïsoleerde en verwarmde schuur van 7,5 m2.
Toplocatie met alles binnen handbereik
Dit appartement ligt in een geliefde en levendige buurt, op loopafstand van winkels, gezellige restaurants en het openbaar vervoer. Binnen een paar minuten sta je in het bruisende stadscentrum of wandel je door een nabijgelegen park. De Haarlemmer Kweektuin en speeltuin Burcht Ter Cleeff zijn om de hoek, en met de fiets ben je zo in de duinen, het bos of op het strand.
Benieuwd? Kom kijken en ontdek de mogelijkheden!
Vereniging van Eigenaren (VvE):
Het complex bestaat uit vijf leden.
De maandelijkse servicekosten bedragen € 80,-
Eigen grond:
Het appartement staat op eigen grond (kadastraal bekend als Gemeente Schoten, sectie B, nummer 15578, index A1).
Kenmerken:
• Woonoppervlak: ca. 82 m² (conform NEN2580)
• Actieve VvE, servicekosten € 80,- per maand
• Remeha CV-combiketel 2019
• Isolerende beglazing
• Het bruisende centrum van Haarlem ligt op 15 minuten fietsen
• Gelegen in de Bomenbuurt aan het randje van het Kleverpark
• De Haarlemmer kweektuin op enkele minuten lopen
• Voor de kinderen is speeltuin Burcht Ter Cleeff om de hoek
• Albert Heijn Soendaplein en winkelstraat De Cronjé op 5 minuten fietsen
• Duinen, bos en strand op fietsafstand
• Oplevering in overleg, kan spoedig
Benieuwd? Dit zou zomaar jouw nieuwe thuis kunnen zijn!
Onze makelaars nemen graag de tijd om je rond te leiden in deze jaren ’30 benedenwoning.
Zie voor de indeling en maatvoering de plattegronden.
Interesse in deze woning?
Schakel je eigen NVM-aankoopmakelaar in. Jouw NVM-aankoopmakelaar komt op voor jouw belang en bespaart je tijd, geld en zorgen. Adressen van collega NVM-aankoopmakelaars vind je op de website van Funda.
Let op: Deze informatie is met zorg samengesteld, maar er kunnen geen rechten aan worden ontleend. Alle opgegeven maten en oppervlakten zijn indicatief.
- 82 m2
- 2
Kenmerken Marnixstraat 85ZW
Overdracht
| Vraagprijs | € 495.000,- k.k. |
|---|---|
| Aanvaarding | In overleg |
Oppervlaktes en inhoud
| Woonoppervlakte | 82 m2 |
|---|---|
| Inhoud | 317 m3 |
Bouw
| Soort | Benedenwoning |
|---|---|
| Bouwvorm | Bestaande bouw |
| Bouwjaar | 1933 |
| Isolatievormen | Dubbelglas |
| Energielabel | C |
Indeling
| Aantal verdiepingen | 1 |
|---|---|
| Aantal kamers | 3 |
| Aantal slaapkamers | 2 |
| Aantal badkamers | 1 |
Maandlasten
Ligging Marnixstraat 85ZW
Voorzieningen
- Openbare Basisschool De Wilgenhoek 444 m Wilgenstraat 81 HAARLEM
- Hogeschool IPABO Amsterdam Alkmaar 14 km Jan Tooropstraat 136 AMSTERDAM
- ROC Nova College 683 m IJsbaanlaan 4-F 4f HAARLEM
- Hogeschool IPABO Amsterdam Alkmaar 14 km Jan Tooropstraat 136 AMSTERDAM
- Vrije Universiteit Amsterdam 17 km De Boelelaan 1105 AMSTERDAM
Centraal gelegen informatie over de buurt
Aantal inwoners
In de gemeente
159.229
Leeftijd
in percentages van totaal
Huishoudsamenstelling
in percentages van totaal
33%
20% NL
26%
20% NL
41%
20% NL