€ 600.000,- k.k.
English text below.
Zeer verzorgd wonen in de Indische Buurt
Deze sfeervolle en uitstekend onderhouden tussenwoning in de populaire Indische Buurt biedt alles wat een gezin zich kan wensen. Met maar liefst zes slaapkamers en twee badkamers is er volop ruimte voor iedereen. De woning is instap klaar en is aangepast aan de eisen van deze tijd.
De lichte woonkamer met openslaande deuren naar de gezellige achtertuin vormt het hart van het huis. De moderne open keuken, uitgerust met hoogwaardige inbouwapparatuur, maakt het koken een waar genot. De achtertuin biedt een heerlijke plek om te ontspannen.
De woning is ideaal gelegen, op korte afstand van scholen, winkels, sport- en recreatievoorzieningen, openbaar vervoer en uitvalswegen, waardoor alle voorzieningen binnen handbereik zijn.
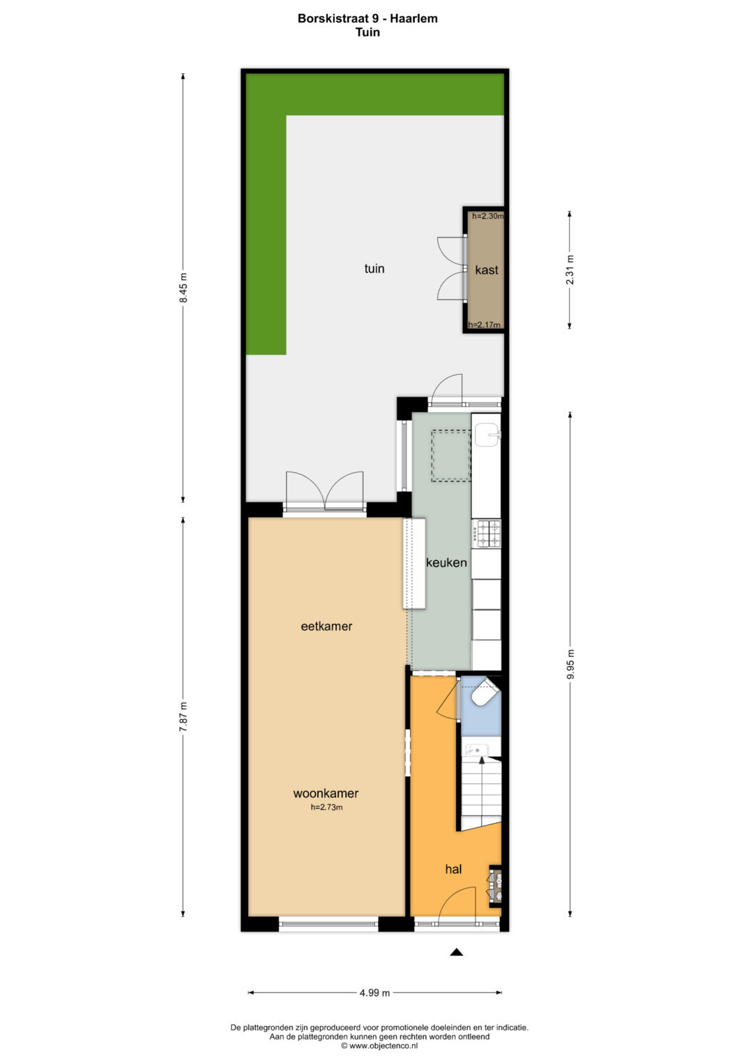
Begane grond:
Ruime entree/hal, meterkast, toilet, sfeervolle woonkamer met openslaande deuren naar de tuin, moderne open keuken met diverse inbouwapparatuur en toegang tot de tuin met handige tuinkast.
1e Verdieping:
Overloop met wasmachine- en drogeraansluiting, twee ruime slaapkamers aan de voorzijde (waarvan één met vaste kast), een slaapkamer aan de achterzijde met vaste kast en een badkamer met tweede toilet, wastafelmeubel en douche.
2e Verdieping:
Overloop, twee slaapkamers aan de voorzijde, een slaapkamer aan de achterzijde met vaste kast en een tweede badkamer met derde toilet, wastafelmeubel en ligbad.
Goed om te weten:
– Bouwjaar 1920
– Gunstige ligging nabij winkels, scholen, sportfaciliteiten en uitvalswegen
– Instap klaar en goed onderhouden
– In 2020 is de woning gerenoveerd (inclusief hydraulische leidingen)
– Keuken, ramen vernieuwd in 2022 en derde verdieping geplaatst in 2022
– Oplevering in overleg
Benieuwd naar deze prachtige woning? Plan een bezichtiging en ontdek zelf de charme en ruimte die dit huis te bieden heeft!
———-
Enlish text:
Well-Maintained Living in the Indische Buurt
This charming and excellently maintained terraced house in the popular Indische Buurt offers everything a family could wish for. With no fewer than six bedrooms and two bathrooms, there is plenty of space for everyone. The house is move-in ready and adapted to modern living standards.
The bright living room with French doors leading to the cozy backyard forms the heart of the home. The modern open kitchen, equipped with high-quality built-in appliances, makes cooking an absolute pleasure. The backyard provides a wonderful place to relax.
The property is ideally located, within a short distance of schools, shops, sports and recreational facilities, public transport, and major roads, ensuring all amenities are within easy reach.
Ground Floor:
Spacious entrance/hallway, meter cupboard, toilet, cozy living room with French doors to the garden, modern open kitchen with various built-in appliances, and access to the garden with a convenient storage shed.
First Floor:
Landing with washing machine and dryer connections, two spacious bedrooms at the front (one with a built-in wardrobe), a bedroom at the rear with a built-in wardrobe, and a bathroom with a second toilet, vanity unit, and shower.
Second Floor:
Landing, two bedrooms at the front, a bedroom at the rear with a built-in wardrobe, and a second bathroom with a third toilet, vanity unit, and bathtub.
Good to Know:
– Built in 1920
– Convenient location near shops, schools, sports facilities, and major roads
– The house was renovated in 2020 (including hydraulic pipes)
– Kitchen, windows renewed in 2022 and third floor built in 2022
– Move-in ready and well maintained
– Delivery in consultation
Curious about this stunning home? Schedule a viewing and experience the charm and space this house has to offer!
- 117 m2
- 90 m2
- 6
Kenmerken Borskistraat 9
Overdracht
| Vraagprijs | € 600.000,- k.k. |
|---|---|
| Aanvaarding | In overleg |
Oppervlaktes en inhoud
| Perceel oppervlakte | 90 m2 |
|---|---|
| Woonoppervlakte | 117 m2 |
| Inhoud | 416 m3 |
Bouw
| Soort | Eengezinswoning |
|---|---|
| Bouwvorm | Bestaande bouw |
| Bouwjaar | 1920 |
| Dak type | Plat dak |
| Isolatievormen | Dakisolatie, Muurisolatie, Dubbelglas |
| Energielabel | B |
Indeling
| Aantal verdiepingen | 3 |
|---|---|
| Aantal kamers | 7 |
| Aantal slaapkamers | 6 |
| Aantal badkamers | 2 |
Maandlasten
Ligging Borskistraat 9
Voorzieningen
- Dr H Bavinckschool 113 m Ambachtstraat 1 HAARLEM
- Hogeschool IPABO Amsterdam Alkmaar 13 km Jan Tooropstraat 136 AMSTERDAM
- ROC Nova College 594 m Planetenlaan 5 HAARLEM
- Hogeschool IPABO Amsterdam Alkmaar 13 km Jan Tooropstraat 136 AMSTERDAM
- Vrije Universiteit Amsterdam 17 km De Boelelaan 1105 AMSTERDAM
Centraal gelegen informatie over de buurt
Aantal inwoners
In de gemeente
159.229
Leeftijd
in percentages van totaal
Huishoudsamenstelling
in percentages van totaal
33%
20% NL
21%
20% NL
45%
20% NL