Ga naar inhoud

Te koop: woonhuis Koningin Wilhelminaweg 45 6562 KX Groesbeek

Beschikbaar

Bezichtiging plannen

€ 1.295.000,- k.k.

Uniek landhuis met karakter, paardenfaciliteiten en ruim 1,1 hectare grond

Op een prachtige locatie ligt dit charmante vrijstaande landhuis met volop leefruimte, karakteristieke details en uitstekende voorzieningen voor paardenliefhebbers. De woning combineert landelijk wonen met comfort en praktische indeling.
Het complete centrum van Groesbeek ligt op fietsafstand maar u kunt ook vanuit uw huis een buitenrit in het Reichswald gaan maken.

Begane grond:

Entree met hal en ruim toilet. De gezellige woonkeuken is voorzien van een estriken vloer, open haard en ruimte voor een royale eettafel. Aangrenzend bevindt zich de bijkeuken met achterdeur en aansluitingen voor was apparatuur.
De riante woonkamer met grote schouw en deels open vide straalt warmte en sfeer uit. Daarnaast is er een aparte studeerkamer. De stijlvolle badkamer is uitgerust met een ligbad op pootjes, inloopdouche en twee vaste wastafels.

Eerste verdieping:

Overloop met vaste kast, twee slaapkamers en een trap naar de bergzolder met cv-installatie en indirect gestookte boiler.
Een ruime L-vormige kamer biedt de mogelijkheid om twee extra kamers te creëren. Via een brug bereikt u nog twee slaapkamers, elk voorzien van vaste wastafel en met iedere kamer eigen toegang tot een douche.

Buitenruimte:

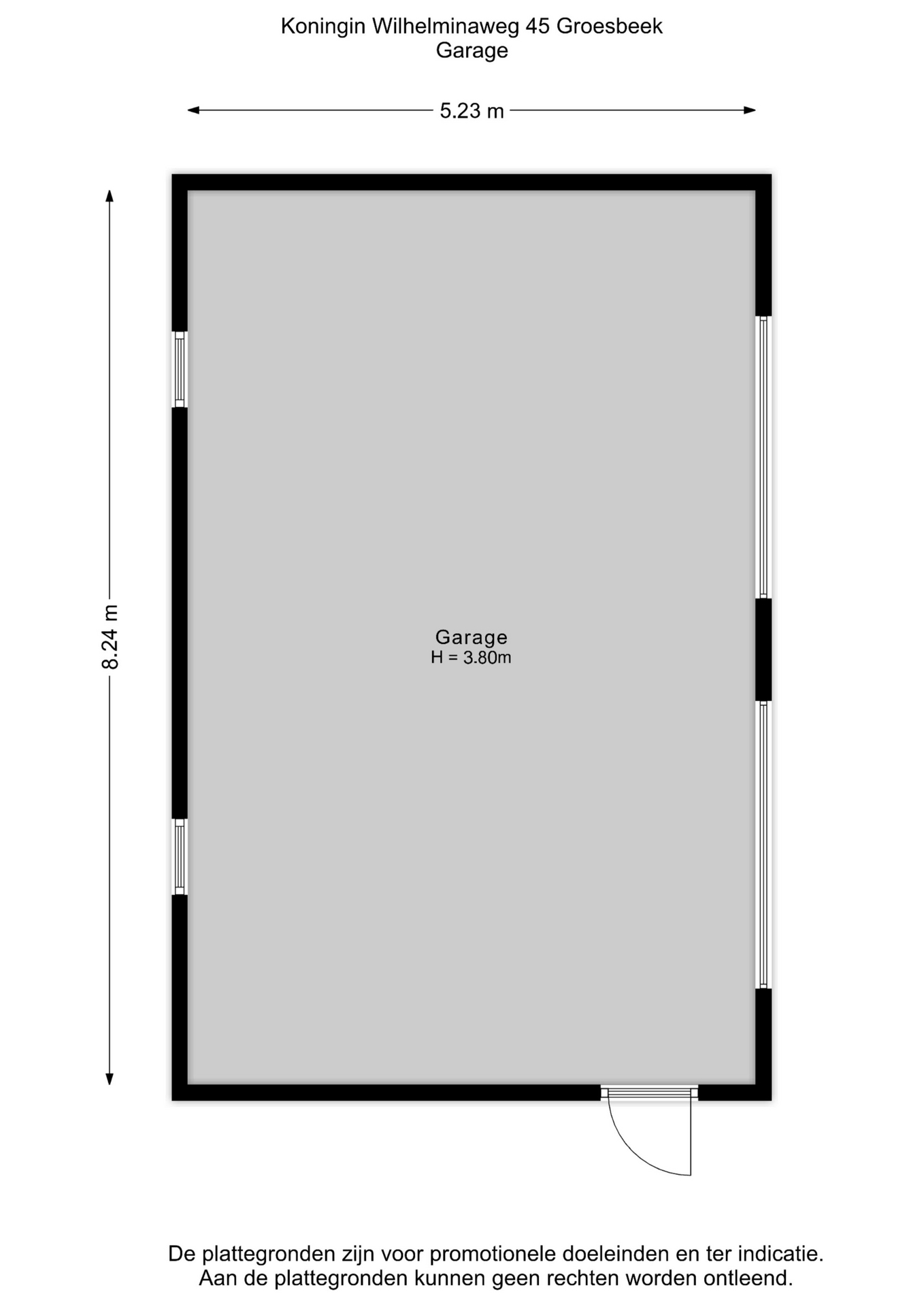
Het geheel staat op een perceel van ca. 1,1 hectare met een dubbele garage, laadpunt voor elektrische auto, negen paardenstallen, een zadelhok, keukenblok en toilet.
Er is een buiten rijbak van 20 x 40 meter en een aparte oprijlaan voor de paardenbeweging.

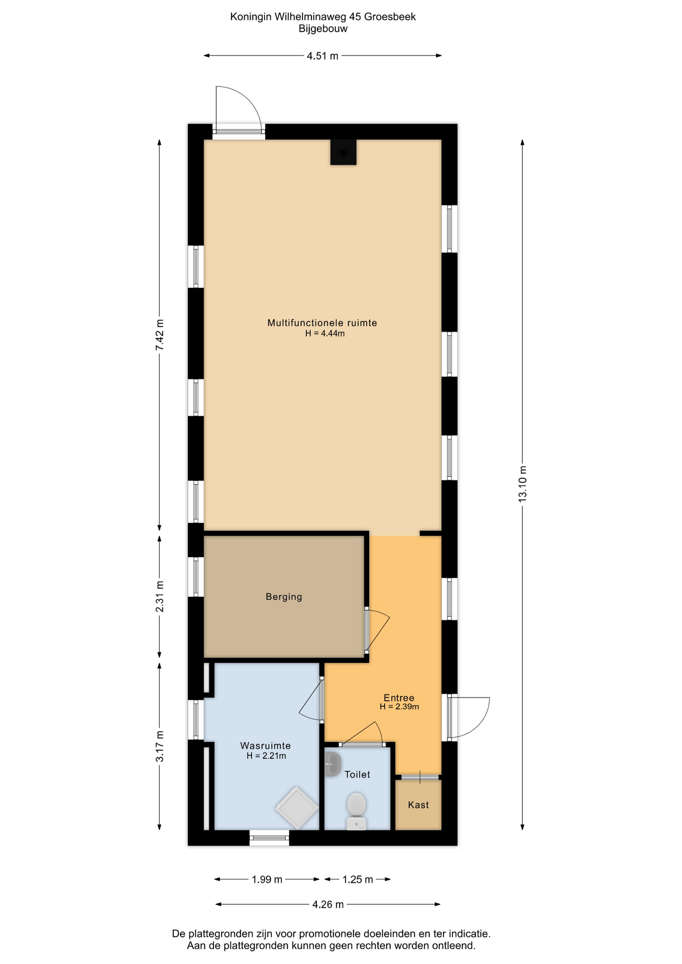
Bijgebouw/Jeugdhonk:

Entree met toilet, waskamer, hobbyruimte en gezellige relax ruimte met kachel. Ideaal als ontspanningsplek voor opgroeiende jeugd of gastenverblijf.

Omgeving:

De woning ligt op een prachtige, groene locatie aan de rand van Groesbeek. Hier geniet je van ruimte en een fraai uitzicht over het glooiende landschap. Voorzieningen zoals winkels, scholen en sportfaciliteiten liggen op korte afstand, terwijl Nijmegen binnen circa 15 minuten bereikbaar is. De omgeving biedt volop mogelijkheden om te wandelen, fietsen en te genieten van het buitenleven.

Kortom, een uniek object met veel mogelijkheden, ruimte en karakter.
Perfect voor wie comfortabel wil wonen met volop voorzieningen voor het buitenleven en paardenliefde!

Bijzonderheden:
* Vrijstaand landhuis op ca. 1,1 hectare grond;
* 9 paardenstallen, zadelhok en buitenrijbak (20 x 40 m);
* Riante woonkamer met open haard en vide;
* Sfeervolle woonkeuken met estriken vloer en haard;
* 5 slaapkamers en 2 badkamers, deels met eigen douche;
* Dubbele garage en bijgebouw met hobby-/relaxruimte;
* Voorzien van 28 zonnepanelen;
* Landelijke ligging met veel privacy en karakter.

  • 352 m2
  • 10.590 m2
  • 5

Kenmerken Koningin Wilhelminaweg 45

Overdracht

Vraagprijs€ 1.295.000,- k.k.
AanvaardingIn overleg

Oppervlaktes en inhoud

Perceel oppervlakte10.590 m2
Woonoppervlakte352 m2
Inhoud1.405 m3

Bouw

SoortLandhuis
BouwvormBestaande bouw
Bouwjaar1947
Dak typeZadeldak
EnergielabelC

Indeling

Aantal verdiepingen4
Aantal kamers7
Aantal slaapkamers5
Aantal badkamers3

Maandlasten

Ligging Koningin Wilhelminaweg 45

Voorzieningen

Centraal gelegen informatie over de buurt

Aantal inwoners

In de gemeente

34.764

Vergelijkbaar woningaanbod