Ga naar inhoud

Te koop: woonhuis Rhônelaan 16 5627 VZ Eindhoven

Beschikbaar

Bezichtiging plannen

€ 539.500,- k.k.

Fraaie, uitgebouwde 2-onder-1kap-woning met lichte woonkamer, 5 slaapkamers, een eigen oprit met carport, garage en een 15 meter diepe achtertuin. De woning is volledig geïsoleerd: energielabel B! In 2024 is het dak van de carport vernieuwd. Het schilderwerk aan de buitenzijde is in 2024 vernieuwd. De woning is gunstig gelegen in de kindvriendelijke wijk “Achtse Barrier” nabij diverse voorzieningen zoals; kinderopvang, scholen, speeltuintjes, winkelcentrum en uitvalswegen. Zoekt u een ruim huis met een flinke tuin op een fijne locatie? Kom dan snel kijken!

INDELING:

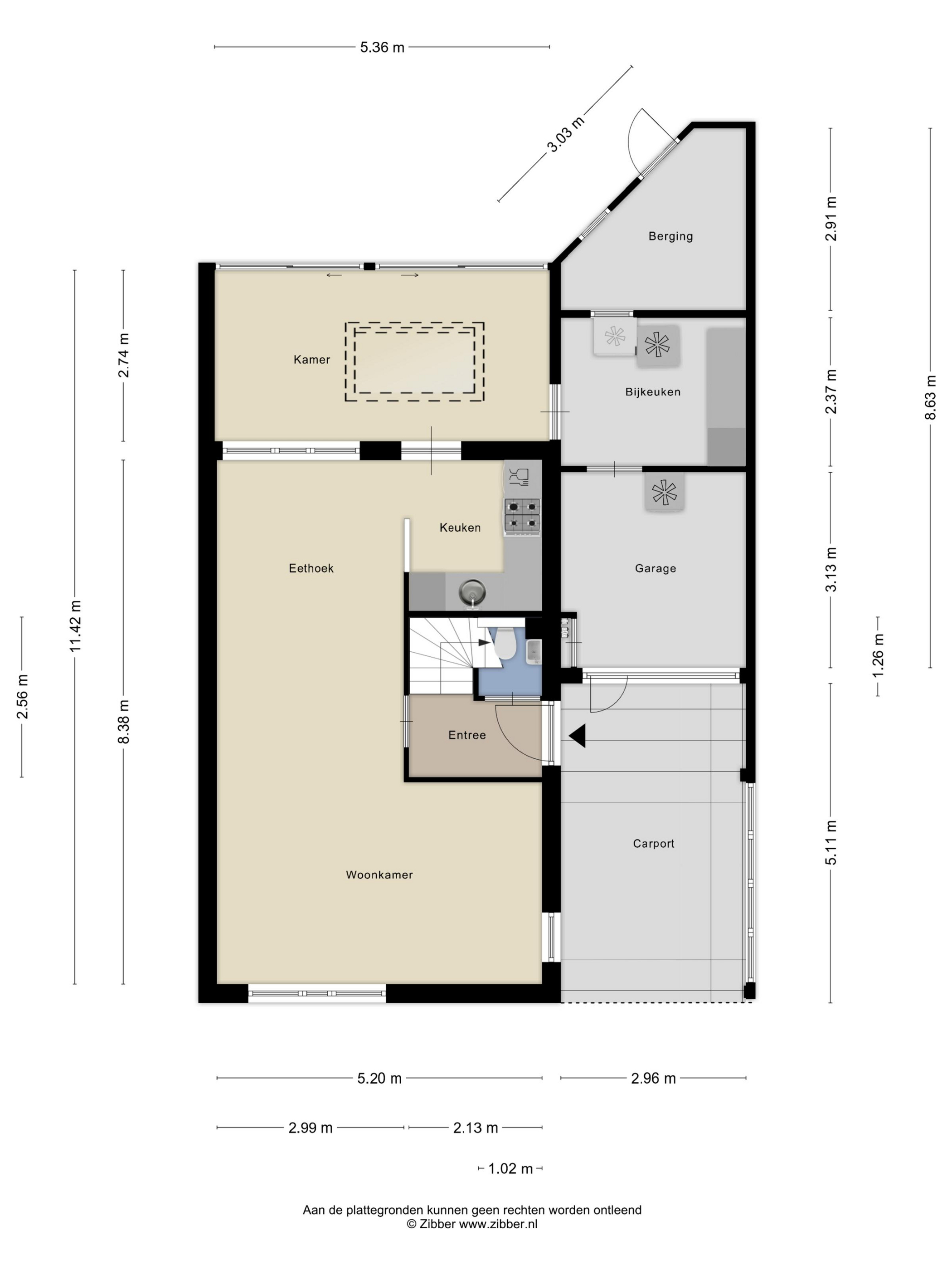
BEGANE GROND:
Overdekte entree. Hal met laminaat vloer en stucwerk wandafwerking. Deels betegeld toilet met hang closet, fonteintje en afzuiging. Lichte, L-vormige woonkamer met laminaat vloer en stucwerk wandafwerking. Het plafond is voorzien van een fraaie sierlijst. Half open keuken aan de achterzijde met laminaat vloer, stucwerk wandafwerking en doorgang naar de serre. L-vormige keukenopstelling met verschillende inbouwapparatuur: oven, gaskookplaat, afzuiging, vaatwasser, elektrische boiler (2015) en verschillende opbergkastjes en lades. In circa 2013 aangebouwde serre met tegelvloer, licht koepel met melkglas, stucwerk wandafwerking, een dubbele schuifpui naar de achtertuin en een deur naar de bijkeuken. De praktische bijkeuken is voorzien van betegeling en een deur naar de garage. Verder is de bijkeuken voorzien van een rechte keuken opstelling met verschillende kasten.

1E VERDIEPING:
Overloop met laminaat vloer en stucwerk wandafwerking. Bij de trapopgang naar de 1e verdieping is er een raam geplaatst wat een prettig daglicht geeft. Slaapkamer 1 aan de voorzijde met laminaat vloer en inbouwkast. Slaapkamer 2 aan de voorzijde met laminaat vloer. Slaapkamer 3 aan de achterzijde met laminaat vloer en inbouwkast. Volledig betegelde badkamer aan de achterzijde met douche, ligbad, wastafel, toilet en afzuiging. De aansluiting voor de wasmachine bevindt zich in de badkamer.

2E VERDIEPING:
Voorzolder met tapijt vloer en bergruimte. Hier bevindt zich de CV ketel (Atag, bouwjaar 2018), de unit van de mechanische ventilatie (2005) en een luik naar de bergvliering. Slaapkamer 4 aan de voorzijde met laminaat vloer en Velux dakraam. Slaapkamer 5 aan de achterzijde met laminaat vloer en Velux dakraam.

TUIN, GARAGE & BERGING:
Voortuin met beplanting en oprit. De oprit met carport. De oprit biedt de mogelijkheid voor het parkeren van 2 auto’s (achter elkaar). Ruim 15 meter diepe achtertuin gelegen op het noord/oosten. Omdat de tuin zo diep is, is er altijd wel een plekje ín en úit de zon te vinden. De achtertuin is voorzien van bestrating en verschillende borders met vaste beplanting. Houten berging met elektra. De berging is bereikbaar vanuit de achtertuin en vanuit de bijkeuken. De garage bevindt zich aan de voorzijde en deze is bereikbaar via de bijkeuken en een stalen kanteldeur met loopdeur naar de oprit. De meterkast bevindt zich in de garage (5 groepen en 2 aardlekschakelaars).

ALGEMEEN:
– Fraaie, uitgebouwde 2-onder-1kap-woning met lichte woonkamer, 5 slaapkamers, een eigen oprit met carport en een 15 meter diepe achtertuin.
– De woning is gunstig gelegen in de kindvriendelijke wijk “Achtse Barrier” nabij diverse voorzieningen zoals; kinderopvang, scholen, speeltuintjes, winkelcentrum en uitvalswegen.
– In 2015 is het dak van de berging en de serre vernieuwd.
– In 2024 is het dak van de carport vernieuwd.
– In 2024 is het buitenschilderwerk vernieuwd.
– Energielabel B!
– Woonoppervlakte 138 m2.
– Perceeloppervlakte 249 m2.
– Aanvaarding in overleg.
– Zoekt u een ruim huis met een flinke tuin op een fijne locatie? Kom dan snel kijken!

  • 138 m2
  • 249 m2
  • 5

Kenmerken Rhônelaan 16

Overdracht

Vraagprijs€ 539.500,- k.k.
AanvaardingIn overleg

Oppervlaktes en inhoud

Perceel oppervlakte249 m2
Woonoppervlakte138 m2
Inhoud522 m3

Bouw

SoortEengezinswoning
BouwvormBestaande bouw
Bouwjaar1989
Dak typeZadeldak
IsolatievormenDakisolatie, Muurisolatie, Vloerisolatie, Dubbelglas, HR glas
EnergielabelB

Indeling

Aantal verdiepingen3
Aantal kamers7
Aantal slaapkamers5
Aantal badkamers1

Maandlasten

Ligging Rhônelaan 16

Voorzieningen

Centraal gelegen informatie over de buurt

Aantal inwoners

In de gemeente

226.868

Leeftijd

in percentages van totaal

Huishoudsamenstelling

in percentages van totaal

24%

20% NL

34%

20% NL

42%

20% NL

Vergelijkbaar woningaanbod