Ga naar inhoud

Te koop: woonhuis Scheendijk 23-15 3621 VC Breukelen

Beschikbaar

Bezichtiging plannen

€ 545.000,- k.k.

Deze charmante, rietgedekte woning is prachtig gelegen aan de Loosdrechtse Plassen en beschikt over een royale tuin met terras, een vlonderterras aan het water, eigen ligplaats(en) bij het huis en een parkeerplaats bij de entree toegankelijk. Met een token tegen seizoensvergoeding. De locatie is ideaal voor liefhebbers van water en natuur. Varen, zwemmen, surfen, waterskiĆ«n, vissen, schaatsen en fietsen – het behoort hier allemaal tot de mogelijkheden. Binnen enkele vaarminuten bereikt u de uitgestrekte Loosdrechtse Plassen en de schilderachtige rivier de Vecht. De bestemming van de woning is recreatie, maar permanente bewoning wordt gedoogd. Roerende zaken in en om de woning evenals de motorboot, een Antaris 570 Vetus, zijn over te nemen in overleg.

De Scheendijk is een populair recreatie- en watersportgebied dat ligt op circa 1.5 kilometer (fiets)afstand van Breukelen met alle voorzieningen zoals winkels, restaurantjes, supermarkt en het NS-station.

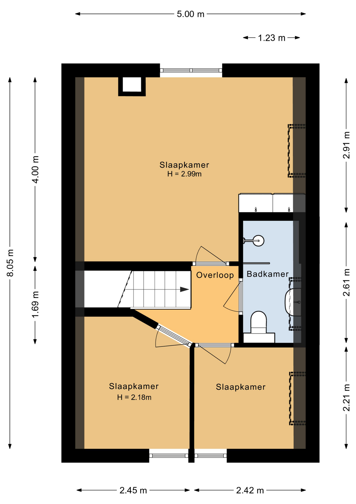
Indeling

Begane grond
Entree, meterkast, doorgang naar inpandige berging (met wasmachine, drogeraansluiting en HR-combiketel), toiletruimte met hangend toilet en fonteintje, trap naar de 1e verdieping en toegang tot de woonkamer met open keuken. Het huis is gemakkelijk centraal te verwarmen met een HR-combiketel en de woonkamer is daarnaast voorzien van een sfeervolle gashaard. De woonkamer en open keuken hebben grote raampartijen met mooi uitzicht over het water en een loopdeur naar het terras. De open keuken is voorzien van diverse inbouwapparatuur, zoals een gaskookplaat met wokbrander, afzuiging, koelkast, vriezer, combi-oven/magnetron en vaatwasmachine. Een bedbank in de woonkamer biedt slaapgelegenheid aan 2 extra personen.

Berging
De berging, vanaf zowel binnen als buiten bereikbaar, is voorzien van een HR-combiketel, een wasmachine en een drogeraansluiting.

1e Verdieping
Overloop met toegang tot 3 slaapkamers en een badkamer.
Slaapkamer I is een royale slaapkamer met dakramen, hoge nok en fraai uitzicht over de trekgaten. De slaapkamer is voorzien van een vaste kast en een 2-persoons wastafelmeubel.
Slaapkamer II en III zijn kleinere kamers, eveneens met hoge nok.
De 3 slaapkamers bieden slaapgelegenheid aan ten minste 6 personen.
De nette badkamer biedt een inloopdouche, wastafel en hangend toilet.

Vliering
Op de 1e verdieping bevindt zich de toegang tot een vliering boven de slaapkamers II en III.

Tuin
De fraai aangelegde en verzorgde tuin beschikt over meerdere terrassen, gezellige zitjes en sfeervolle hoekjes om optimaal van het buitenleven te genieten. Daarnaast is er een vlonderterras aan het water en een overkapping met buitendouche (warm en koud). De vrijstaande berging biedt praktische opbergruimte, bijvoorbeeld voor tuingereedschap. Aan de aanlegsteiger is ruimte voor het aanmeren van 2, mogelijk zelfs 3 boten. De woning is aan de oost- en zuidzijde voorzien van elektrische zonneschermen en elektrische rolluiken en aan de zuidzijde van een rolwindscherm, zodat je ook in het voor- en naseizoen volop kunt genieten.

Bouwjaar: 2004
Gebruiksoppervlakte wonen: circa 77 m2
Bruto inhoud woning: circa 256 m3
Kadastrale grootte: 476 m2

De oppervlakten en algeheel resultaat zijn opgebouwd conform de Branche Brede Meet Instructie (BBMI) afgeleid van de NEN2580. Aan de oppervlakten en inhouden kunnen geen rechten worden ontleend.

Bijzonderheden
– De woning is volledig geĆÆsoleerd en voorzien van HR+ en HR+++ glas en veiligheidsbeslag
– Definitief energielabel B
– Buitenschilderwerk tuin- en waterzijde is in 2025 uitgevoerd
– Kozijn en glas begane grond aan waterkant is in 2021 vernieuwd
– Kozijn en glas begane grond aan tuinkant is in 2025 vernieuwd
– De rieten kap is meest recentelijk bijgestoken in 2021
– Beschoeiing vanaf de bouw
– Deels voorzien van rolluiken
– Eigen grond
– De bestemming van deze woning is recreatie. Permanente bewoning wordt gedoogd
– Mechanische ventilatie aanwezig
– Parkeerplaats (niet eigendom van de verkoper) nu toegankelijk met een token tegen huidige seizoensvergoeding van € 245,00.
– CV HR combiketel Intergas (2021)
– Er is een informele vereniging van eigenaren die onderling prettig contact houden (via een app)
– Bootonderhoud en -stalling kan in de buurt plaatsvinden. Watersportwinkel om de hoek

  • 77 m2
  • 476 m2
  • 3

Kenmerken Scheendijk 23-15

Overdracht

Vraagprijs€ 545.000,- k.k.
AanvaardingIn overleg

Oppervlaktes en inhoud

Perceel oppervlakte476 m2
Woonoppervlakte77 m2
Inhoud256 m3

Bouw

SoortEengezinswoning
BouwvormBestaande bouw
Bouwjaar2004
Dak typeMansardedak
IsolatievormenDakisolatie, Muurisolatie, Vloerisolatie, Dubbelglas, Volledig geĆÆsoleerd
EnergielabelB

Indeling

Aantal verdiepingen2
Aantal kamers4
Aantal slaapkamers3
Aantal badkamers1

Maandlasten

Ligging Scheendijk 23-15

Voorzieningen

Centraal gelegen informatie over de buurt

Aantal inwoners

In de gemeente

64.450

Vergelijkbaar woningaanbod