€ 415.000,- k.k.
Ruime hoekwoning met grote, zonnige tuin, 2 parkeerplaatsen en mogelijkheid voor garage in Rijkerswoerd.
Dit is een sfeervolle hoekwoning met een heerlijk ruimtegevoel. De woonkamer is royaal bemeten, er valt veel natuurlijk licht naar binnen en creëert een lichte, open sfeer. Boven bevinden zich drie volwaardige slaapkamers en een ruime zolder die naar wens kan worden ingericht, bijvoorbeeld als werkplek, hobbyruimte of extra slaapkamer.
De tuin is ook een groot pluspunt: diep, netjes onderhouden en perfect op het zuidwesten gelegen. Hier kun je van ‘s ochtends tot ‘s avonds van de zon genieten. Met de overkapping/serre kun je ook bij wisselvallig weer lekker buiten zitten, bijvoorbeeld voor een kop koffie of een gezellige avond.
De woning ligt in de rustige, groene wijk Rijkerswoerd. Een kindvriendelijke buurt met een open opzet en alle voorzieningen binnen handbereik, zoals scholen, winkels, het park en het openbaar vervoer.
Bijzonderheden:
+ Gebruiksoppervlakte wonen 109 m²
+ Totale kavel is 195 m2
+ Ideale eengezinswoning
+ Royale opbergmogelijkheden – dankzij berging, bijkeuken én extra berging
+ Moderne badkamer – vernieuwd in 2021 en voorzien van dakkapel
+ Fraaie keuken uit 2017 – voorzien van inbouwspotjes en veel opbergruimte
+ Grote multifunctionele zolderruimte – in te richten als werkplek, hobbyruimte of extra slaapkamer
+ Diepe achtertuin op het zuidwesten – optimale zonligging en privacy
+ Hoekligging met mogelijkheid om bijkeuken/berging om te bouwen naar garage
+ Alles binnen handbereik – van scholen en winkels tot natuur en OV
Indeling:
Begane grond
Zodra je binnenkomt, valt de royale en lichte woonkamer op. Er is genoeg plek voor een gezellige zithoek en een grote eettafel. Aan de voorkant van het huis zit de open keuken. Deze is netjes afgewerkt en voorzien van alles wat je nodig hebt: een kookplaat, afzuigkap, combimagnetron, oven, grote koelkast (Siemens), vriezer en een vaatwasser. Alles binnen handbereik om met plezier te koken.
Aangrenzend aan de woonkamer bevindt zich de bijkeuken, ideaal voor extra opbergruimte. Vanuit hier heb je toegang tot de overkapping aan de achterzijde en de berging. Door de hoekligging is er de mogelijkheid om de bijkeuken en berging om te bouwen tot een garage.
Eerste verdieping
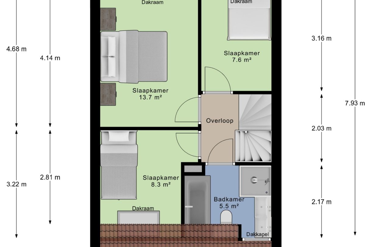
De eerste verdieping biedt drie comfortabele slaapkamers en een moderne badkamer. De badkamer is voorzien van een ligbad, een douche, een dubbele wastafel met meubel en een toilet.
Tweede verdieping
De zolder is een royale open verdieping die je op allerlei manieren kunt gebruiken: als logeerkamer, werkplek of speelruimte. Er is een ingebouwde kast en een aparte berging waar de cv-ketel (Vaillant) staat.
Buitenruimte
De achtertuin van ongeveer 60 m² is een heerlijke plek om te ontspannen. Je betreedt de tuin via de houten overkapping met ingebouwde kasten. De tuin is verzorgd aangelegd met mooie sierstenen, sierlijke houten plantenbakken en een fraaie houten schutting. Dankzij de ligging op het zuidwesten geniet je hier de hele dag van de zon. Aan de zijkant staat een houten berging voor extra opslag, en daarachter is een handig plekje om de kliko’s netjes uit het zicht te bewaren.
Locatie:
De centrale ligging in Rijkerswoerd maakt dit een ideale plek voor gezinnen, starters en ouderen. Kinderen kunnen hier veilig en vrij buiten spelen, terwijl je zelf geniet van een rustige en groene omgeving. De lichte kleuren en open opzet geven de buurt een aangename sfeer. Alle voorzieningen liggen dichtbij: het winkelcentrum, scholen, kinderopvang, openbaar vervoer en het mooie Zeegbos.
Daarnaast ben je ook snel op belangrijke uitvalswegen zoals de Pleyroute naar Arnhem Noord, de A15, A325 en A50. Zo woon je hier op een prettige locatie, met alles wat je nodig hebt binnen handbereik én goede verbindingen naar de rest van de regio.
Voorzieningen in de buurt:
+ Treinstation – 4.380 km
+ Bushalte – 310 m
+ Centrum – 4.730 km
+ Snelweg afrit – 1.41 km
+ Supermarkt – 600 m
+ Kinderopvang – 160 m
+ Basisonderwijs – 130 m
+ Voortgezet Onderwijs – 850 m
Aanvaarding:
In overleg.
Interesse? Maak een afspraak voor een bezichtiging.
Disclaimer:
De vermelde afmetingen zijn circa maten. Eventuele afwijkingen tussen de werkelijke en opgegeven circa maten/oppervlakten leiden niet tot enig recht op schadevergoeding. Er kunnen geen rechten worden ontleend aan deze informatie.
- 109 m2
- 195 m2
- 3
Kenmerken Socratesstraat 11
Overdracht
| Vraagprijs | € 415.000,- k.k. | 
|---|---|
| Aanvaarding | In overleg | 
Oppervlaktes en inhoud
| Perceel oppervlakte | 195 m2 | 
|---|---|
| Woonoppervlakte | 109 m2 | 
| Inhoud | 416 m3 | 
Bouw
| Soort | Eengezinswoning | 
|---|---|
| Bouwvorm | Bestaande bouw | 
| Bouwjaar | 1990 | 
| Dak type | Zadeldak | 
| Isolatievormen | Dakisolatie, Muurisolatie, Vloerisolatie, Gedeeltelijk dubbelglas | 
| Energielabel | C | 
Indeling
| Aantal verdiepingen | 3 | 
|---|---|
| Aantal kamers | 6 | 
| Aantal slaapkamers | 3 | 
| Aantal badkamers | 1 | 
Maandlasten
Ligging Socratesstraat 11
Voorzieningen
Centraal gelegen informatie over de buurt
Aantal inwoners
In de gemeente
155.699
Leeftijd
in percentages van totaal
Huishoudsamenstelling
in percentages van totaal
36%
20% NL
24%
20% NL
39%
20% NL
 
                             
                             
                             
                             
                             
                             
                             
                             
                             
                             
                             
                             
                             
                             
                             
                             
                             
                             
                             
                             
                             
                             
                             
                             
                             
                             
                             
                             
                             
                             
                             
                             
                             
                             
                             
                             
                             
                             
                             
                             
                             
                             
                             
                             
                             
                             
                             
                             
                             
                             
                             
                             
                             
                             
                             
                             
                             
                             
                                 
                                 
                                 
                                 
                                 
                                 
                                 
                                 
                                 
                                 
                                 
                                 
                                 
                                 
                                 
                                 
                                 
                                 
                                 
                                 
                                 
                                 
                                 
                                 
                                 
                                 
                                 
                                 
                                 
                                 
                                 
                                 
                                 
                                 
                                 
                                 
                                 
                                 
                                 
                                 
                                 
                                 
                                 
                                 
                                 
                                 
                                 
                                 
                                 
                                 
                                 
                                 
                                 
                                 
                                 
                                 
                                 
                                 
                                 
                                 
                                 
                                 
                                 
                                 
                                 
                                 
                                     
                                     
                                     
                                     
                                     
                                     
                                     
                                     
                                                             
                             
                             
                             
                             
             
             
             
             
            