€ 550.000,- k.k.
Ruime en energiezuinige gezinswoning met 5 slaapkamers in de jonge wijk Nieuwland
Ben je op zoek naar een moderne, goed onderhouden woning waar je zó in kunt trekken? Deze tussenwoning uit 1998 biedt precies dat! Met een woonoppervlakte van circa 130 m², vijf slaapkamers en energielabel A, is dit de perfecte plek voor starters of jonge gezinnen die ruimte, comfort én duurzaamheid belangrijk vinden.
De woning is volledig geïsoleerd en voorzien van 12 zonnepanelen (2020), waardoor de energiekosten prettig laag blijven. Dankzij de dakopbouw is er extra veel leefruimte ontstaan, ideaal voor een groot gezin, werken aan huis of een logeerkamer.
Indeling
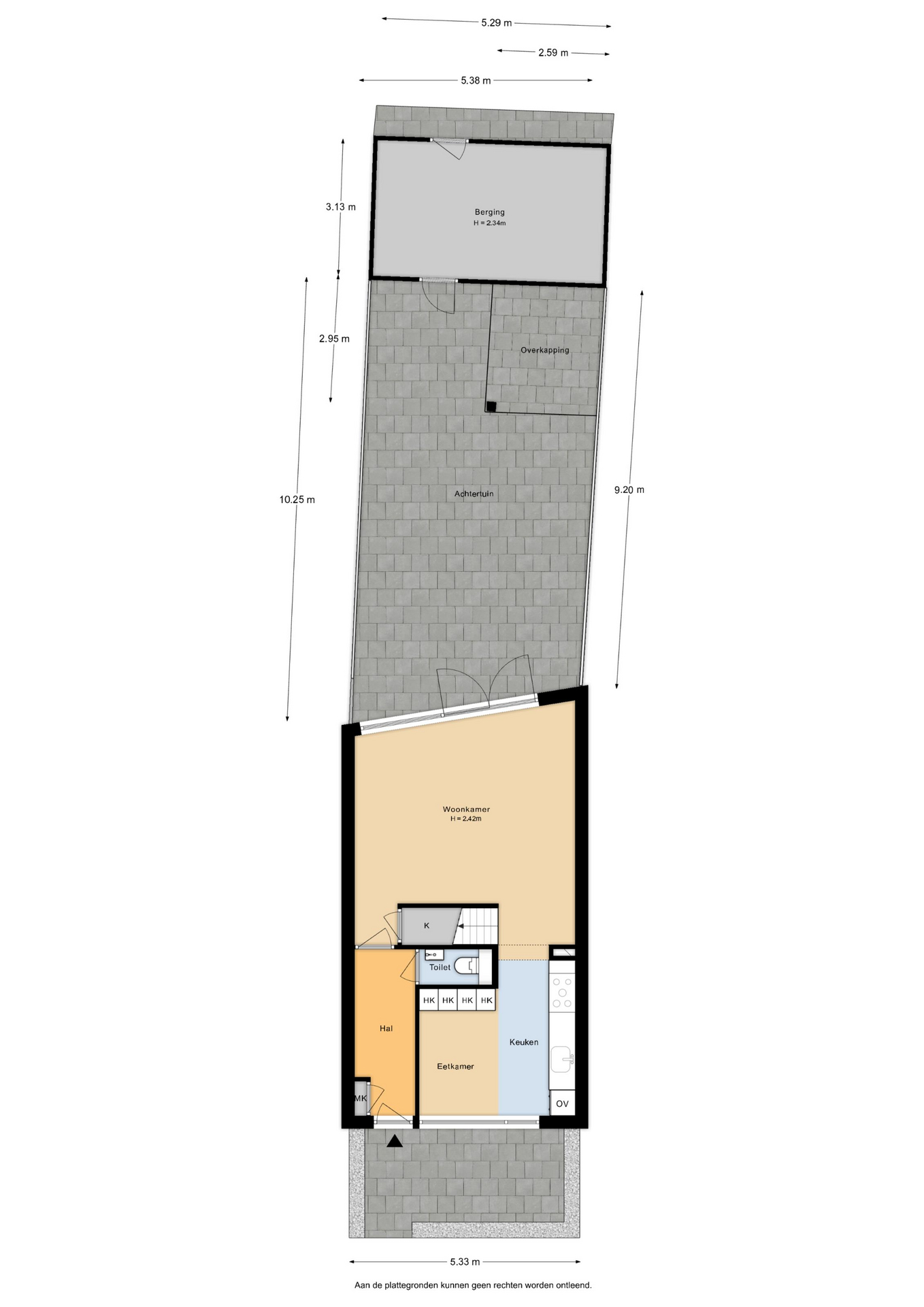
Begane grond
Je komt binnen via de entree met meterkast en een modern, zwevend toilet. De lichte, tuingerichte woonkamer valt direct op door de grote raampartijen en het vrije uitzicht op de achtertuin. Aan de voorzijde bevindt zich de gezellige woonkeuken, voorzien van diverse inbouwapparatuur en voldoende ruimte voor een grote eettafel – de perfecte plek om samen te eten en te kletsen.
Eerste verdieping
Via de overloop bereik je twee ruime slaapkamers (voorheen drie), waaronder de hoofdslaapkamer met praktische inloopkast. De badkamer is modern afgewerkt en voorzien van een inloopdouche, zwevend toilet, wastafelmeubel en een raam voor natuurlijke ventilatie en daglicht. Daarnaast is er een aparte was- en stookruimte aanwezig.
Tweede verdieping
Hier vind je nog eens drie slaapkamers, waarvan één met een dakkapel over de volledige breedte. Alle kamers zijn netjes afgewerkt en flexibel in te delen – bijvoorbeeld als kinderkamer, werkkamer of hobbyruimte. Via een vlizotrap bereik je een forse bergzolder, handig voor het opbergen van seizoensspullen.
Buitenruimte
De zonnige tuin op het zuiden is keurig aangelegd met sierbestrating en beschikt over een gezellige veranda, waar je heerlijk kunt ontspannen. Achterin de tuin staat een extra grote berging met volop ruimte voor fietsen en gereedschap.
Omgeving
De woning ligt in de jonge, kindvriendelijke wijk Nieuwland. Speelplekken, scholen en winkels zijn allemaal op loopafstand. Ook openbaar vervoer en uitvalswegen (A1/A28) zijn dichtbij, waardoor je snel onderweg bent richting Utrecht, Amsterdam of het centrum van Amersfoort.
Kortom: een ruime, duurzame en sfeervolle gezinswoning op een fijne plek.
Klaar om hier jouw nieuwe thuis van te maken? Plan dan snel een bezichtiging!
- 130 m2
- 139 m2
- 5
Kenmerken Dalkruid 34
Overdracht
| Vraagprijs | € 550.000,- k.k. |
|---|---|
| Aanvaarding | In overleg |
Oppervlaktes en inhoud
| Perceel oppervlakte | 139 m2 |
|---|---|
| Woonoppervlakte | 130 m2 |
| Inhoud | 430 m3 |
Bouw
| Soort | Eengezinswoning |
|---|---|
| Bouwvorm | Bestaande bouw |
| Bouwjaar | 1998 |
| Dak type | Lessenaardak |
| Isolatievormen | Dakisolatie, Muurisolatie, Vloerisolatie, Dubbelglas, Volledig geïsoleerd |
| Energielabel | A |
Indeling
| Aantal verdiepingen | 4 |
|---|---|
| Aantal kamers | 6 |
| Aantal slaapkamers | 5 |
| Aantal badkamers | 1 |
Maandlasten
Ligging Dalkruid 34
Voorzieningen
- P.C. basisschool De Wonderboom 409 m Waterkers 1 AMERSFOORT
- Universiteit Utrecht 19 km Heidelberglaan 8 UTRECHT
- MBO Amersfoort School voor Veiligheid / School voor Economie en Ondernemen 2 km Valutaboulevard 20 AMERSFOORT
- Marnix Academie 20 km Vogelsanglaan 1 UTRECHT
- Universiteit Utrecht 19 km Heidelberglaan 8 UTRECHT
Centraal gelegen informatie over de buurt
Aantal inwoners
In de gemeente
154.337
Leeftijd
in percentages van totaal
Huishoudsamenstelling
in percentages van totaal
18%
20% NL
21%
20% NL
61%
20% NL