€ 1.195.000,- k.k.
Royale vrijstaande villa van maar liefst 343 m2 in landelijke omgeving aan vaarwater met eigen ligplaats en volop gebruiksmogelijkheden!
Deze vrijstaande woning is in 2003 gebouwd als woon-werkvilla en heeft maar liefst 3 entrees! Door de verschillende entrees, waarbij de ruimtes wel binnendoor te bereiken zijn is de woning ideaal voor wonen en werken aan huis, maar ook uitstekend geschikt voor dubbele bewoning. Denkt u aan kinderen die in deze moeilijke woningmarkt nu toch lang, maar wel zelfstandig thuis kunnen blijven wonen of als kangoeroewoning voor ouders die (op termijn) zorg nodig hebben. In deze villa is van alles mogelijk! Daarnaast heeft de woning ruim voldoende parkeergelegenheid op eigen terrein en een eigen ligplaats!
Deze villa ligt prachtig aan doorgaand vaarwater, waar zowel beroepsvaart als pleziervaart voorbijkomt. Met een ligplaats grenzend aan de tuin kunt u met een eigen boot prachtige routes maken naar bijvoorbeeld Leiden of richting de verschillende plassen als de Kaag en het Braassemermeer. Naast het water heeft u hier aan de achterzijde ook schitterend uitzicht op boerderijen en polderlandschap met zicht op een aantal molens van de Molenviergang van Aarlanderveen. Het nog enig werkende molengang in de wereld! Ook aan de voorzijde kijkt u bij deze woning uit op landerijen.
Naast de landelijke omgeving ligt de woning ook nog eens heel centraal. Binnen 10 minuten met de auto en ongeveer 15 minuten met de fiets sta je in het centrum van Alphen met volop horeca, culturele voorzieningen en winkelaanbod. Ook basisscholen en sportverenigingen zijn in die tijd uitstekend te bereiken en kinderopvang bevindt zich zelfs op steenworp afstand. Er is een bushalte op nog geen 150 meter en bovendien rijdt u hier zo op de N207 en de N11. Hierdoor zijn steden als Amsterdam, Rotterdam, Den Haag en Utrecht uitstekend te bereiken!
De mogelijkheden voor deze woning moet u zeker van binnen bekijken, maar vooruitlopend op de bezichtiging volgt hier alvast een beschrijving van de indeling.
Begane grond:
Aan de voorzijde van de woning is er een strook met een eigen parkeerplaats en een omheinde voortuin met zonnescherm. Verder is de entree van de woning afgesloten met een elektronisch hek, waar op het terrein nog ruimte is voor ca. 3 auto’s. De begane grond heeft een overdekte entree. Vanuit hier komt u in een hal met meterkast, trapkast en een afsluitbare trap naar de verdieping. Vanuit deze gang kunt u zowel naar de voor- als achterzijde van de woning. Aan de voorzijde komt u eerst in de voormalige garage waar de pui is vervangen voor een fraaie glazen pui. Deze ruimte is nu in gebruik voor opslag en als wasruimte. Via deze ruimte komt u in een zeer royale slaapkamer met veel daglicht (voormalig kantoor) en een kitchenette. Elektrische rolluiken kunnen de zon buiten houden als dat nodig is. Daarnaast is vanuit deze ruimte een 2e hal met entree te bereiken. In deze hal is er een toiletruimte met wandcloset en fontein. Hierdoor is de ruimte aan de voorzijde eventueel apart te gebruiken van de achterzijde. Via de wasruimte is er toegang tot een slaapkamer met deur naar de zijtuin met overkapping. 
Aan de achterzijde zijn nog 2 slaapkamers die via een gang toegang hebben tot een badkamer en een toiletruimte. De eerste slaapkamer heeft een grote vaste kast. De tweede slaapkamer is een royale en lichte, L-vormige slaapkamer met openslaande deuren naar de tuin. Deze slaapkamer is zeer geschikt als studio. Het toilet is separaat van de badkamer en bestaat uit een wandcloset met fontein. De badkamer bestaat uit een douche met wastafel.
De royale tuin is grotendeels bestraat afgewisseld met enkele borders. In de tuin kun je heerlijk privé genieten van het vaarwater en het achtergelegen polderlandschap. Onder het balkon van de 1e verdieping kun je altijd beschut en droog zitten. Daarnaast is er nog een fraaie glazen overkapping voorzien van elektriciteit die geheel kan worden afgesloten, maar ook aan drie zijden kan worden open gezet. Zo kun je hier heerlijk van het winterzonnetje genieten, maar is het ook in de zomermaanden nog prima vertoeven. Vanuit de tuin kun je naar de eigen aanlegsteiger met ligplaats.
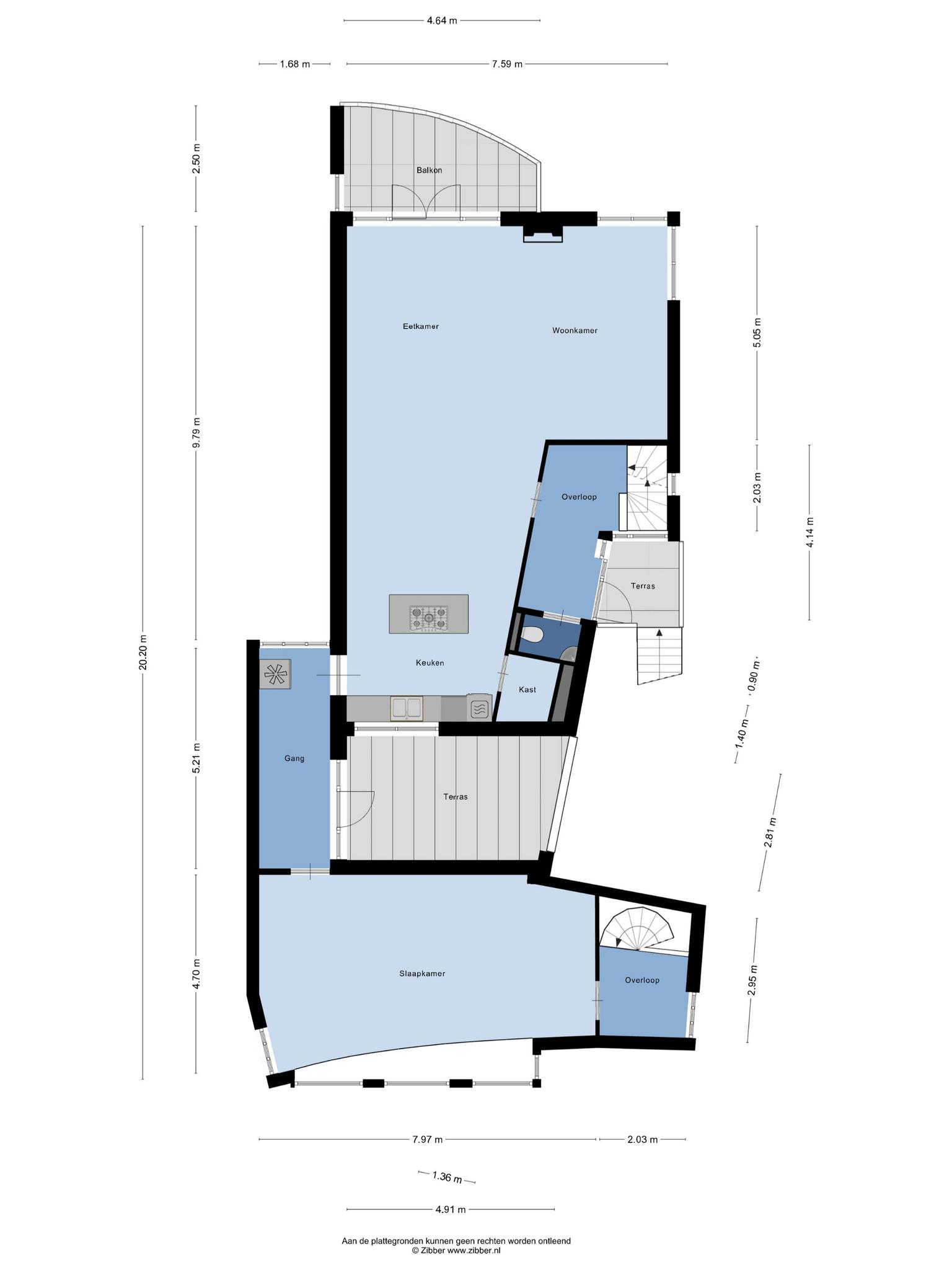
Eerste verdieping:
De eerste verdieping is zowel vanaf de trappen op de begane grond als via de eigen entree te bereiken. De overdekte entree is buitenom via een stalen trap te bereiken. Via een overloop met toiletruimte voorzien van een wandcloset met fontein en de trap naar de verdieping komt u in de royale woon-eetkamer. Hier heeft u alle ruimte voor uw meubels en om meerdere zithoeken te creëren. Door het zijraam komt er extra licht naar binnen en het lage raam in de woonkamer biedt prachtig zicht op het water en het achtergelegen landschap. Via openslaande deuren is er toegang tot een ruim balkon met zonnescherm, waar u in de ochtend heerlijk in de zon van uw kop koffie kunt genieten. Vanaf het balkon is er een stalen trap naar de tuin.
De keuken bestaat uit een kookeiland met veel kastruimte en een recht blok met ingebouwde oven, combi-magnetron, koel-/vriescombinatie en vaatwasser. De fronten zijn lichtblauw uitgevoerd en er is een donker natuurstenen werkblad. Aansluitend is er een ruime bergkast wat ideaal is voor de proviand! Vanuit de keuken komt u in een gang die nu min of meer gebruikt wordt als bijkeuken. Deze gang biedt toegang tot een 2e overdekt terras waar de gehele dag zon aanwezig is. Hier verblijft u in alle privacy en beschut toch heerlijk in de buitenlucht! Aan de voorzijde is er een royale slaap-/werkkamer met een grote vensterbank wat ook als zitbank kan worden gebruikt om van het uitzicht te genieten. Vanuit de slaapkamer is er toegang tot een overloop met trap naar de begane grond.
Tweede verdieping:
Via een vaste trap komt u op de overloop met een toiletruimte en toegang tot een berging onder de schuine kap met opstelplaats c.v.-ketel (2022) en de elektrische boiler.
Aan de achterzijde is er een royale slaapkamer met lage ramen die uitzicht bieden op het water en het polderlandschap. Op de vloer ligt een warme, donkere pvc-vloer en aansluitend aan de slaapkamer grenst er een walk-in-closet. Daarnaast biedt de slaapkamer toegang tot een loggia en een badkamer. De loggia is een ideale ruimte om rustig met een kop koffie de dag op te starten, maar kan ook gebruikt worden als werkruimte. Via een glazen pui met deur is er toegang tot de badkamer met twee wastafels, ligbad, inloopdouche en designradiator. Door de glazen pui is er volop daglicht in de badkamer en kunt u zelfs in de badkamer genieten van het prachtige uitzicht! 
Bijzonderheden:
– Royale vrijstaande villa (343 m2)
– Diverse mogelijkheden voor dubbele bewoning en kantoor-/praktijk aan huis.
– Gelegen aan vaarwater met eigen ligplaats.
– Zicht op polderlandschap en boerderijen.
– Maar liefst 6 slaapkamers, 2 badkamers en 4 toiletten.
– Ruime parkeergelegenheid op eigen terrein.
– Eigen terrein afgesloten met elektrisch bedienbaar hekwerk.
– Royale tuin en balkon aan water en 2e beschut terras.
– C.v.-ketel uit 2022
– Energielabel B
– Beveiligingscamera’s in voor en achtertuin.
Interesse in deze woning? Schakel direct uw eigen NVM-aankoopmakelaar in. Uw NVM-aankoopmakelaar komt op voor uw belang en bespaart u tijd, geld en zorgen.
Adressen van collega NVM-aankoopmakelaars in de regio Alphen aan den Rijn en omgeving vindt u op Funda.
Deze informatie is met zorgvuldigheid samengesteld. Alle opgegeven maten en oppervlakten zijn indicatief. Mochten er onverhoopt onjuistheden staan vermeld dan wordt onzerzijds echter geen enkele aansprakelijkheid aanvaard voor onvolledigheid, onjuistheid of anderszins, dan wel de gevolgen daarvan.
- 343 m2
- 595 m2
- 6
Kenmerken Steekterweg 80G
Overdracht
| Vraagprijs | € 1.195.000,- k.k. | 
|---|---|
| Aanvaarding | In overleg | 
Oppervlaktes en inhoud
| Perceel oppervlakte | 595 m2 | 
|---|---|
| Woonoppervlakte | 343 m2 | 
| Inhoud | 1.273 m3 | 
Bouw
| Soort | Villa | 
|---|---|
| Bouwvorm | Bestaande bouw | 
| Bouwjaar | 2003 | 
| Isolatievormen | Volledig geïsoleerd | 
| Energielabel | B | 
Indeling
| Aantal verdiepingen | 3 | 
|---|---|
| Aantal kamers | 7 | 
| Aantal slaapkamers | 6 | 
| Aantal badkamers | 2 | 
Maandlasten
Ligging Steekterweg 80G
Voorzieningen
Centraal gelegen informatie over de buurt
Aantal inwoners
In de gemeente
108.915
Leeftijd
in percentages van totaal
Huishoudsamenstelling
in percentages van totaal
29%
20% NL
37%
20% NL
35%
20% NL
 
                             
                             
                             
                             
                             
                             
                             
                             
                             
                             
                             
                             
                             
                             
                             
                             
                             
                             
                             
                             
                             
                             
                             
                             
                             
                             
                             
                             
                             
                             
                             
                             
                             
                             
                             
                             
                             
                             
                             
                             
                             
                             
                             
                             
                             
                             
                             
                             
                             
                             
                             
                             
                             
                             
                             
                             
                             
                             
                             
                             
                             
                                 
                                 
                                 
                                 
                                 
                                 
                                 
                                 
                                 
                                 
                                 
                                 
                                 
                                 
                                 
                                 
                                 
                                 
                                 
                                 
                                 
                                 
                                 
                                 
                                 
                                 
                                 
                                 
                                 
                                 
                                 
                                 
                                 
                                 
                                 
                                 
                                 
                                 
                                 
                                 
                                 
                                 
                                 
                                 
                                 
                                 
                                 
                                 
                                 
                                 
                                 
                                 
                                 
                                 
                                 
                                 
                                 
                                 
                                 
                                 
                                 
                                 
                                 
                                 
                                 
                                 
                                 
                                     
                                     
                                     
                                     
                                     
                                     
                                                             
                             
                             
                             
                             
             
             
             
             
            