€ 315.000,- k.k.
Verzorgd maisonnette hoekappartement op de 10e en 11e verdieping met liefst 3 balkons!
Deze ruime maisonettewoning op de 10e en 11e verdieping is voorzien van twee ruime slaapkamers, een open keuken met bar en een badkamer en toiletruimte uit 2020. Vanwege de ligging op de 10e en 11e verdieping heeft u een prachtig uitzicht en bieden de drie balkons u volop zon.
Het complex aan het Aidaplein is erg centraal gelegen. Behalve het op loopafstand te vinden recreatiegebied Zegersloot is de woning tegenover het vernieuwde Winkelcentrum ‘De Ridderhof’ te vinden. Daarnaast vindt u nabij het complex openbaar vervoer voorzieningen en diverse uitvalswegen richting de grote steden van het land.
Graag geven wij u vooruitlopend op uw vrijblijvende bezichtiging een idee van de indeling en afwerking.
Begane grond
Voor het complex bevindt zich voldoende parkeergelegenheid. De centrale entree met brievenbussen en beltableau is uitgevoerd met een elektrische schuifdeur en video-installatie.
Vanuit de centrale hal heeft u toegang tot de bergingsgangen, het trappenhuis en de twee liften. De berging, behorende bij deze woning, heeft een mooi formaat van circa 8 vierkante meter.
11e verdieping
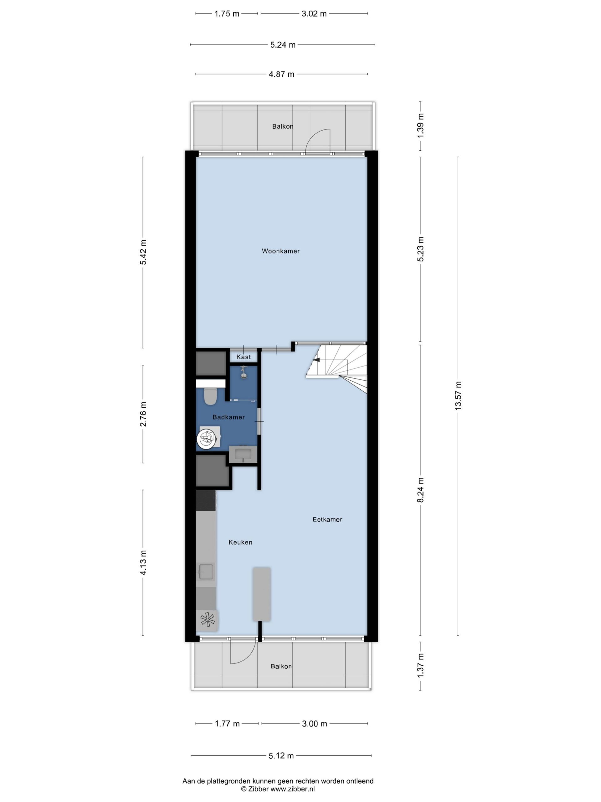
Op de 11e verdieping vindt u de entree van de woning met daarnaast de moderne meterkast. Deze verdieping geeft toegang tot een prima toiletruimte met fonteintje en twee ruime slaapkamers. De grootste slaapkamer betreft de ouderslaapkamer en geeft toegang tot het eerste balkon welke is gelegen op het oosten. Vanaf het balkon heeft u een prachtig uitzicht over Alphen aan den Rijn. Beide slaapkamers zijn voorzien van een keurige laminaatvloer en net afgewerkte wanden.  
10e verdieping
Via de trap naar beneden komt u binnen in het woongedeelte welke is voorzien van dezelfde laminaatvloer. De huidige bewoners hebben in 2020 de wand tussen de keuken en slaapkamer opengebroken waardoor er een fijne lichte open ruimte is ontstaan met open keuken. Hierdoor is er ruimte voor een apart eetgedeelte en is er zelfs een bar gerealiseerd welke de keuken met het eetgedeelte verbindt. 
De met zwarte tegels betegelde keuken is opgesteld in een rechte opstelling met bovenkasten en is voorzien van een kunststof werkblad met spoelbak. In de keuken bevindt zich een fornuis (4-pits inductie) met afzuigkap en koelkast. De deur geeft u toegang tot het balkon welke is gelegen op het westen. Vanaf de middag tot laat in de avond kunt u hier heerlijk genieten van de zon en de prachtige zonsondergang.
De woonkamer is aan de andere zijde van de woning gelegen en wederom mooi licht door de grote raampartij. Vanaf hier kunt u een balkon op het oosten betreden.
De badkamer is door de huidige bewoners in 2020 vernieuwd en is inpandig gelegen. De badkamer is uitgevoerd met een keurige wastafel in meubel, ruime douchehoek, een 2e vrijhangend toilet en de opstelplaats van de wasmachine. Boven de wasmachine bevindt zich daarbij de elektrische boiler (Itho Daalderop, 2021).
Bijzonderheden:
–	Ruim maisonnette appartement op de 10e en 11e verdieping
–	Weids uitzicht vanaf alle drie de balkons!
–	Keuken, badkamer en toiletruimte vernieuwd in 2020
–	Inpandige fietsenberging van circa 8m2 gelegen op de begane grond
–	Gedeeltelijk voorzien van dubbelglas
–	De woning heeft geen gasmeter
Bij de aankoop van een appartement wordt men van rechtswege lid van de Vereniging van Eigenaren. De servicekosten voor dit appartement bedragen € 215, per maand (2025). De stukken van de VVE liggen op ons kantoor ter inzage. Daarnaast betaalt u een voorschot t.b.v. de centrale verwarming van circa € 223,- per maand.
Interesse in deze woning? Schakel direct uw eigen NVM-aankoopmakelaar in. Uw NVM-aankoopmakelaar komt op voor uw belang en bespaart u tijd, geld en zorgen.
Adressen van collega NVM-aankoopmakelaars in de regio Alphen aan den Rijn en omgeving vindt u op Funda.
Deze informatie is met zorgvuldigheid samengesteld. Alle opgegeven maten en oppervlakten zijn indicatief. Mochten er onverhoopt onjuistheden staan vermeld dan wordt onzerzijds echter geen enkele aansprakelijkheid aanvaard voor onvolledigheid, onjuistheid of anderszins, dan wel de gevolgen daarvan.
- 92 m2
- 2
Kenmerken Aïdaplein 261
Overdracht
| Vraagprijs | € 315.000,- k.k. | 
|---|---|
| Aanvaarding | In overleg | 
Oppervlaktes en inhoud
| Woonoppervlakte | 92 m2 | 
|---|---|
| Inhoud | 309 m3 | 
Bouw
| Soort | Maisonnette | 
|---|---|
| Bouwvorm | Bestaande bouw | 
| Bouwjaar | 1974 | 
| Dak type | Plat dak | 
| Isolatievormen | Gedeeltelijk dubbelglas | 
| Energielabel | G | 
Indeling
| Aantal verdiepingen | 2 | 
|---|---|
| Aantal kamers | 3 | 
| Aantal slaapkamers | 2 | 
| Aantal badkamers | 1 | 
Maandlasten
Ligging Aïdaplein 261
Voorzieningen
Centraal gelegen informatie over de buurt
Aantal inwoners
In de gemeente
108.915
Leeftijd
in percentages van totaal
Huishoudsamenstelling
in percentages van totaal
38%
20% NL
36%
20% NL
26%
20% NL
 
                             
                             
                             
                             
                             
                             
                             
                             
                             
                             
                             
                             
                             
                             
                             
                             
                             
                             
                             
                             
                             
                             
                             
                             
                             
                             
                             
                             
                             
                             
                             
                             
                             
                             
                                 
                                 
                                 
                                 
                                 
                                 
                                 
                                 
                                 
                                 
                                 
                                 
                                 
                                 
                                 
                                 
                                 
                                 
                                 
                                 
                                 
                                 
                                 
                                 
                                 
                                 
                                 
                                 
                                 
                                 
                                 
                                 
                                 
                                 
                                 
                                 
                                 
                                     
                                     
                                     
                                                             
                             
                             
                             
                             
             
             
             
             
            