€ 1.050.000,- k.k.
Aan de prachtige Bredevoortsestraatweg, op een heuveltje, staat deze monumentale STATIGE VRIJSTAANDE VILLA met koetshuis en overdekt terras uit 1859. Het is ooit gebouwd als kantongerecht met woning, en is daarna gebruikt als kostschool van de dames Hagen. Later werd de villa bewoond door de gemeentesecretaris Bernard Hendrik Vaags. Bijzonder is dat er tijdens de Tweede Wereldoorlog onderduikers in het huis zijn ondergebracht, in een kleine ruimte op de eerste verdieping. De levensloop gaat verder, als notariskantoor van Krijgers Janzen en als locatie van de Volle Evangelie Gemeente ‘Heil en Lof’. Hierna werd de villa particulier bewoond, en nadat de huidige eigenaar de villa kocht is hij gestart met een grootschalige verbouwing.
De villa met aangebouwd koetshuis wordt omringd door een prachtige tuin met monumentale hoge bomen en royale parkeergelegenheid op eigen terrein. Boven zijn vijf slaapkamers en er zijn in totaal drie badkamers, twee toiletruimtes en een kantoor-/praktijkruimte op de begane grond. Hoge plafonds, grote ramen, Louvre luiken, sierlijke dakkapellen, marmeren vloeren en fraaie binnendeuren bepalen de sfeer.
Verbouwing:
In de afgelopen jaren is de villa, waar nodig, constructief en grondig verbouwd inclusief een renovatie van de hoofdbadkamer en de twee andere badkamers. Het dak, inclusief zink- en loodwerk van de dakkapellen, en het bitumen platte dak is gerenoveerd. Het buitenschilderwerk, waar nodig, is in 2024/2025 uitgevoerd door een schildersbedrijf. Er zijn nog enkele werkzaamheden die uitgevoerd moeten worden. De drie badkamers en twee toiletruimtes dienen nog afgewerkt te worden, en in het koetshuis kan de realisatie van een bijkeuken worden afgerond.
Locatie:
De ligging is uitstekend, op loopafstand van het centrum met winkels, speciaalzaken, diverse restaurants, een supermarkt en andere voorzieningen. Scholen en sportvoorzieningen zijn op fietsafstand, net als het treinstation. Aalten is een geliefde plek om te wonen, vanwege de goede voorzieningen en het prachtige omliggende landschap.
Indeling:
Begane grond:
Via de oprijlaan rijdt u, omringd door prachtige waardevolle (monumentale) bomen, richting de entree van deze markante villa. De entree, met een imposante voordeur, nodigt uit voor een nadere kennismaking. Naast de deur hangt niet alleen het huisnummer, maar ook het monumentenschildje.
De hal is een prachtige ontvangstruimte met een marmeren vloer, paneeldeuren en een hoog plafond. Links in de hal, naast de meterkast, is de garderobe en aan het einde is de trap naar de eerste verdieping. Naast de trap is een gang, met de toiletruimte en een trap naar de wijn-/provisiekelder.
Dubbele deuren met glas verbinden de hal met de eetkamer en de aansluitende woonkamer, welke recent is voorzien van een aansluiting (nieuw rookkanaal) voor een houtkachel. Hoge plafonds, grote ramen en een schuifpui zorgen voor lichte leefruimtes die optimaal met de tuin verbonden zijn. In de eetkamer ligt een visgraatvloer met zwarte bies, en achter de klassieke schuifdeuren is de woonkamer met een marmeren vloer. De visgraatvloer is recent geschuurd en geolied.
De eerder genoemde marmeren vloer ligt ook in de keuken, die via openslaande deuren toegang tot het overdekte terras geeft. De moderne keukenopstelling, met een L-vorm en een hoge kastenwand, is voorzien van alle benodigde inbouwapparatuur: een inductie kookplaat, afzuigkap, kokend waterkraan, vaatwasser, combi-oven, stoomoven, koffiemachine, koelkast, wijnkast, diepvriezer, plintverlichting en plintverwarming.
Aan de voorzijde is een fraaie kamer, met hoge ramen aan twee kanten en mooi uitzicht naar de tuin. De aansluitingen voor het realiseren van een nieuwe badkamer zijn, in de voormalige kluis van het voorgenoemde notariskantoor, reeds aanwezig. Zo kan de kamer worden gebruikt als kantoor, praktijk of slaap-/logeerkamer.
In het achterste deel van de villa, het koetshuis, is een grote garage/berging met schuifdeuren richting de oprit en een deur naar het overdekte terras in de tuin. Hier zijn de aansluitingen voor een tweede keuken of een bijkeuken met witgoed, en er is toegang tot een dubbele berging. Een van deze bergingen is ook bereikbaar vanuit de tuin.
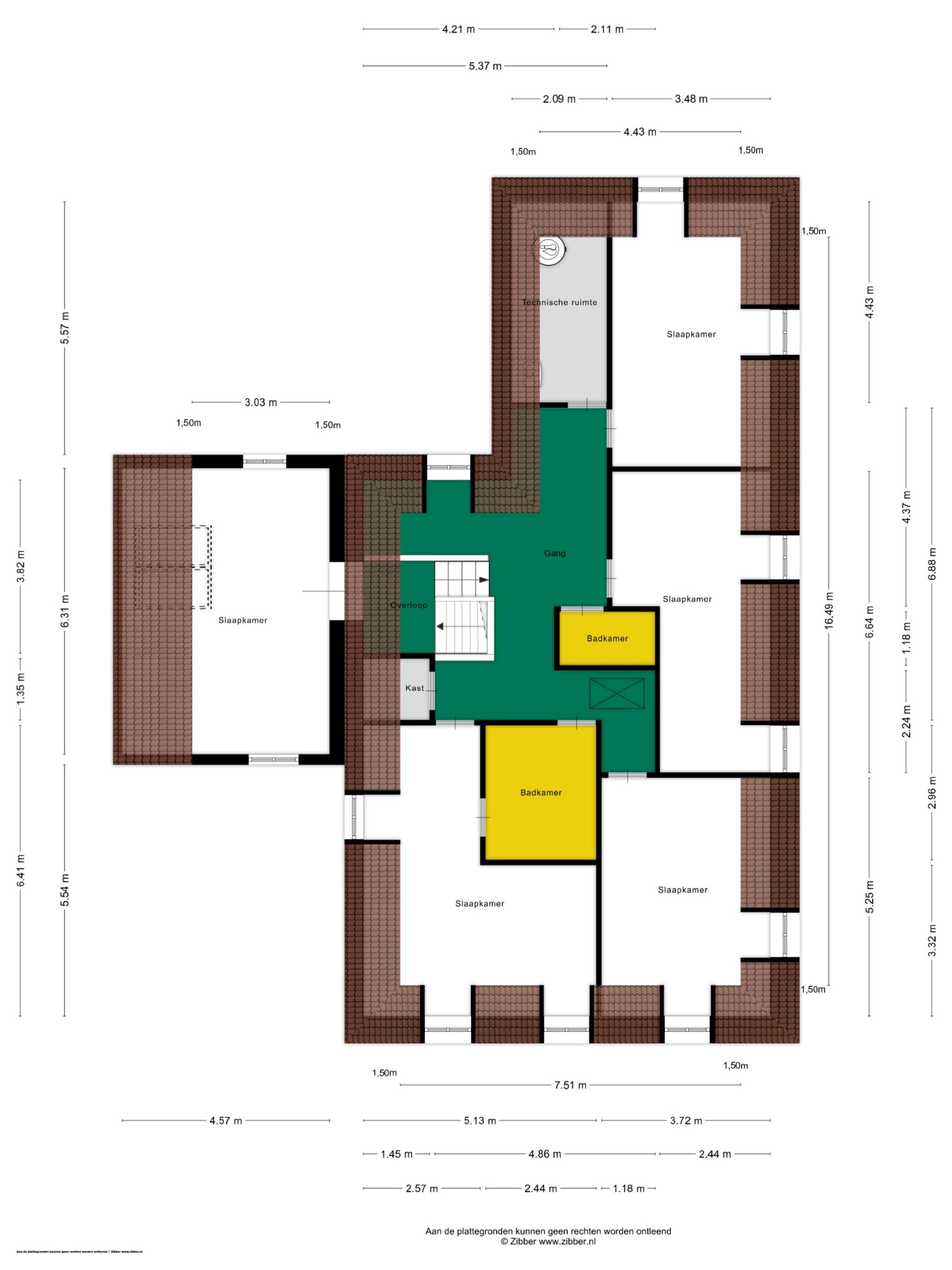
Eerste verdieping:
De eerste verdieping is bereikbaar via een bordestrap en is verdeeld over twee niveaus, met in totaal vijf slaapkamers elk met kraalschroten en gebinten in het zicht. De slaapkamers in het voorste deel van de villa hebben elk twee dakkapellen, en de kamer in het achterste deel (koetshuis) heeft lichtinval vanaf drie kanten.
Verder zijn er een technische ruimte, twee casco badkamers, een casco toilet en een royale overloop met bergkast. Hier kunt u de verbouwing naar eigen wens afronden, waarbij het mogelijk is om reeds aanwezige materialen over te nemen. 
Zolder:
In 2025 is er een vlizotrap geplaatst, om de zolder te bereiken. De vloer van de zolder is in 2025 voorzien van een houten (platen) vloer en er is verlichting gerealiseerd.
Exterieur:
De villa wordt omringd door een royale tuin met een overdekt terras, meerdere zonneterrassen en veel groen. Onder het royale overdekte terras van circa 30 m² kan heerlijk buiten worden gezeten. Het terras is voorzien van een buitenhaard, plafond heaters en spotjes. Het gazon, de hagen, hoge monumentale bomen en overige beplanting vormen een fraai geheel. U ziet onder andere zomereiken, een notenboom en een beeldbepalende beuk, die in de herfst prachtige kleurschakeringen vertonen en waar de eekhoorns zich naar hartenlust kunnen vermaken. En gaat u de tuin naar eigen wens aanpassen? De tuin bevat een aantal monumentale eikenbomen. Voor het onderhoud van deze bomen is er subsidie vanuit de gemeente. 
Bijzonderheden:
– Verwarming via een HR-ketel (ATAG, 2013), warm water via een zonneboiler,  vloerverwarming (hal en woonkamer);
– Buitengevels zijn in augustus 2025 professioneel gereinigd (softwash, methode met osmose water);
– Dakrenovatie in 2022/2023 (hoekkeper, nokvorsten, zink- en loodwerk inclusief dakkapellen en hemelwaterafvoer);
– Platte dakbedekking, inclusief isolatie, is in 2022/2023 vernieuwd;
– Buitenschilderwerk waar nodig uitgevoerd in 2024/2025;
– Markiezen in 2024 voorzien van loodafdekking teneinde inwatering te voorkomen;
– Vijf slaapkamers en twee casco badkamers op de eerste verdieping;
– Slaapkamer en badkamer op de begane grond;
– Mogelijkheid voor een kantoor/praktijk aan huis;
– Parkeergelegenheid op eigen terrein, met EV laadpaal;
– Zomereiken en Beuk zijn opgenomen in het Landelijk Register van Monumentale Bomen waarvoor interessante subsidiemogelijkheden bestaan;
– Gemeentelijk monument;
– Energielabel, monumenten zijn vrijgesteld van een verplicht energielabel.
- 323 m2
- 2.010 m2
- 6
Kenmerken Bredevoortsestraatweg 67
Overdracht
| Koopprijs | € 1.050.000,- k.k. | 
|---|---|
| Aanvaarding | In overleg | 
Oppervlaktes en inhoud
| Perceel oppervlakte | 2.010 m2 | 
|---|---|
| Woonoppervlakte | 323 m2 | 
| Inhoud | 1.302 m3 | 
Bouw
| Soort | Villa | 
|---|---|
| Bouwvorm | Bestaande bouw | 
| Bouwjaar | 1859 | 
| Dak type | Samengesteld dak | 
| Isolatievormen | Dakisolatie, Muurisolatie, Vloerisolatie, Gedeeltelijk dubbelglas | 
Indeling
| Aantal verdiepingen | 4 | 
|---|---|
| Aantal kamers | 8 | 
| Aantal slaapkamers | 6 | 
| Aantal badkamers | 3 | 
Maandlasten
Ligging Bredevoortsestraatweg 67
Voorzieningen
Centraal gelegen informatie over de buurt
Aantal inwoners
In de gemeente
27.047
Leeftijd
in percentages van totaal
Huishoudsamenstelling
in percentages van totaal
35%
20% NL
34%
20% NL
31%
20% NL
 
                             
                             
                             
                             
                             
                             
                             
                             
                             
                             
                             
                             
                             
                             
                             
                             
                             
                             
                             
                             
                             
                             
                             
                             
                             
                             
                             
                             
                             
                             
                             
                             
                             
                             
                             
                             
                             
                             
                             
                             
                             
                             
                             
                             
                             
                             
                             
                             
                             
                             
                             
                             
                             
                             
                             
                             
                             
                             
                             
                             
                             
                             
                             
                             
                             
                             
                             
                             
                             
                             
                             
                             
                             
                             
                             
                             
                             
                             
                             
                             
                             
                             
                             
                             
                             
                             
                                 
                                 
                                 
                                 
                                 
                                 
                                 
                                 
                                 
                                 
                                 
                                 
                                 
                                 
                                 
                                 
                                 
                                 
                                 
                                 
                                 
                                 
                                 
                                 
                                 
                                 
                                 
                                 
                                 
                                 
                                 
                                 
                                 
                                 
                                 
                                 
                                 
                                 
                                 
                                 
                                 
                                 
                                 
                                 
                                 
                                 
                                 
                                 
                                 
                                 
                                 
                                 
                                 
                                 
                                 
                                 
                                 
                                 
                                 
                                 
                                 
                                 
                                 
                                 
                                 
                                 
                                 
                                 
                                 
                                 
                                 
                                 
                                 
                                 
                                 
                                 
                                 
                                 
                                 
                                 
                                 
                                 
                                 
                                 
                                 
                                 
                                 
                                 
                                 
                                 
                                 
                                 
                                 
                                 
                                 
                                     
                                     
                                     
                                     
                                     
                                     
                                     
                                     
                                     
                                                             
                             
                             
                             
                             
             
             
             
             
            