€ 250.000,- Vrij op naam
- Home>
- Nieuwbouw>
- Koop Terborg Appartementencomplex De Beyenkorf>
- Maisonette 4Piano
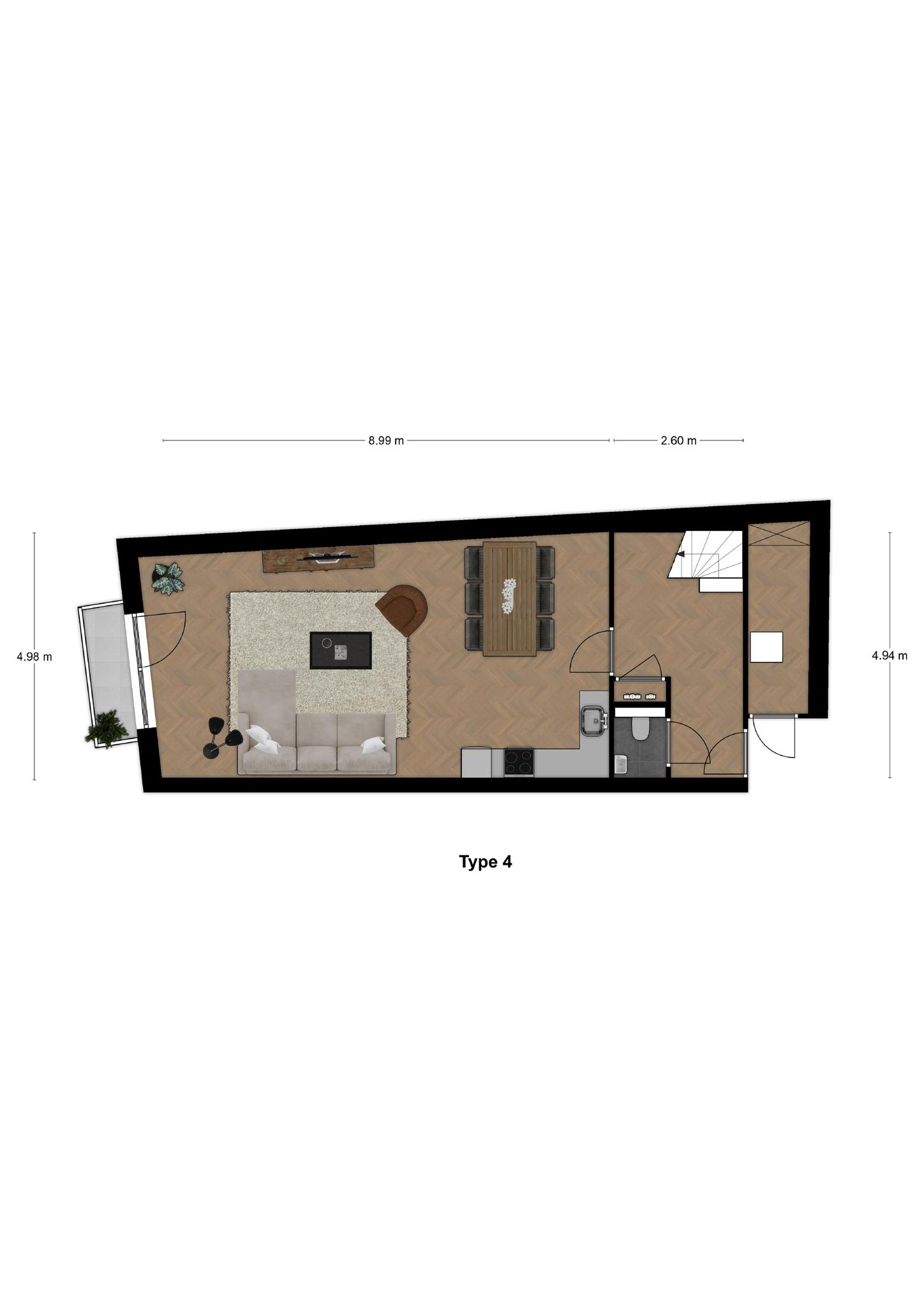
Bouwnummer 4 (piano):
De maisonnettes zijn te bereiken via een buitentrap en een ruime, gezamenlijke hal. Deze maisonnette van ca. 121.7 m2 bevindt zich aan de achterzijde van het gebouw, met het balkon aan de kant van de Hamelstraat. Vanuit de ruime hal van de maisonnette zijn de woonkamer met open keuken en de toiletruimte te bereiken.
In de bijna 9 meter lange woonkamer met open keuken is ruimte voor een hoekopstelling, een ruime zithoek en een grote eettafel. Vanuit de woonkamer is het balkon op het westen te bereiken. De tweede verdieping wordt als een open ruimte opgeleverd met aansluitingen en ruimte voor de badkamer en slaapkamer(s). De badkamer is ingetekend met een douche, wastafel, wandcloset en de wasmachineaansluiting.
De tweede verdieping wordt als een open ruimte opgeleverd met aansluitingen en ruimte voor de badkamer en slaapkamer(s). De badkamer is ingetekend met een douche, wastafel, wandcloset en de wasmachineaansluiting.
De getoonde plattegronden betreffen een inrichtingsvoorstel.
Interesse? Tijdens een afspraak met de makelaar worden de gebruikte materialen, de opties en de planning besproken.
Neem hiervoor contact op met Eggink Maalderink Garantiemakelaars.
- 121 m2
- 2
Overdracht
| Status | Verkocht |
|---|---|
| Prijs | € 250.000,- Vrij op naam |
Oppervlaktes en inhoud
| Gebruiksoppervlakte | 121 m2 |
|---|---|
| Inhoud | 435 m3 |
Bouw
| Soort | Maisonnette |
|---|---|
| Dak type | Samengesteld dak |
| Isolatievormen | Volledig geïsoleerd |
Indeling
| Aantal verdiepingen | 2 |
|---|---|
| Aantal kamers | 3 |
| Aantal slaapkamers | 2 |
Maandlasten
Ligging
Marktcijfers van Oude Ijsselstreek
Gemiddelde verkoopprijs in Oude Ijsselstreek
Landelijk gemiddelde: € 318.796,-
Gemiddelde vraagprijs in Oude Ijsselstreek
Landelijk gemiddelde: € 336.310,-
Gemiddelde verkooptijd in Oude Ijsselstreek
Landelijk gemiddelde: 22
Gemiddeld aangeboden in Oude Ijsselstreek
Landelijk gemiddelde: 4081
Gemiddeld aantal verkocht in Oude Ijsselstreek
Landelijk gemiddelde: 8726
Gemiddelde prijs/m2 in Oude Ijsselstreek
Landelijk gemiddelde: 2.770