Ga naar inhoud

Slingerbos | Vrijstaand | Zomereik 1.3.2 56

6851 VP Huissen

Beschikbaar

€ 731.000,- Vrij op naam

  1. Home>
  2. Nieuwbouw>
  3. >
  4. Slingerbos | Vrijstaand | Zomereik 1.3.2 56

Ruim opgezet, een speelse uitstraling en vol variatie, dat is Slingerbos! Deze nieuwbouwwijk kan gezien worden als één groot landschapspark met een subtiel meanderende laan waaraan 13 vrijstaande villa’s, 30 twee-onder-een kapwoningen, 9 drie-onder-een kapwoningen én 8 vier-onder-een kapwoningen gelegen zijn.

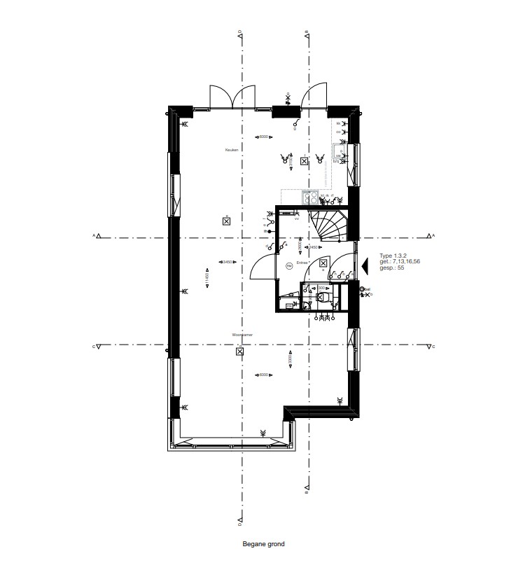
Woningtype 1.3.2 is een vrijstaande villa van 168 m² en kenmerkt zich door een erker aan de zijkant van de woning en een alzijdige dwarskap aan de voorkant van de woning.

De woningen worden voorzien van vloerverwarming, krijgen een warmtepomp, zonnepanelen én worden voorzien van HR+++ glas. Door de goede isolatie zijn de woningen zeer energiezuinig, wat goed is voor het milieu én de portemonnee.

Indeling
De woning heeft een entree (7m²) aan de zijkant van de woning, een ruime woonkamer (57m²) voorzien van een grote open keuken met alle gewenste basisapparatuur.

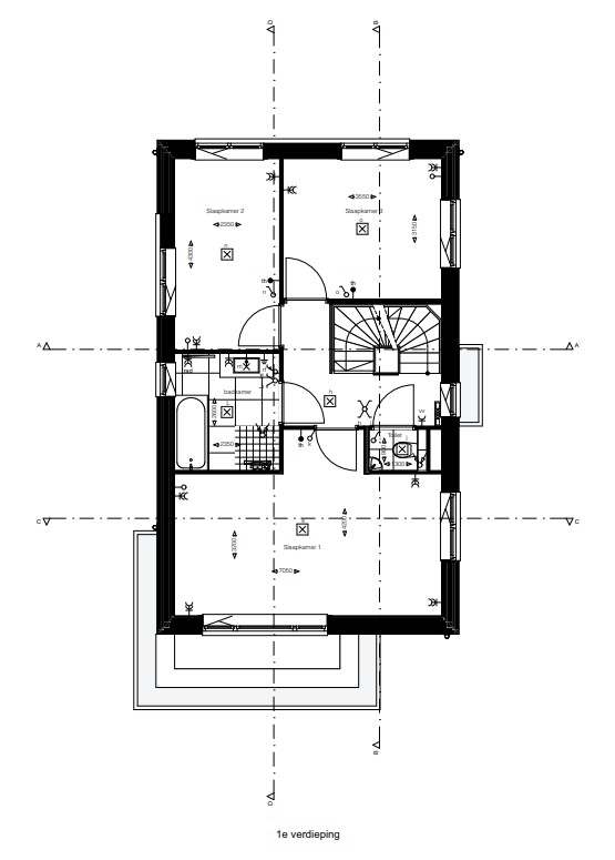
De eerste verdieping telt 3 ruime slaapkamers (10m², 11m² en 21m²), een separaat toilet op de gang en een badkamer. De badkamer is voorzien van een ligbad, aparte inloopdouche en een vaste wastafel.

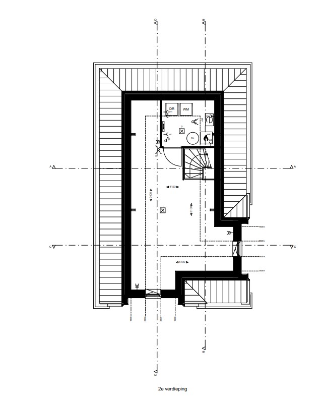
De tweede verdieping is bereikbaar via een vaste trap en heeft een zeer grote open zolder (33m² – welke volledig naar eigen wens in te delen is) en een aparte techniekruimte met opstelling voor de wasmachine en droger.

Woningtype 1.3.2 wordt voorzien van een ruime stenen garage (variërend van 18m² – 19m²) voor 1 auto en 2 opstelplaatsen voor auto’s op eigen terrein.

Interesse? Bekijk de projectwebsite woneninslingerbos.nl

  • 168 m2
  • 419 m2
  • 3

Overdracht

StatusBeschikbaar
Prijs€ 731.000,- Vrij op naam

Oppervlaktes en inhoud

Gebruiksoppervlakte168 m2
Inhoud672 m3

Bouw

SoortEengezinswoning
IsolatievormenVolledig geïsoleerd

Indeling

Aantal verdiepingen3
Aantal kamers5
Aantal slaapkamers3

Maandlasten

Ligging

Marktcijfers van Lingewaard

Gemiddelde verkoopprijs in Lingewaard

Landelijk gemiddelde: € 318.796,-

Gemiddelde vraagprijs in Lingewaard

Landelijk gemiddelde: € 336.310,-

Gemiddelde verkooptijd in Lingewaard

Landelijk gemiddelde: 22

Gemiddeld aangeboden in Lingewaard

Landelijk gemiddelde: 4081

Gemiddeld aantal verkocht in Lingewaard

Landelijk gemiddelde: 8726

Gemiddelde prijs/m2 in Lingewaard

Landelijk gemiddelde: 2.770