Ga naar inhoud

Slingerbos | 2^1-kapwoning | Hazelaar 1.2 26

6851 VP Huissen

Verkocht onder voorbehoud

€ 552.000,- Vrij op naam

  1. Home>
  2. Nieuwbouw>
  3. >
  4. Slingerbos | 2^1-kapwoning | Hazelaar 1.2 26

Ruim opgezet, een speelse uitstraling en vol variatie, dat is Slingerbos! Deze nieuwbouwwijk kan gezien worden als één groot landschapspark met een subtiel meanderende laan waaraan 13 vrijstaande villa’s, 30 twee-onder-een kapwoningen, 9 drie-onder-een kapwoningen én 8 vier-onder-een kapwoningen gelegen zijn.

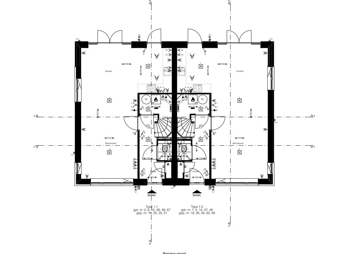
Woningtype 1.2 is een ruime twee-onder-een-kapwoning van 139 m² en kenmerkt zich door een dwarskap aan de zijkant van de woning.

De woningen worden voorzien van vloerverwarming, krijgen een warmtepomp, zonnepanelen én worden voorzien van HR+++ glas. Door de goede isolatie zijn de woningen zeer energiezuinig, wat goed is voor het milieu én de portemonnee.

Indeling
De woning heeft een ruime woonkamer (40m²) voorzien van een open hoekkeuken met alle gewenste basisapparatuur.

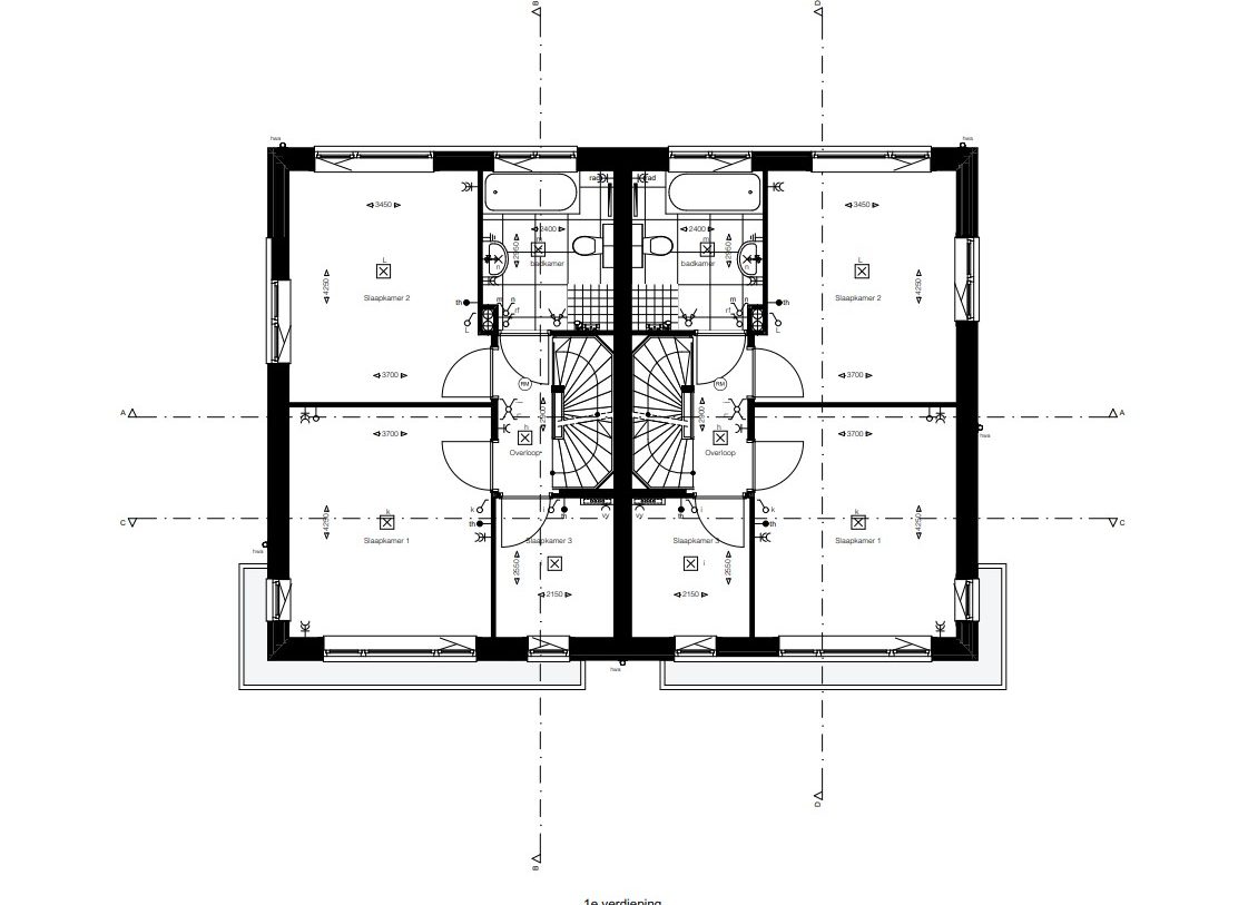
De eerste verdieping telt 2 ruime slaapkamers (15m² en 16m²), 1 lichte hobbyruimte (6m² – welke prima kan dienen als kinderslaapkamer) en een badkamer (7m²). De badkamer is voorzien van een ligbad, aparte inloopdouche, vaste wastafel en hangend toilet.

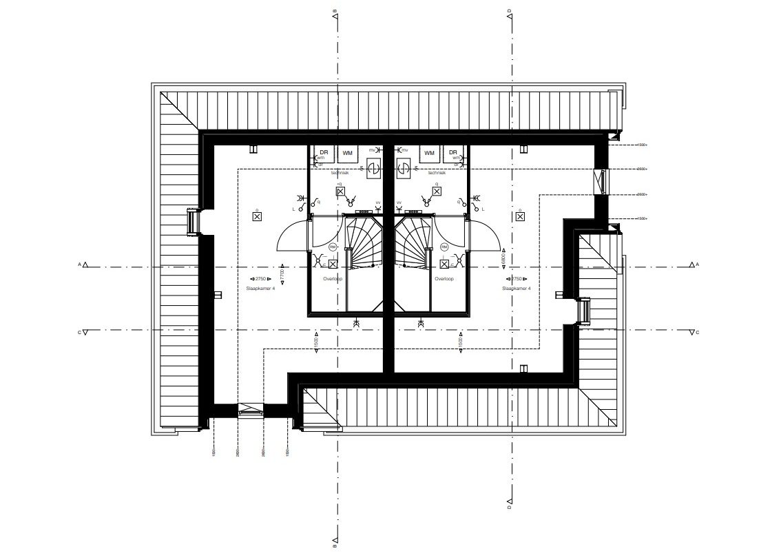
De tweede verdieping is bereikbaar via een vaste trap en heeft een derde ruime slaapkamer (11m²) en een aparte techniekruimte met opstelling voor de wasmachine en droger.

Woningtype 1.2 wordt standaard voorzien van een houten berging (5m²) op eigen terrein. Deze hoekwoning heeft 2 opstelplaatsen voor auto’s op eigen terrein.

Interesse? Bekijk meer informatie op de projectwebsite woneninslingerbos.nl

  • 139 m2
  • 283 m2
  • 4

Overdracht

StatusVerkocht onder voorbehoud
Prijs€ 552.000,- Vrij op naam

Oppervlaktes en inhoud

Gebruiksoppervlakte139 m2
Inhoud546 m3

Bouw

SoortEengezinswoning
IsolatievormenVolledig geïsoleerd

Indeling

Aantal verdiepingen3
Aantal kamers5
Aantal slaapkamers4

Maandlasten

Ligging

Marktcijfers van Lingewaard

Gemiddelde verkoopprijs in Lingewaard

Landelijk gemiddelde: € 318.796,-

Gemiddelde vraagprijs in Lingewaard

Landelijk gemiddelde: € 336.310,-

Gemiddelde verkooptijd in Lingewaard

Landelijk gemiddelde: 22

Gemiddeld aangeboden in Lingewaard

Landelijk gemiddelde: 4081

Gemiddeld aantal verkocht in Lingewaard

Landelijk gemiddelde: 8726

Gemiddelde prijs/m2 in Lingewaard

Landelijk gemiddelde: 2.770