€ 425.000,- Vrij op naam
- Home>
- Nieuwbouw>
- Koop Beilen Brinkstraat – 6 appartementen>
- Type C-D D
Wonen in comfort en stijl – in het hart van Beilen
In het centrum van Beilen wordt binnenkort een modern nieuwbouwproject ontwikkeld. Het betreft een kleinschalig project bestaande uit 6 duurzame appartementen. Hier woon je comfortabel, energiezuinig én op loopafstand van alle voorzieningen.
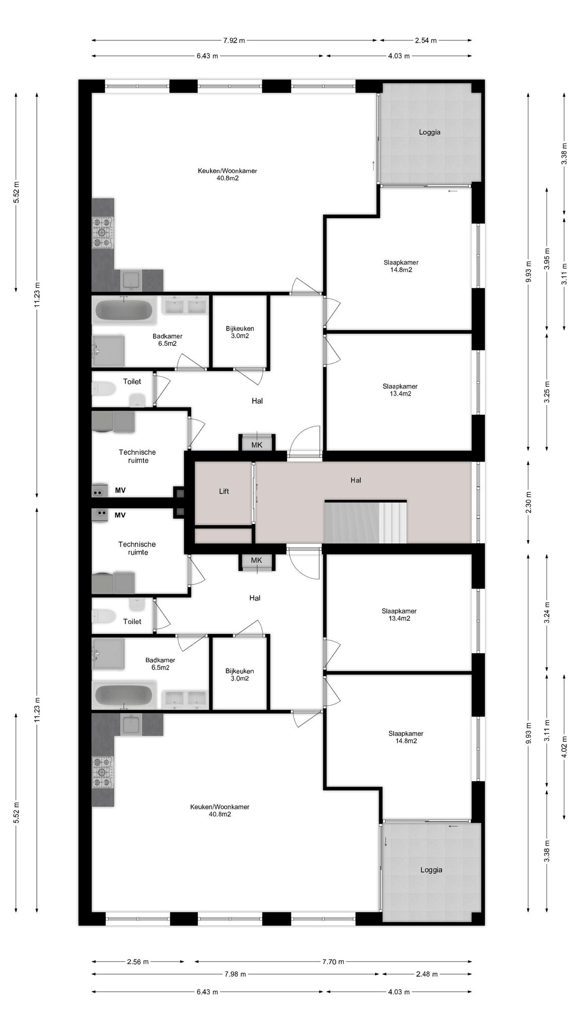
Het complex bestaat uit zes comfortabele appartementen, verdeeld over drie verdiepingen. Elke appartement biedt circa 100 m² woonoppervlakte, een ruime woonkamer met open keuken, twee volwaardige slaapkamers en een balkon/loggia om buiten te zitten. Dankzij de optimale indeling geniet je van licht, ruimte en privacy – of je nu op de begane grond, middenverdieping of bovenste etage woont.
Het gebouw is ontworpen in een moderne stijl en volledig gericht op duurzaam wonen. Zo zijn alle appartementen voorzien van vloerverwarming, uitstekende isolatie, zonnepanelen, warmtepomp (lucht/water?) en een energielabel A+++. Uiteraard is er een lift aanwezig, een eigen berging en volop parkeergelegenheid in de directe omgeving.
Het kleinschalige appartementencomplex ligt op een goede locatie: midden in het centrum van Beilen. Supermarkten, winkels, horeca, apotheek en sportvoorzieningen zijn allemaal op loopafstand.
Voor wie graag de natuur in gaat, zijn het Dwingelerveld, Terhorsterzand en andere Drentse natuurlijkgebieden vlakbij. Beilen heeft daarnaast een eigen NS-station, en via de A28 zijn Assen, Zwolle en Groningen snel bereikbaar.
* Prijzen inclusief sanitair;
* Genoemde prijzen zijn vrij op naam;
- 100 m2
- 2
Overdracht
| Status | Onder optie |
|---|---|
| Prijs | € 425.000,- Vrij op naam |
Oppervlaktes en inhoud
| Gebruiksoppervlakte | 100 m2 |
|---|---|
| Inhoud | 270 m3 |
Bouw
| Soort | Portiekflat |
|---|---|
| Dak type | Samengesteld dak |
| Isolatievormen | Dakisolatie, Muurisolatie, Vloerisolatie, Volledig geïsoleerd, HR glas |
Indeling
| Aantal verdiepingen | 1 |
|---|---|
| Aantal kamers | 3 |
| Aantal slaapkamers | 2 |
Maandlasten
Ligging
Marktcijfers van Midden-Drenthe
Gemiddelde verkoopprijs in Midden-Drenthe
Landelijk gemiddelde: € 318.796,-
Gemiddelde vraagprijs in Midden-Drenthe
Landelijk gemiddelde: € 336.310,-
Gemiddelde verkooptijd in Midden-Drenthe
Landelijk gemiddelde: 22
Gemiddeld aangeboden in Midden-Drenthe
Landelijk gemiddelde: 4081
Gemiddeld aantal verkocht in Midden-Drenthe
Landelijk gemiddelde: 8726
Gemiddelde prijs/m2 in Midden-Drenthe
Landelijk gemiddelde: 2.770