€ 280.700,- Vrij op naam
- Home>
- Nieuwbouw>
- Koop Beilen Beilen Nagtegael Fase III (Poppink)>
- Spurrie 9
In fase 3 van de nieuwbouwwijk Nagtegael bouwt Bouw- en handelsmaatschappij Poppink B.V. uit Fleringen prachtige herenhuizen in de jaren ’30-stijl.
Dit project bestaat uit royale, vrijstaande woningen en tweekappers.
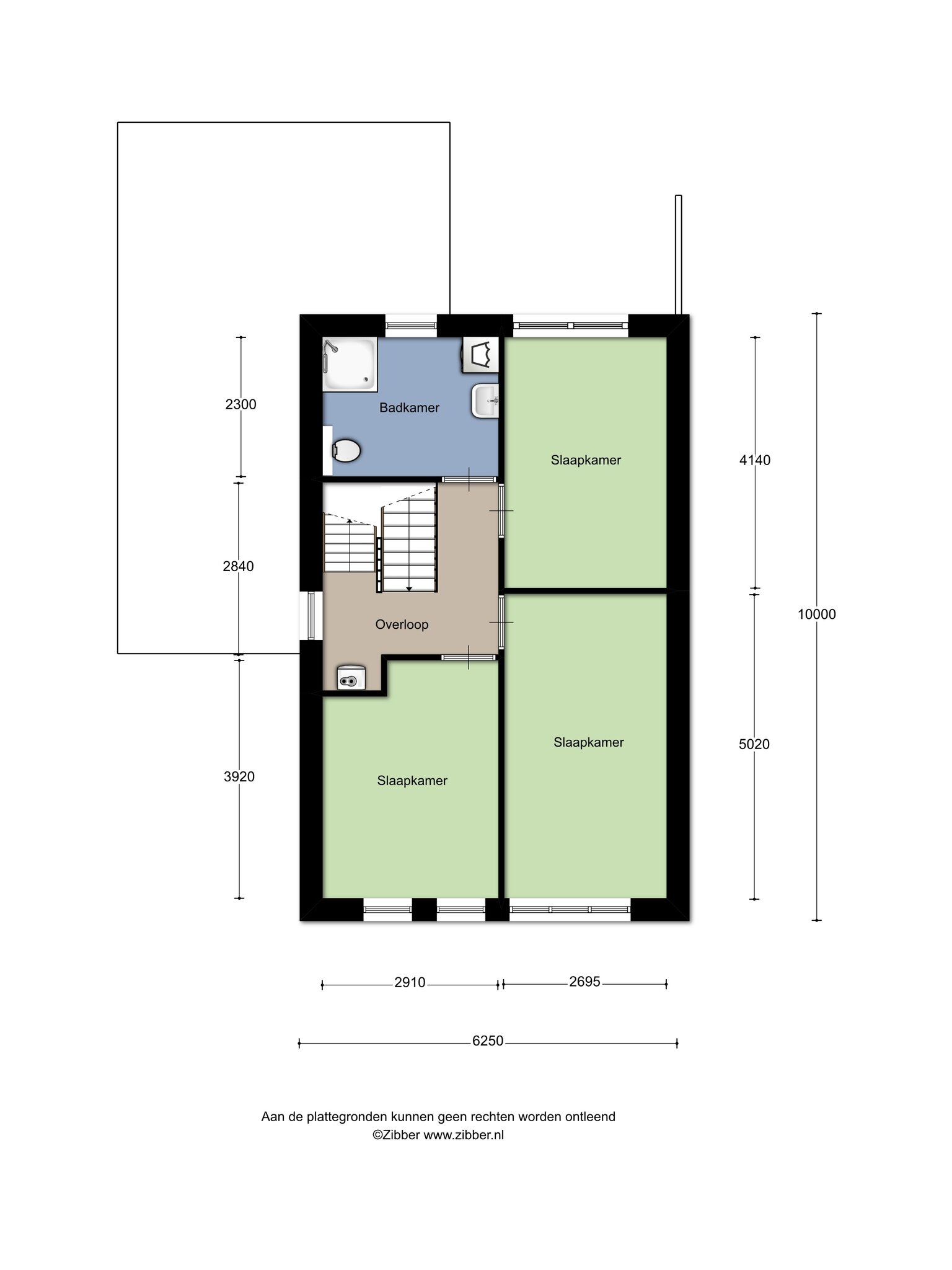
INDELING (standaard)
Begane grond: hal/entree met toiletruimte en meterkast, L-vormige woonkamer met open keuken en bijkeuken met doorgang naar de garage.
Eerste verdieping: overloop met 3 slaapkamers en badkamer.
Tweede verdieping: zolderruimte, met mogelijkheid voor het creëren van een 4e slaapkamer.
INFO
De woningen worden zonder keuken aangeboden, doch worden standaard voorzien van een badkamer en van zonnepanelen.
Mocht het niet standaard bij de woning worden aangeboden, zijn er optioneel vele mogelijkheden, zoals de woning uitbouwen zodat er en een royale leefkeuken ontstaat, openslaande tuindeuren, carport en badkamerinrichting.
- 151 m2
- 284 m2
- 3
Overdracht
| Status | Verkocht |
|---|---|
| Prijs | € 280.700,- Vrij op naam |
Oppervlaktes en inhoud
| Gebruiksoppervlakte | 151 m2 |
|---|---|
| Inhoud | 570 m3 |
Bouw
| Soort | Eengezinswoning |
|---|---|
| Dak type | Zadeldak |
| Isolatievormen | Volledig geïsoleerd |
Indeling
| Aantal verdiepingen | 3 |
|---|---|
| Aantal kamers | 4 |
| Aantal slaapkamers | 3 |
Maandlasten
Ligging
Marktcijfers van Midden-Drenthe
Gemiddelde verkoopprijs in Midden-Drenthe
Landelijk gemiddelde: € 318.796,-
Gemiddelde vraagprijs in Midden-Drenthe
Landelijk gemiddelde: € 336.310,-
Gemiddelde verkooptijd in Midden-Drenthe
Landelijk gemiddelde: 22
Gemiddeld aangeboden in Midden-Drenthe
Landelijk gemiddelde: 4081
Gemiddeld aantal verkocht in Midden-Drenthe
Landelijk gemiddelde: 8726
Gemiddelde prijs/m2 in Midden-Drenthe
Landelijk gemiddelde: 2.770