€ 393.000,- Vrij op naam
- Home>
- Nieuwbouw>
- Koop Arnhem Sluiseiland fase 1>
- Spits - hoekwoning 17
Ideaal voor gezinnen!
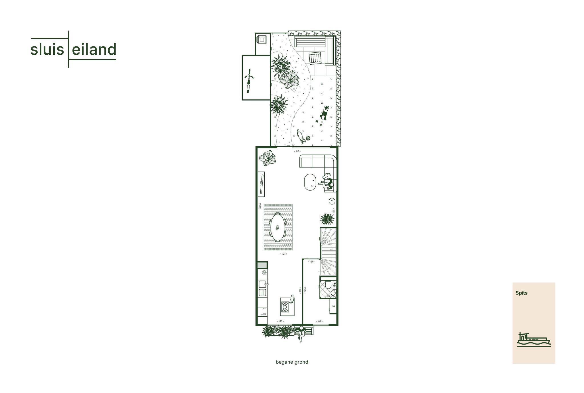
Een fijn huis met tuin in het hart van Sluiseiland, dat is woningtype Spits. In fase 1 worden 12 Spits-woningen aangeboden, 8 tussenwoningen en 4 hoekwoningen. De basis is goed en bestaat uit twee bouwlagen met een woonoppervlakte van 112 m². Om nog meer ruimte te creëren kunnen bepaalde woningen optioneel worden voorzien van een uitbouw op de begane grond en/of een dakopbouw.
De woning heeft een tuingerichte woonkamer en op de eerste verdieping vindt u 3 slaapkamers en een badkamer. Optioneel is een 4e slaapkamer eenvoudig te realiseren. De achtertuinen liggen op het noorden of oosten. Daar vindt u ook de houten berging.
Woonoppervlakte vanaf 112 m² tot 120 m².
–  uitstekende indeling
–  zitbankje met bakstenen plantenbak aan de straatzijde
–  gasloos en voorzien van een warmtepomp
–  vloerverwarming en topkoeling
–  luxe badkamer
–  optie dakopbouw (11 woningen)
–  optie uitbouw begane grond (6 woningen)
- 112 m2
Overdracht
| Status | Verkocht | 
|---|---|
| Prijs | € 393.000,- Vrij op naam | 
Oppervlaktes en inhoud
| Gebruiksoppervlakte | 112 m2 | 
|---|---|
| Inhoud | 420 m3 | 
Bouw
| Soort | Eengezinswoning | 
|---|---|
| Dak type | Plat dak | 
Indeling
| Aantal verdiepingen | 1 | 
|---|---|
| Aantal kamers | 1 | 
Maandlasten
Ligging
Marktcijfers van Arnhem
Gemiddelde verkoopprijs in Arnhem
Landelijk gemiddelde: € 318.796,-
Gemiddelde vraagprijs in Arnhem
Landelijk gemiddelde: € 336.310,-
Gemiddelde verkooptijd in Arnhem
Landelijk gemiddelde: 22
Gemiddeld aangeboden in Arnhem
Landelijk gemiddelde: 4081
Gemiddeld aantal verkocht in Arnhem
Landelijk gemiddelde: 8726
Gemiddelde prijs/m2 in Arnhem
Landelijk gemiddelde: 2.770
 
                             
                             
                             
                                 
                                 
                                 
                                 
                                 
                                 
                                 
                                 
                                     
                                     
                                     
                                     
                                     
                                                             
                                