Ga naar inhoud

Vinkebuurt 108 - Bouwkavel

2471 XD Zwammerdam

Drieman Alphen aan den Rijn
Neem contact met mij op

0 vrij van 1

€ 250.000,-

  1. Home>
  2. Nieuwbouw>
  3. Koop Zwammerdam Vinkebuurt 108 – Bouwkavel

BOUWKAVEL MET UNIEKE LIGGING AAN HET WATER!
Aan de Vinkebuurt 108 in Zwammerdam wordt een unieke bouwkavel aangeboden met een achtertuin die direct is gelegen aan het fraaie vaarwater van de Oude Rijn!

WONEN EN LEVEN AAN HET WATER MET EIGEN LIGPLAATS
De bijzondere omgeving waarin de kavel zich bevindt, de ligging met het prachtige uitzicht over het water en de vrijheid om zelf uw droomhuis te realiseren, maken deze kavel uniek. Gaat u hier straks samen met de architect uw wensen vertalen naar een woning die aansluit bij de manier waarop uw wilt wonen? Aan u de keuze!
Door de mogelijkheid voor een eigen ligplaats vaart u met uw boot zo de Oude Rijn op richting al het moois wat de omgeving en het water te bieden hebben. Blijft u liever op het droge? Vanuit uw tuin en woning kunt u ook heerlijk genieten van het buitenleven en de bedrijvigheid wat wonen aan het water met zich meebrengt.

ZELF UW EIGEN DROOMHUIS BOUWEN
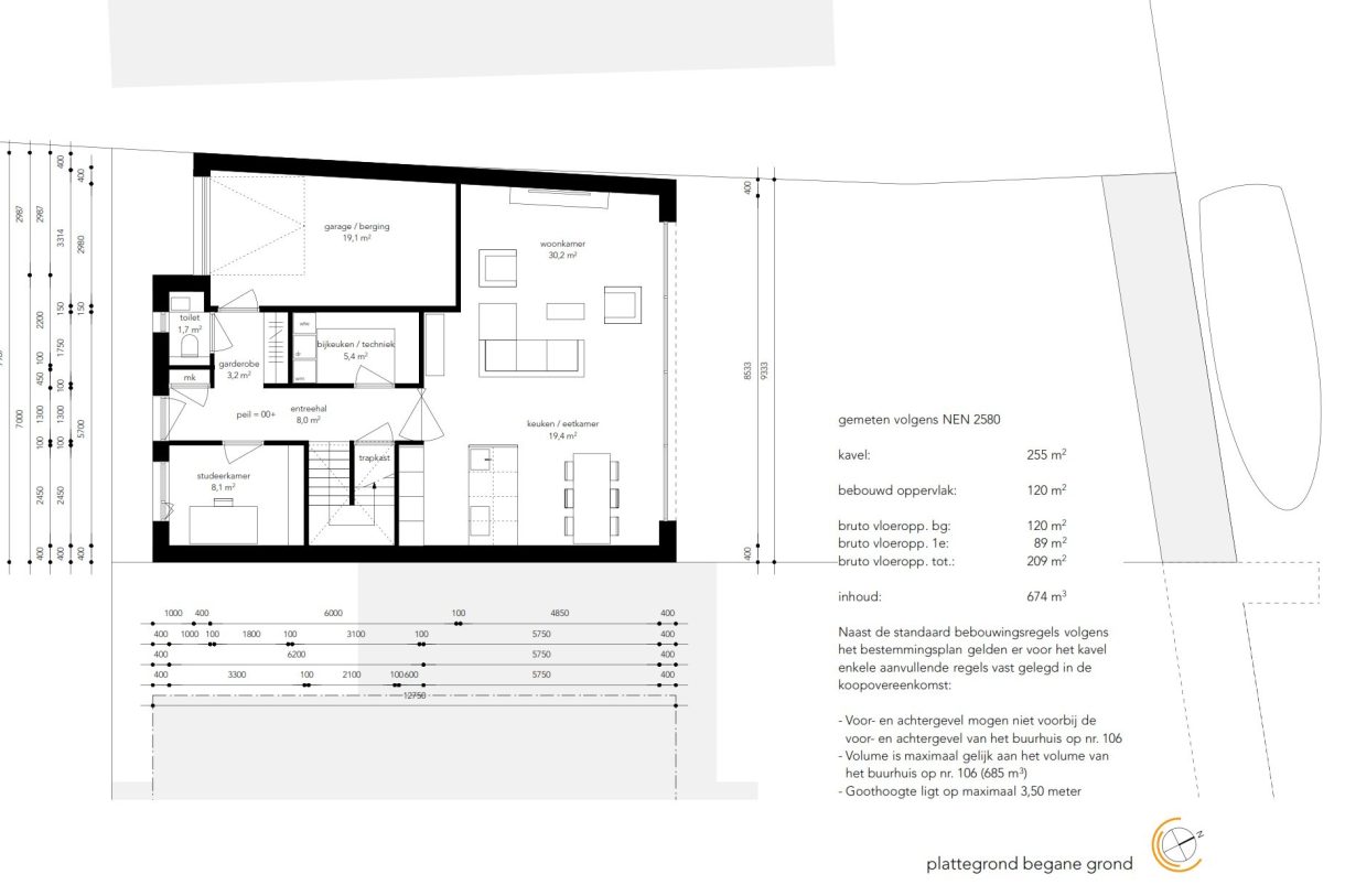
Deze prachtige bouwkavel aan de Vinkebuurt 108 biedt u de mogelijkheid om uw eigen woonwensen waar te maken. Zo kunt u (uiteraard binnen de bebouwingsmogelijkheden en richtlijnen) uw droomwoning realiseren. Voor de bebouwingsmogelijkheden verwijzen wij u graag naar de ruimtelijke kaders zoals deze worden weergegeven in de bijbehorende impressies van de bouwkavel.

WONEN IN ZWAMMERDAM
Zwammerdam is een pittoresk dorp op steenworp afstand gelegen van Alphen aan den Rijn.
Het dorp heeft een historische dorpskern en ligt midden in het Groene Hart. Via de N11 zijn diverse snelwegen zoals de A12 en A4 richting de grote steden Utrecht, Den Haag, Leiden en Amsterdam goed bereikbaar. Voor uw dagelijkse boodschappen bent u met de fiets of auto in een mum van tijd in het centrum van de naastgelegen plaatsen Bodegraven en Alphen aan den Rijn.

ENKELE VOORDELEN OP EEN RIJ:
– Prachtig aan het water gelegen bouwkavel
– Mogelijkheid tot gebruik van eigen ligplaats
– Ontwerpvrijheid binnen de ruimtelijke kaders
– Centrale ligging t.o.v. voorzieningen en grote steden
– Koopsom € 250.000,- v.o.n.
– Parkeren op eigen terrein.
– Hier komt u straks thuis en vaart u uit!
– Aan u de keuze!

EEN HUIS VOOR U ALS BEWONER
Wij gaan graag met u in gesprek om de mogelijkheden van de bouwkavel met u te bespreken en het ontwerp verder af te stemmen, zodat de woning straks een weerspiegeling is van de manier waarop u wenst te wonen. U krijgt alle vrijheid in de indeling, detaillering en afwerking. Wat dacht u van een woonkamer met open keuken met uitzicht op de veranda, tuin en het water? Een werk- of slaapkamer op de begane grond? Een master bedroom met ieder zijn eigen inloopkast? Een badkamer die u het ‘hotel’ gevoel geeft? Parkeren voor de deur of in uw eigen garage? Zegt u het maar: hoe luxe wilt u het hebben?

VERKOOP HUIDIGE WONING?
Wellicht bent u reeds in het bezit van een koopwoning en verneemt u graag wat uw woning in de huidige markt opbrengt. Onze makelaars komen graag bij u langs om een kosteloze en vrijblijvende waardebepaling af te geven en de verkoopmogelijkheden van uw huidige woning met u te bespreken. Voor het maken van een afspraak kunt u telefonisch contact opnemen met Drieman Garantiemakelaars in Alphen aan den Rijn of Nieuwkoop.

INTERESSE OF VRAGEN?
Heeft u belangstelling in of vragen over “Vinkebuurt 108” neemt u dan contact op met Drieman Garantiemakelaars via telefoon of per mail en wij informeren u graag verder!

  • 255 m2

Kenmerken Vinkebuurt 108 - Bouwkavel

Overdracht

Prijs€ 250.000,-
StatusVerkocht

Oppervlaktes en inhoud

Perceeloppervlakte255 m2

Overig

Geen eigenschappen

Bouwtypes Vinkebuurt 108 - Bouwkavel

Maandlasten Vinkebuurt 108 - Bouwkavel

Ligging project 'Vinkebuurt 108 - Bouwkavel'

Voorzieningen

Centraal gelegen informatie over de buurt

Aantal inwoners

In de gemeente

108.915