Ga naar inhoud

8 appartementen Mooieweg 11

6836 AC Arnhem

Roel Willemsen Garantiemakelaars Arnhem
Neem contact met mij op
Project website

0 vrij van 8

Project website

€ 255.000,- t/m € 335.000,-

  1. Home>
  2. Nieuwbouw>
  3. Koop Arnhem 8 appartementen Mooieweg 11

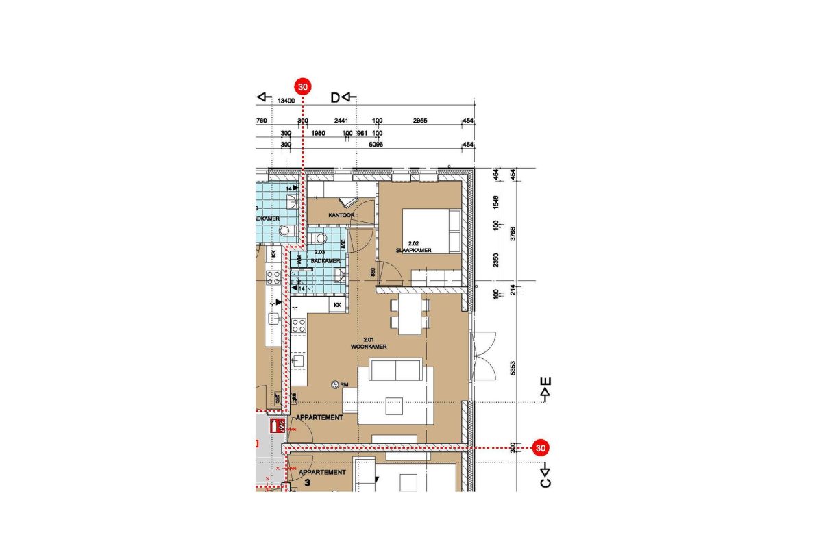
8 appartementen aan de Mooieweg 11 te Arnhem

Verwachte start bouw: december 2024!

Landelijk en duurzaam wonen in de hoofdstad van Gelderland? Dat kan nu! Aan een van de oudste laantjes van Arnhem-Zuid wordt een kleinschalig appartementencomplex gerealiseerd van 8 appartementen met privé-parkeerplaatsen. Landelijk wonen, maar alles binnen handbereik… dat is wonen op de Mooieweg. Lekker overdekt winkelen in één van de grootste winkel- en vrijetijdscentra van Nederland? Dat kan, want Kronenburg ligt op 5 minuten fietsen van jouw appartement. Geen zin om te fietsen. De bushalte stopt praktisch voor de deur op maar 3 minuten lopen.

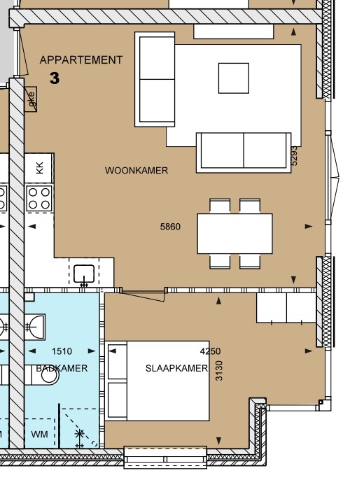
4 begane grond appartementen met tuin
– vloeroppervlakte van circa 50 m2 tot 55 m2
– sanitair
– tuin
– parkeerplaats
– externe berging
– indelingsvariant bespreekbaar

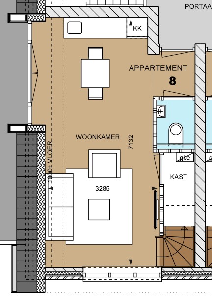
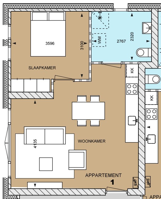
4 maisonnettes
– vloeroppervlakte van circa 37 m2 tot 44 m2
– sanitair
– twee woonlagen
– parkeerplaats
– externe berging

Duurzaamheid
– uitstekend geïsoleerd overeenkomstig de BENG normen (Bijna Energie Neutraal Gebouw)
– collectieve warmtepomp, elektrische boiler
– op het dak komen zonnepanelen
– lagere hypotheekrente vanwege de uitstekende isolatie

Algemeen
– extra parkeerplaatsen te koop
– glasvezel aansluiting

U kunt zich inschrijven via de projectwebsite: mooieweg11.nl

  • 37-56 m2
  • 198 m2
  • 107-161 m3

Kenmerken 8 appartementen Mooieweg 11

Overdracht

Prijs€ 255.000,- t/m € 335.000,-
StatusVerkocht

Oppervlaktes en inhoud

Inhoud107-161 m3
Woonoppervlakte37-56 m2
Perceeloppervlakte198 m2

Bouw

Start bouw15 december 2024

Overig

Project website8 appartementen Mooieweg 11

Bouwtypes 8 appartementen Mooieweg 11

Verkocht

Maisonnette Mooieweg 11 Arnhem

€ 255.000,- t/m € 279.500,-

ALLE BOUWNUMMERS DEFINITIEF VERKOCHT!

8 appartementen aan de Mooieweg 11 te Arnhem

Landelijk en duurzaam wonen in de hoofdstad van Gelderland? Dat kan nu! Aan een van de oudste laantjes van Arnhem-Zuid wordt een kleinschalig appartementencomplex gerealiseerd van 8 appartementen met privé-parkeerplaatsen. Landelijk wonen, maar alles binnen handbereik… dat is wonen op de Mooieweg. Lekker overdekt winkelen in één van de grootste winkel- en vrijetijdscentra van Nederland? Dat kan, want Kronenburg ligt op 5 minuten fietsen van jouw appartement. Geen zin om te fietsen. De bushalte stopt praktisch voor de deur op maar 3 minuten lopen.

4 maisonnettes
– vloeroppervlakte van circa 37 m2 tot 44 m2
– sanitair
– twee woonlagen
– parkeerplaats
– externe berging

Duurzaamheid
– uitstekend geïsoleerd overeenkomstig de BENG normen (Bijna Energie Neutraal Gebouw)
– collectieve warmtepomp elektrische boiler
– op het dak komen zonnepanelen
– lagere hypotheekrente vanwege de uitstekende isolatie

Algemeen
– extra parkeerplaatsen te koop
– glasvezel aansluiting

U kunt zich inschrijven via de projectwebsite: mooieweg11.nl

  • 37-44 m2 Woon opp.
  • 107-128 m3 Inhoud
Verkocht

Maisonnette Mooieweg 11 Arnhem

€ 255.000,- t/m € 279.500,- of € 0,-

Start verkoop: 8 appartementen aan de Mooieweg 11 te Arnhem

Landelijk en duurzaam wonen in de hoofdstad van Gelderland? Dat kan nu! Aan een van de oudste laantjes van Arnhem-Zuid wordt een kleinschalig appartementencomplex gerealiseerd van 8 appartementen met privé-parkeerplaatsen. Landelijk wonen, maar alles binnen handbereik… dat is wonen op de Mooieweg. Lekker overdekt winkelen in één van de grootste winkel- en vrijetijdscentra van Nederland? Dat kan, want Kronenburg ligt op 5 minuten fietsen van jouw appartement. Geen zin om te fietsen. De bushalte stopt praktisch voor de deur op maar 3 minuten lopen.

4 maisonnettes
– vloeroppervlakte van circa 37 m2 tot 44 m2
– sanitair
– twee woonlagen
– parkeerplaats
– externe berging

Duurzaamheid
– uitstekend geïsoleerd overeenkomstig de BENG normen (Bijna Energie Neutraal Gebouw)
– collectieve warmtepomp elektrische boiler
– op het dak komen zonnepanelen
– lagere hypotheekrente vanwege de uitstekende isolatie

Algemeen
– extra parkeerplaatsen te koop
– glasvezel aansluiting
– start verkoop: woensdag 25-04 2024

U kunt zich inschrijven via de projectwebsite: mooieweg11.nl

  • 37-44 m2 Woon opp.
  • 107-128 m3 Inhoud
Verkocht

Tuinappartement Mooieweg 11 Arnhem

€ 310.000,- t/m € 335.000,- of € 0,-

Bouwnummers 1 en 4: verkocht onder voorbehoud
Bouwnummers 2 en 3: definitief verkocht

8 appartementen aan de Mooieweg 11 te Arnhem

Verwachte start bouw: december 2024!

Landelijk en duurzaam wonen in de hoofdstad van Gelderland? Dat kan nu! Aan een van de oudste laantjes van Arnhem-Zuid wordt een kleinschalig appartementencomplex gerealiseerd van 8 appartementen met privé-parkeerplaatsen. Landelijk wonen, maar alles binnen handbereik… dat is wonen op de Mooieweg. Lekker overdekt winkelen in één van de grootste winkel- en vrijetijdscentra van Nederland? Dat kan, want Kronenburg ligt op 5 minuten fietsen van jouw appartement. Geen zin om te fietsen. De bushalte stopt praktisch voor de deur op maar 3 minuten lopen.

4 begane grond appartementen met tuin
– vloeroppervlakte van circa 50 m2 tot 55 m2
– sanitair
– tuin
– parkeerplaats
– externe berging
– indelingsvariant bespreekbaar

Duurzaamheid
– uitstekend geïsoleerd overeenkomstig de BENG normen (Bijna Energie Neutraal Gebouw)
– collectieve warmtepomp, elektrische boiler
– op het dak komen zonnepanelen
– lagere hypotheekrente vanwege de uitstekende isolatie

Algemeen
– extra parkeerplaatsen te koop
– glasvezel aansluiting

U kunt zich inschrijven via de projectwebsite: mooieweg11.nl

  • 51-56 m2 Woon opp.
  • 145-161 m3 Inhoud

Maandlasten 8 appartementen Mooieweg 11

Ligging project '8 appartementen Mooieweg 11'

Voorzieningen

Centraal gelegen informatie over de buurt

Aantal inwoners

In de gemeente

155.699