€ 1.750,- t/m € 2.000,-
HOOFTSTRAAT 209
Project wordt momenteel gerealiseerd, meld u alvast aan om op de hoogte te blijven!
Uniek transformatieproject van bedrijfsruimte naar twee luxueuze huurappartementen aan de Oude Rijn. Twee royale appartementen met hoogwaardige afwerking en beiden een buitenruimte aan de waterzijde.
LIGGING
Alphen aan den Rijn is uitgegroeid tot een populaire plek om te wonen vanwege de centrale ligging en alle voorzieningen. De bruisende binnenstad heeft het allemaal; karakteristieke panden, bibliotheek, theater, supermarkt, winkels, restaurants en terrassen aan het water. Dit project is gelegen in de geliefde Hooftstraat met de nodige winkels en horeca maar door de ligging aan de andere zijde van de brug toch net iets meer in de luwte. Het comfort van alles wat u nodig heeft op loopafstand en het gemak van meer rust en voor de deur uw auto kunnen parkeren zonder parkeervergunning!
Daarnaast is de ligging ook zeer centraal als we kijken naar recreatiemogelijkheden. Sportpark De Bijlen, tenniscentrum Nieuwe Sloot en recreatiegebied Zegersloot liggen allen op loopafstand van deze appartementen. Zegersloot is een groot groen gebied met hierin de Zegerplas. Op en rond het meer is veel ruimte voor natuur en recreatie. Zo kunt u een heerlijke wandeling maken om vervolgens in één van de horecagelegenheden te genieten van een hapje en een drankje.
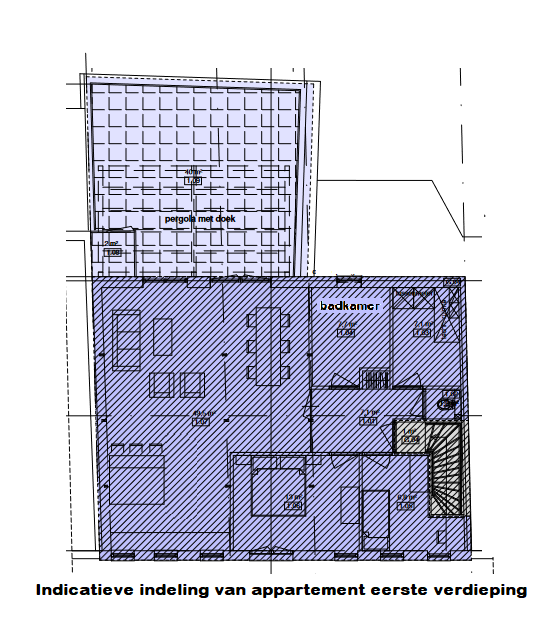
DE APPARTEMENTEN
In dit project is veel aandacht geschonken aan de hoogwaardige afwerking, praktische indeling en wooncomfort. Het project bestaat uit één appartement op de begane grond met tuin aan de Oude Rijn en één appartement op de eerste verdieping met royaal dakterras aan de Oude Rijn. De appartementen delen de centrale entree en hebben beiden op de begane grond een inpandige fietsenberging. 
Begane grond appartement
Royaal appartement van circa 119 m² woonoppervlakte uitgevoerd met;
– ruime woonkamer,
– zeer complete keuken,
– luxueuze badkamer,
– separaat toilet,
– twee slaapkamers,
– een inpandige fietsenberging (circa 6,5 m²),
– tuin aan de Oude Rijn van circa 18 m². 
Appartement op de eerste verdieping
Ruim appartement van circa 98 m² woonoppervlakte uitgevoerd met;
– ruime woonkamer,
– zeer complete keuken,
– luxueuze badkamer,
– separaat toilet,
– twee slaapkamers,
– airconditioning in woonkamer en beide slaapkamers,
– een inpandige fietsenberging op de begane grond (circa 5 m²),
– een terras met uitzicht over de Oude Rijn van circa 35 m²,
– luxe terrasoverkapping met doek,
– een berging voor de tuinmeubels op dit terras.
Beide woningen worden voorzien van vloerverwarming, wandafwerking en vloerafwerking.
PLANNING
Prognose oplevering is juni/juli 2022. 
HUURPRIJZEN
Indicatie huurprijzen  € 1.750,- tot circa € 2.000,- per maand inclusief servicekosten.
INTERESSE?
Heeft u interesse in deze huurappartementen? Laat dit ons weten door een mail te sturen naar alphen@drieman.nl! Bij aanmelding als geïnteresseerde zullen wij u op de hoogte houden van de voortgang en het verhuurtraject.
- 98-119 m2
Kenmerken Verhuur Hooftstraat 209
Overdracht
| Prijs | € 1.750,- t/m € 2.000,- | 
|---|---|
| Status | Verhuurd | 
Oppervlaktes en inhoud
| Woonoppervlakte | 98-119 m2 | 
|---|
Overig
Bouwtypes Verhuur Hooftstraat 209
Maandlasten Verhuur Hooftstraat 209
Ligging project 'Verhuur Hooftstraat 209'
Voorzieningen
- Protestants Christelijke Basisschool Groen van Prinsterer 304 m Jan Nieuwenhuijzenstraat 26 ALPHEN AAN DEN RIJN
- Universiteit Leiden 12 km Rapenburg 70 LEIDEN
- ID College 392 m Ambonstraat 1 ALPHEN AAN DEN RIJN
- Driestar educatief 13 km Burgemeester Jamessingel 2 GOUDA
- Universiteit Leiden 12 km Rapenburg 70 LEIDEN
Centraal gelegen informatie over de buurt
Aantal inwoners
In de gemeente
108.915
 
                             
                             
                             
                                 
                                 
                                 
                                                             
                                                            