€ 110,- per m2 p.j
- Home>
- Bedrijfspanden>
- Huur De Goorn Schrepel 24B 1
Op het gloednieuwe businesspark in De Goorn biedt Tromp Garantiemakelaars een bijzonder oogstrelende bedrijfsruimte met luxe kantoor. Deze ruime unit is gelegen op een hoek, waardoor je je om vindbaarheid absoluut geen zorgen hoeft te maken.
De bedrijfsruimte is zeer ruim bemeten en bestaat uit twee lagen. De onderste laag (ca. 200 vierkante meter) kan dient doen als onder meer een showroom. Deze is voorzien van een prachtig zijlicht in de gevel (voordeel van een hoekligging) en is voorzien van een toiletgroep en een pantry.
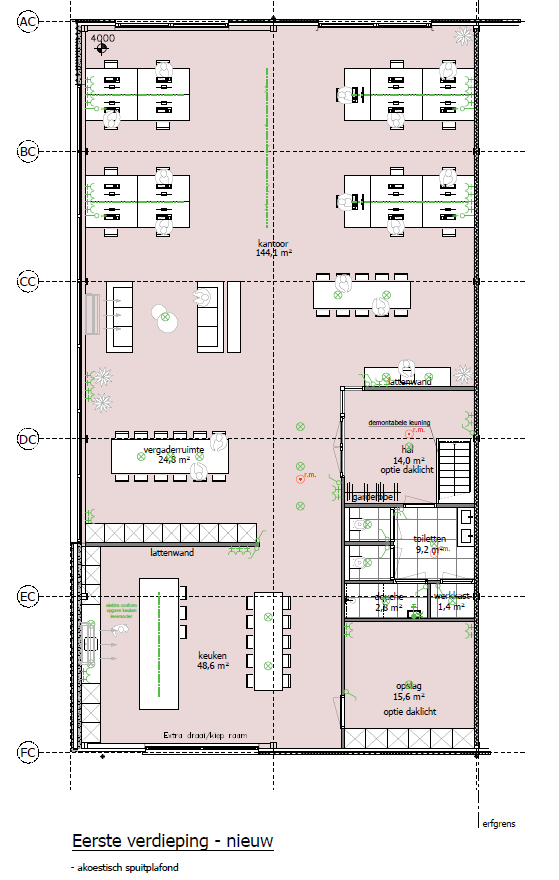
Op de etage treffen wij een uiterst luxe kantoor (totaal ca. 260 vierkante meter) met diverse voorzieningen, waaronder een luxe open keuken met diverse hoogwaardige inbouwapparatuur, waaronder een elektrische kookplaat met geïntegreerd afzuigsysteem (BORA) in het kookeiland, Quooker, koel/vriescombinatie en een vaatwasser.
De bovenste etage kent eveneens een dubbele, luxe toiletgroep, een douche en een tweetal voorraadkasten, waaronder de technische ruimte. Het kantoor is uiterst representatief en is (bijvoorbeeld) onder te verdelen in een ruimte voor werkplekken, alsmede een vergaderruimte met lattenwand met aansluitingen voor een beeldscherm.
Door het kantoor heen zijn diverse vaste internetaansluitingen aanwezig en door de ligging op de hoek, maar ook de etage over de gehele diepte van het complex, zijn er aan drie zijdes ramen aanwezig.
Kort gezegd zijn kosten noch moeite bespaard gebleven bij deze fraaie bedrijfsruimte. Bovendien is de locatie bijzonder tactisch, nabij de A7, maar ook dichtbij de dorpskern van De Goorn met bijvoorbeeld een winkelcentrum. Steden als Hoorn, Alkmaar en Amsterdam zijn eveneens op korte afstand gelegen.
Deze zeer representatieve ruimte is eventueel op korte termijn beschikbaar. De huurprijs en huurtermijn zijn nader overeen te komen.
Overige wetenswaardigheden:
– De eigenaar behoudt het recht op gunning;
– Termijn is nader overeen te komen, 5+5 jaren is mogelijk;
– Huurovereenkomst conform het laatste ROZ-model;
– Waarborgsom is twee maal de huursom;
– Huurprijs is exclusief servicekosten en exclusief btw;
- 197 m2
Kenmerken Schrepel 24B 1
Overdracht
| Status | Verhuurd |
|---|---|
| Prijs | € 110,- per m2 p.j |
| Aanvaarding | In overleg |
| Servicekosten | € 0,- per m2 p.j |
Oppervlaktes en inhoud
| Soort Object | Bedrijfsruimte |
|---|---|
| Oppervlakte | 197 m2 |
| Bedrijfshal vrije hoogte | 350 cm |
Parkeergelegenheid
| Parkeerplaatsen | 5 |
|---|---|
| Overdekt parkeren | parkeren op eigen parkeerplaatsen |
| Onoverdekt parkeren | parkeren op eigen parkeerplaatsen |
Bouw
| Bouwvorm | Bestaande bouw |
|---|---|
| Bouwjaar | 2022 |
| Bouwjaar toelichting |
Overig
| Locatie | BEDRIJVENTERREIN |
|---|---|
| Aantal lagen | 1 |
| Onderhoud binnen | Uitstekend |
| Onderhoud buiten | Uitstekend |