€ 325.000,- k.k.
Op een mooie plek aan de Ida Gerhardtsingel, met uitzicht richting het water, staat deze goed ingedeelde woning met drie slaapkamers en een vaste trap naar een verrassend ruime zolderkamer. In 2023 zijn er 7 zonnepanelen geplaatst en in 2022 is het buitenschilderwerk gedaan, waardoor je niet hoeft te beginnen met klussen en verduurzamen. De tuingerichte woonkamer grenst aan de eetkeuken, die in 2018 is vernieuwd. Met een ligging op het zuidwesten is de achtertuin, met twee terrassen, een fraaie plek voor de zonliefhebber.
Dit fijne huis staat in de nabijheid van twee winkelcentra, (basis)scholen, diverse sportverenigingen en het prachtige buitengebied. Na een paar minuten fietsen bereik je het ziekenhuis en de binnenstad is, net als het station, op fietsafstand. Liever met de bus? Dat kan ook! En de straat, met bankjes aan het water, is heerlijk groen en rustig!
Indeling:
Begane grond:
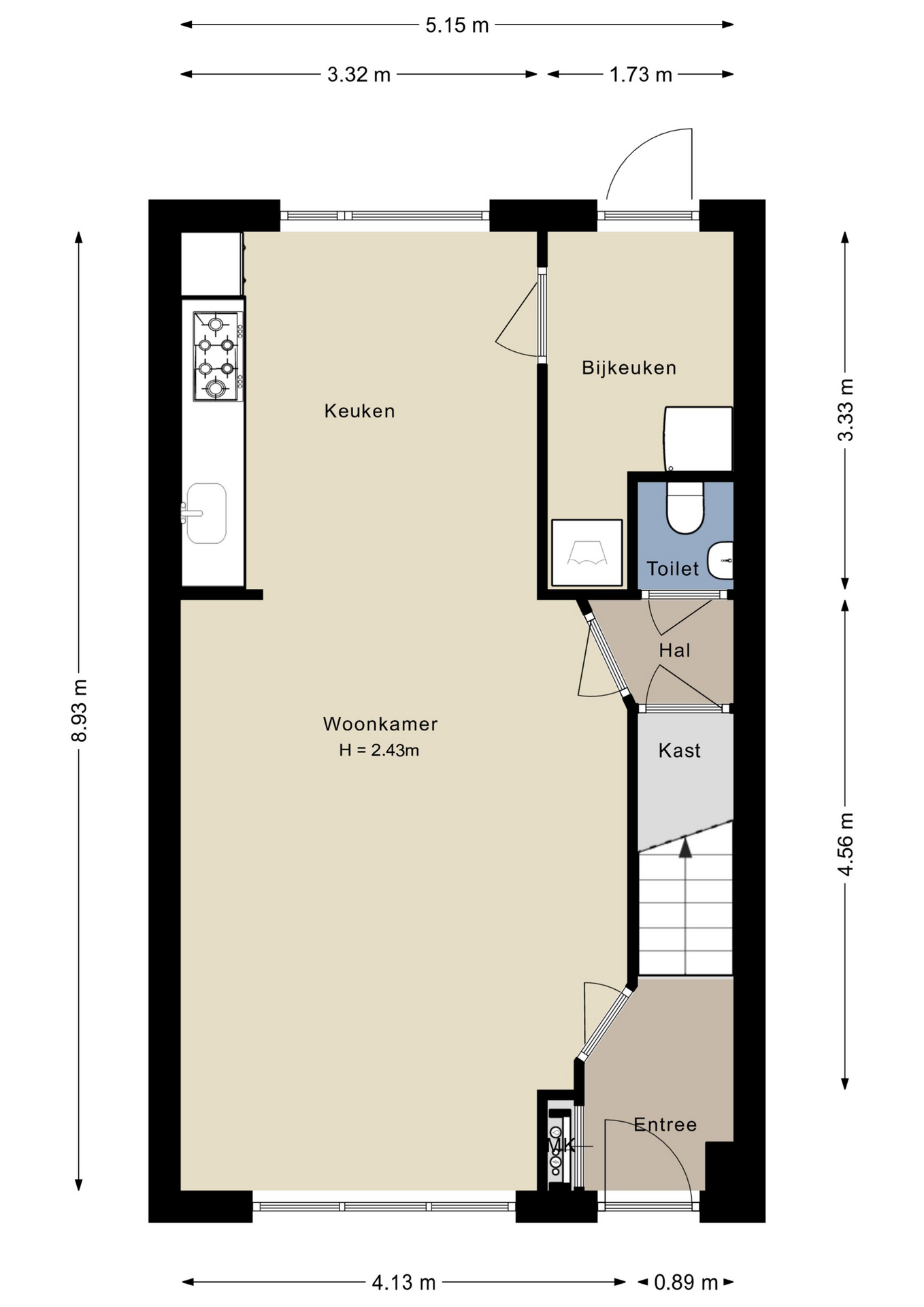
De woning is te herkennen aan de twee groenblijvende, bolvormige bomen in de voortuin. Via de voordeur loop je de hal in, met de meterkast en de trap naar de eerste verdieping. De fraaie visgraatvloer ligt niet alleen in de hal, maar op bijna de hele begane grond. Deze vloer, in een lichte houtkleur, past bij verschillende interieurstijlen.
Met een totale lengte van bijna 9 meter zijn de woonkamer en eetkeuken heerlijk ruim. Aan twee kanten is er veel lichtinval, in de woonkamer vanaf de noordoostkant en in de eetkeuken vanaf de zuidwestkant. In de woonkamer is genoeg plek voor een grote zithoek en via een portaal is de toiletruimte te bereiken. Ook is hier een handige bergkast onder de trap.
De mooie keuken is in 2018 geplaatst, met hoge bovenkasten en een stijlvol aanrechtblad met bijpassende achterwand. Alle benodigde apparatuur is ingebouwd: een gaskookplaat, afzuigkap, vaatwasser, combi-oven (2025), koelkast en een vriezer. Met de eettafel in de keuken wordt koken een stuk gezelliger!
Naast de keuken is de bijkeuken, met genoeg ruimte voor een grote vriezer en de wasapparatuur. Ook de vuilnisbak, een lage kast en andere spullen kunnen hier prima staan. Zo maakt de keuken altijd een opgeruimde indruk en heb je alle keukenspullen binnen handbereik!
Eerste verdieping:
Er zijn drie ruime slaapkamers op de eerste verdieping, waarvan twee vanaf de overloop te bereiken zijn. Aan de voorzijde is een ruime slaapkamer en aan de achterzijde zijn twee slaapkamers die nagenoeg even groot zijn. In alle slaapkamers en op de overloop ligt laminaat op de vloer.
De badkamer, met lichte wand- en vloertegels, is ingedeeld met een inloopdouche, tweede toilet en een wastafel. Ook vanuit de badkamer heb je mooi uitzicht richting de bomen die aan weerszijden van de Ida Gerhardtsingel staan.
Tweede verdieping:
Een vlizotrap geeft toegang tot de zolderkamer, met drie ramen aan de voorzijde en een maximale hoogte van circa 2.34 meter. Nu is deze kamer in gebruik als berging, maar een andere invulling is ook mogelijk. Wordt dit een werkkamer, hobbyruimte of een extra slaap-/werkkamer?
Exterieur:
Via de bijkeuken loop je de achtertuin in, op het zonnige zuidwesten. Hier zie je een ruim terras, gras, groen als erfafscheiding en een houten (fietsen)berging. Naast de berging is een tweede terras, met een poort naar de steeg. Ook de voortuin, met boomschors en twee groenblijvende bomen, is heel onderhoudsvriendelijk.
Bijzonderheden:
– Dak, gevel- en vloerisolatie;
– Houten kozijnen met isolerende beglazing;
– Buitenschilderwerk is uitgevoerd in 2022;
– Verwarming en warm water via een HR-ketel (Vaillant, 2014, huur);
– 7 zonnepanelen van 420 Wp, geplaatst in 2023;
– Drie slaapkamers op de eerste verdieping;
– Vaste trap naar de tweede verdieping (zolderkamer);
– Zonnige tuin (zuidwest) met een zonnescherm, berging en achterom;
– Energielabel A.
- 85 m2
- 135 m2
- 3
Kenmerken Ida Gerhardtsingel 106
Overdracht
| Vraagprijs | € 325.000,- k.k. |
|---|---|
| Aanvaarding | In overleg |
Oppervlaktes en inhoud
| Perceel oppervlakte | 135 m2 |
|---|---|
| Woonoppervlakte | 85 m2 |
| Inhoud | 344 m3 |
Bouw
| Soort | Eengezinswoning |
|---|---|
| Bouwvorm | Bestaande bouw |
| Bouwjaar | 1990 |
| Dak type | Lessenaardak |
| Isolatievormen | Muurisolatie |
| Energielabel | A |
Indeling
| Aantal verdiepingen | 3 |
|---|---|
| Aantal kamers | 4 |
| Aantal slaapkamers | 3 |
| Aantal badkamers | 1 |
Maandlasten
Ligging Ida Gerhardtsingel 106
Voorzieningen
Centraal gelegen informatie over de buurt
Aantal inwoners
In de gemeente
47.340
Leeftijd
in percentages van totaal
Huishoudsamenstelling
in percentages van totaal
24%
20% NL
29%
20% NL
46%
20% NL