Ga naar inhoud

Te koop: woonhuis Canadasingel 68 7207 RV Zutphen

Beschikbaar

Bezichtiging plannen

€ 450.000,- k.k.

Staan vier slaapkamers, zonnepanelen, vloerverwarming, een badkamer met inloopdouche en een onderhoudsvriendelijke tuin op je wensenlijstje? In Looër Enk staat deze verrassend ruime woning die aan al deze wensen voldoet. De woonkamer heeft veel sfeer, net als de veranda in de tuin, en er is parkeergelegenheid voor de deur. Dit is een prachtige instapklare gezinswoning.

In deze wijk vind je rustige straten, veel groen- en speelvoorzieningen voor de kinderen. Basisscholen, kinderopvang, winkelcentra, openbaar vervoer en het buitengebied van Zutphen zijn binnen handbereik. Via de N314 zijn aansluitende uitvalswegen richting de omliggende steden en dorpen goed bereikbaar.

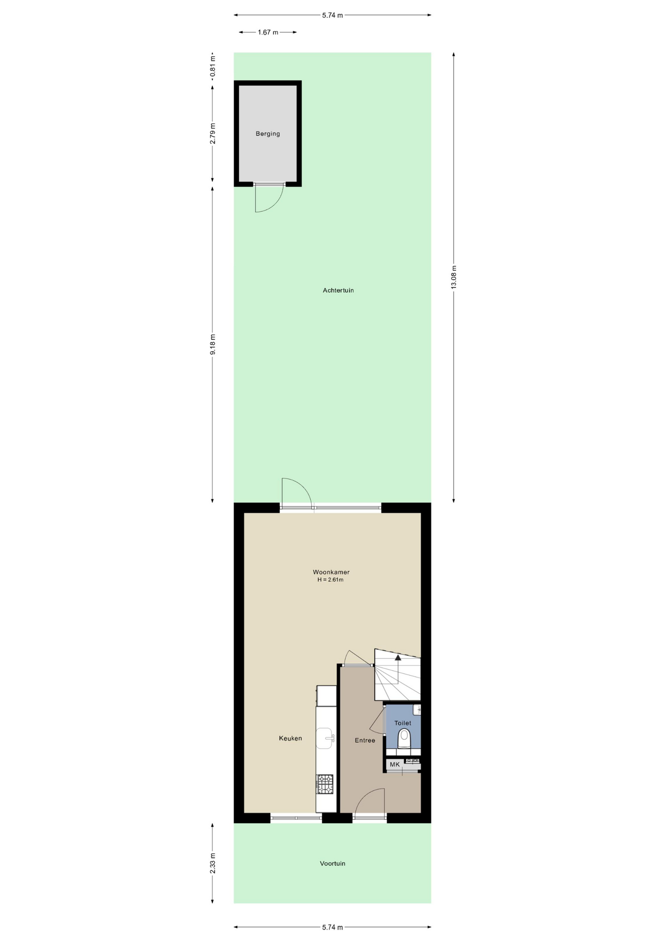
Indeling:
Begane grond:
Warme, mooie kleuren bepalen de sfeer in de ruime hal. Bij de meterkast is meer dan genoeg ruimte voor een kapstok en op de lange muur zie je stijlvol behang, dat goed past bij de tegelvloer. Rechts in de hal is niet alleen de meterkast, maar ook de trapopgang en de toiletruimte.
In de woonkamer en keuken ligt dezelfde tegelvloer als in de hal, met aangename vloerverwarming. Bij het zitgedeelte hangt een airco-unit, die kan koelen en verwarmen. Het zitgedeelte is lekker ruim, er is genoeg plek voor een eettafel en de ruimte bij de trap kan als speelplek worden gebruikt.
Vanaf de eettafel loop je zo de keuken in, waar een lichte wandopstelling staat. De gaskookplaat, afzuigkap, vaatwasser, magnetron en koelkast zijn ingebouwd. Liever een keuken met meer bergruimte? Een mooie hoekopstelling is mogelijk, net als een U-opstelling of een dubbele wandopstelling. En vergeet niet om het uitzicht te bewonderen, naar de brede en rustige straat.

Eerste verdieping:
Wat opvalt is de grootte van de slaapkamers, drie in totaal. Er zijn twee slaapkamers aan de achterzijde, die nu als kinderkamer en master bedroom in gebruik zijn. De derde slaapkamer, met opvallend fotobehang, bevindt zich aan de voorzijde. In alle kamers ligt laminaat op de vloer, zonder drempels bij de deuren.
De badkamer, met lichte wandtegels en donkere vloertegels, is heel licht en ruimtelijk. Aan de rechterzijde hangt een badmeubel met twee wastafels en verder zie je een wandcloset, een inloopdouche met glazen wand en een zwarte thermostaatkraan met dubbele douchekop.

Tweede verdieping:
Ruimte is er in overvloed, ook op de tweede verdieping die deels is ingedeeld. Uiteraard is er een vaste trap, voor een optimale bereikbaarheid, en aan de voorzijde is een groot dakraam geplaatst. Hier is de vierde slaapkamer, met kleurrijk behang op de muur achter het bed.
Verder zijn er een berging en een ruime overloop, waar de wasmachine en droger kunnen staan. Plaats je een dakraam aan de achterzijde, dan is een vijfde slaapkamer mogelijk.

Tuin:
In de voortuin, op het westen, zie je een lage haag en bestrating. Dit is een fijne plek om in de middag- en avondzon te zitten. De achtertuin, op het oosten, is ingedeeld met kunstgras en grote betontegels. Blikvanger is de houten veranda, met ruimte om een grote bbq en een grote (eet)tafel neer te zetten. In de berging en bij het achterste deel van de veranda kunnen de fietsen staan.

Bijzonderheden:
– Dak-, gevel- en vloerisolatie;
– Vloerverwarming op de begane grond;
– Hardhouten kozijnen met HR++ glas;
– Vier (mogelijk vijf) slaapkamers;
– 7 zonnepanelen aan de achterzijde (oost);
– Energielabel A.

  • 115 m2
  • 133 m2
  • 4

Kenmerken Canadasingel 68

Overdracht

Vraagprijs€ 450.000,- k.k.
AanvaardingIn overleg

Oppervlaktes en inhoud

Perceel oppervlakte133 m2
Woonoppervlakte115 m2
Inhoud412 m3

Bouw

SoortEengezinswoning
BouwvormBestaande bouw
Bouwjaar2019
Dak typeZadeldak
IsolatievormenVolledig geïsoleerd, HR glas
EnergielabelA

Indeling

Aantal verdiepingen3
Aantal kamers5
Aantal slaapkamers4
Aantal badkamers1

Maandlasten

Ligging Canadasingel 68

Voorzieningen

Centraal gelegen informatie over de buurt

Aantal inwoners

In de gemeente

47.340

Leeftijd

in percentages van totaal

Huishoudsamenstelling

in percentages van totaal

15%

20% NL

28%

20% NL

57%

20% NL

Vergelijkbaar woningaanbod