Ga naar inhoud

Te koop: woonhuis Pruimengaarde 51 2723 AN Zoetermeer

Drieman Alphen aan den Rijn
Neem contact met mij op

Verkocht

€ 515.000,- k.k.

Verrassend ruime en moderne hoekwoning met eigen parkeergelegenheid en een fantastische ligging aan waterpartij!

Als je de straat inrijdt heb je geen idee wat voor moois je staat te wachten bij deze fraai verbouwde eengezinswoning met tuin op het zuidwesten en fantastisch uitzicht. De woning is aan de achterzijde 3 meter uitgebouwd, waardoor er een heerlijk ruime living is ontstaan. Door het ruime perceel is er nog voldoende tuin over voor een fijn terras, groen en een speelplek voor de kinderen. De ligging aan een waterpartij met daarachter een fietspad met prachtige bomen, zorgt voor een prachtig en levendig uitzicht! De huidige eigenaren hebben de woning in 2016 gekocht en in verschillende fases van binnen en buiten gerenoveerd. Zo is veel houtwerk aan de buitenzijde vervangen voor onderhoudsarm kunststof en is binnen alles modern en met smaak afgewerkt. De woning is dus instapklaar! Word jij de nieuwe bewoner?

De woning ligt in een rustige straat in de wijk Seghwaert en met al het groen in de buurt kun je hier uitstekend een wandeling maken en kunnen kinderen zich hier heerlijk uitleven! Verscholen tussen de huizen zijn er veel speelvelden met bomen als natuurlijke schaduw te vinden. Voor meer speel- of wandelplezier kun je uitstekend terecht bij het ‘Hof van Seghwaert’, het ‘Seghwaertpark’ of ‘Seghwaertse Hout’ wat allemaal op korte afstand is te bereiken. Diverse scholen en kinderopvang zijn in de buurt te vinden. Ook voor winkels hoef je niet ver te zoeken. Winkelcentrum ‘Seghwaert’ en Winkelcentrum ‘Palenstein’ bieden volop aanbod voor de dagelijkse boodschappen. Uitgebreid shoppen kan in het ‘Stadshart’ dat binnen 10 minuten te bereiken is op de fiets of met ongeveer 5 minuten met de auto. De bereikbaarheid is uitstekend met zowel bushaltes als Randstadrail in de buurt. Uitvalswegen als de A12 richting Utrecht en Den Haag zijn bovendien snel te bereiken.

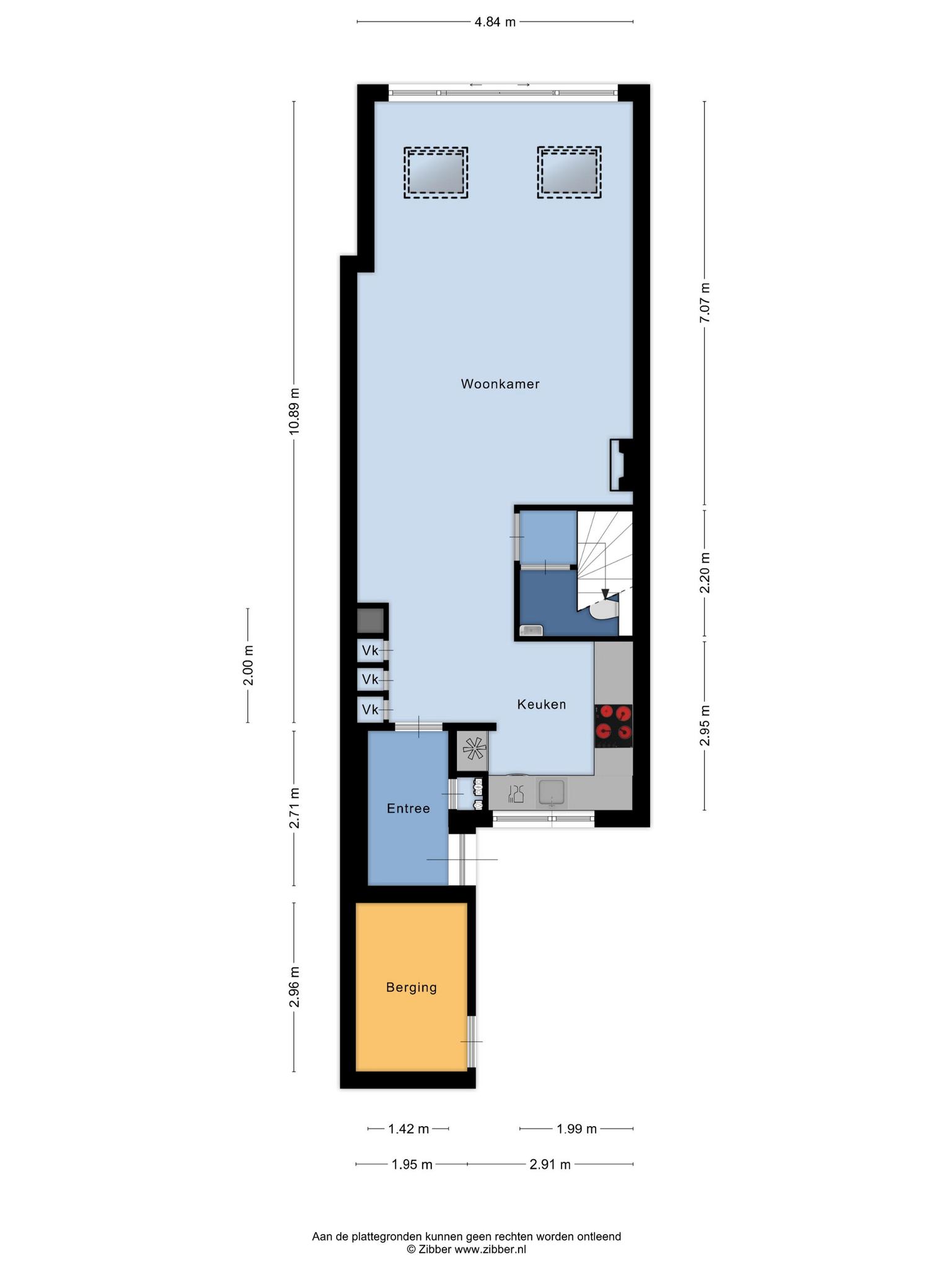
Begane grond:
Aan de voorzijde tref je een aangebouwde berging en een eigen parkeerplaats. Met het plaatsen van een laadpaal kun je hier uitstekend je eigen elektrische auto laden. De berging aan de voorzijde heeft door de hoogte een extra bergvliering in de nok. Via de entree kom je in de ruime hal met meterkast met 11 groepen en aardlekschakelaar.

Aan de voorzijde is er een moderne keuken (2016) met witte fronten en vernieuwd kunststof aanrechtblad (2022). De ruime keuken heeft een L-opstelling en beschikt over de volgende (inbouw)apparatuur:
– 6-pitsgasfornuis met dubbele oven
– Afzuigkap
– Koel-/vriescombinatie (los)
– Quooker
– Vaatwasser

De tuingerichte woonkamer is in 2023 uitgebouwd en compleet vernieuwd! Zo is er comfortabele vloerverwarming aangebracht met daarboven een schitterende visgraat parketvloer, is de toegang naar de hal bekleed met fraaie houten latten en zijn de overige wanden voorzien van stucwerk. In de koude wintermaanden kun je heerlijk gebruik maken van de sfeervolle openhaard die strak is afgewerkt. Door de 3 meter diepe uitbouw is de woonkamer zeer royaal te noemen en daardoor ideaal voor gezinnen. Door de grote glazen achterpui komt het buitengevoel echt naar binnen, zodat je ook binnen kunt genieten van de prachtige omgeving en de verschillende soorten vogels die voorbij komen vliegen. De dakkoepels en de grote achterpui met tripleglas zorgen voor veel lichtinval. In de tweede hal is er een trap naar de verdieping en een ruim en modern toilet met grijze hexagontegels, wandcloset en fontein.

Via de dubbele schuifpui is er toegang tot de ca. 14 meter diepe tuin op het Zuidwesten! Er is een heerlijk terras om te zitten en een stuk gras voor de kinderen om te spelen. Het achterste gedeelte van de tuin ligt wat lager. Hier hebben de eigenaren een overkapping met een buitenkeuken geplaatst, zodat je altijd droog kan barbecueën! Aan het eind van de tuin ligt een houten steiger voor nog meer tuinplezier en beleving van het water.

1e verdieping:
Via de vaste trap kom je op de overloop die toegang biedt tot alle vertrekken. Zowel aan de voor- als achterzijde is er een woningbrede slaapkamer. Hierdoor zijn de slaapkamers heel royaal. De slaapkamers zijn voorzien van gladde wandafwerking en een whitewash houten vloer. De slaapkamer aan de voorzijde beschikt over kunststof kozijnen met triple glas. De moderne badkamer is in 2020 vergroot en vernieuwd. De wanden van de badkamer zijn voorzien van stucwerk en grijze tegels en op de vloer ligt een warme houtlook tegelvloer en er is vloerverwarming in de badkamer. De badkamer is voorzien van een wandcloset, een groot wastafelmeubel met fraai boomstamblad en grote lades en een ruime inloopdouche met bankje, regendouche en een handdouche.

2e verdieping:
Via de 2e vaste trap kom je op de zolder. De huidige eigenaren hebben hier de ouderslaapkamer gemaakt. In de slaapkamer met grote dakkapel en parketvloer is er een vaste kastruimte en een extra werkplek gecreëerd. In deze kamer is ook een aparte ruimte met de c.v.-ketel. Aan de achterzijde zijn er nog 2 kamers. Op dit moment is 1 van de slaapkamers omgedoopt tot waskamer. Hier is een keukenblok met wasbak geplaatst met daaronder de wasapparatuur. De tweede slaapkamer is nu in gebruik als kastenkamer. Het is ook mogelijk om de zolder wat anders in te delen, zodat er zelfs een mogelijkheid bestaat voor het maken van 3 slaapkamers en een aparte was-/c.v.-ruimte. Zowel voor als achter kijk je fraai uit op groen.

Bijzonderheden:
– Royale, uitgebouwde hoekwoning met eigen parkeergelegenheid.
– De woning is vanaf 2016 in fases gemoderniseerd.
– Diepe tuin met steiger aan een waterpartij, gelegen op het zuidwesten.
– Grotendeels voorzien van kunststof kozijnen met deels triple glas en vloer, dak- en gevelisolatie.
– Op het dak liggen 7 zonnepanelen uit 2019.
– C.V.-ketel geinstalleerd in 2011.
– Energielabel B.

Interesse in deze woning? Schakel direct uw eigen NVM-aankoopmakelaar in. Uw NVM-aankoopmakelaar komt op voor uw belang en bespaart u tijd, geld en zorgen.
Adressen van collega NVM-aankoopmakelaars in de regio Alphen aan den Rijn en omgeving vindt u op Funda.

Deze informatie is met zorgvuldigheid samengesteld. Alle opgegeven maten en oppervlakten zijn indicatief. Mochten er onverhoopt onjuistheden staan vermeld dan wordt onzerzijds echter geen enkele aansprakelijkheid aanvaard voor onvolledigheid, onjuistheid of anderszins, dan wel de gevolgen daarvan.

  • 139 m2
  • 160 m2
  • 4

Kenmerken Pruimengaarde 51

Overdracht

Vraagprijs€ 515.000,- k.k.
AanvaardingIn overleg

Oppervlaktes en inhoud

Perceel oppervlakte160 m2
Woonoppervlakte139 m2
Inhoud473 m3

Bouw

SoortEengezinswoning
BouwvormBestaande bouw
Bouwjaar1977
Dak typeSamengesteld dak
IsolatievormenDakisolatie, Muurisolatie, Vloerisolatie, Dubbelglas, Driedubbel glas
EnergielabelB

Indeling

Aantal verdiepingen3
Aantal kamers6
Aantal slaapkamers4
Aantal badkamers1

Maandlasten

Ligging Pruimengaarde 51

Voorzieningen

Centraal gelegen informatie over de buurt

Aantal inwoners

In de gemeente

124.763

Vergelijkbaar woningaanbod