Ga naar inhoud

Te koop: appartement Oosterstraat 89 3134 NN Vlaardingen

De Witte Garantiemakelaars Vlaardingen
Neem contact met mij op

Verkocht o.v.

€ 275.000,- k.k.

Sfeervol wonen in de karakteristieke Oostwijk!

In de charmante Oostwijk bieden wij deze fraaie 3-kamer benedenwoning uit 1900 te koop aan. Een woning met karakter, hoge plafonds en verrassend veel ruimte — perfect voor starters of liefhebbers van sfeervol wonen!

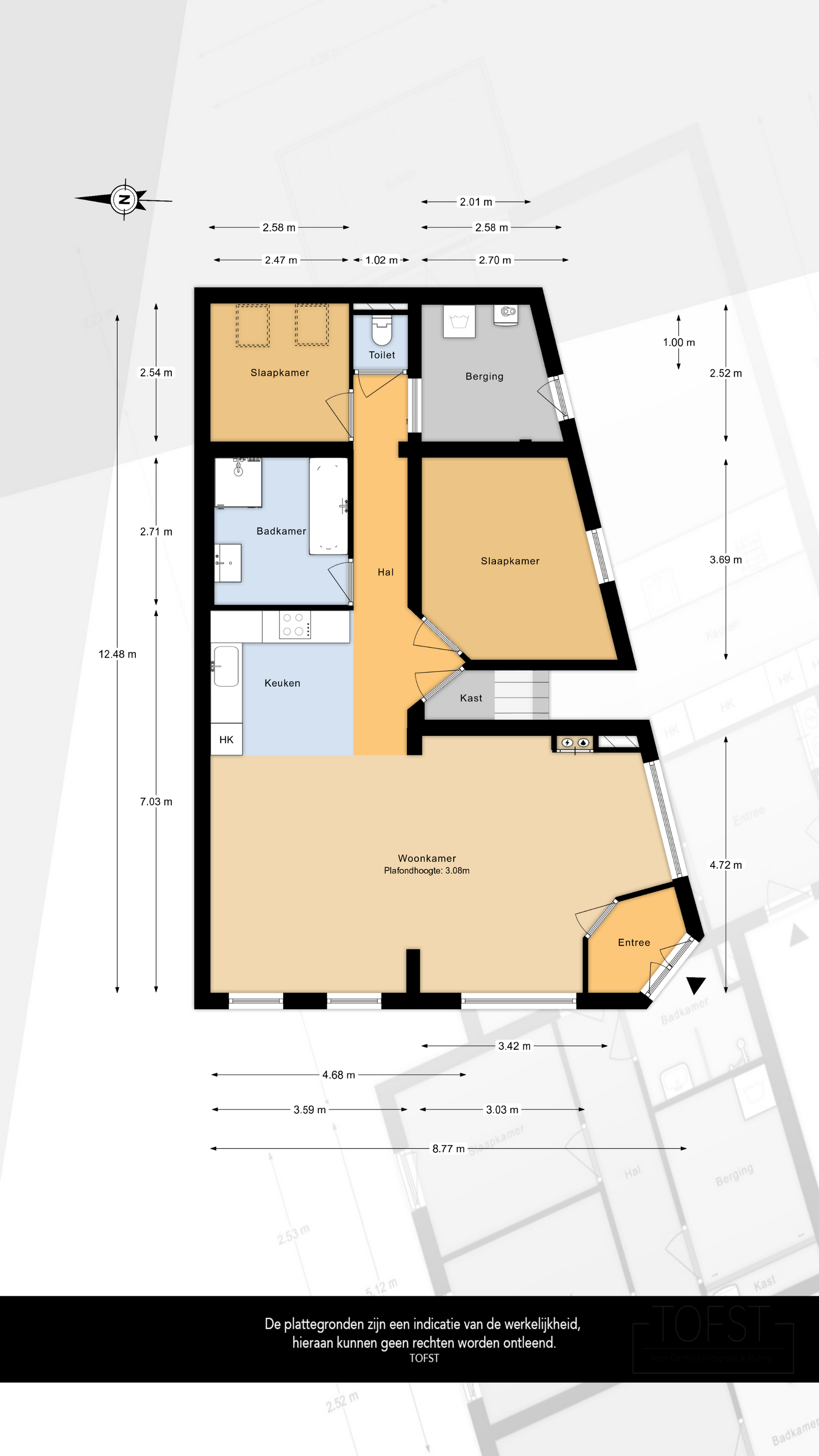
De royale woonkamer van maar liefst 42 m² met 3 meter hoge plafonds ademt licht en ruimte. De moderne open keuken met marmeren blad en complete inbouwapparatuur maakt koken hier een waar plezier. Via de gang bereikt u twee fijne slaapkamers en een ruime badkamer met inloopdouche, ligbad, modern wastafelmeubel en designradiator. Daarnaast is er een separaat toilet en een handige berging met plek voor wasmachine en droger.

De woning is goed onderhouden, grotendeels voorzien van kunststof kozijnen met dubbel glas en beschikt over centrale verwarming.

De ligging is ideaal: rustig, maar toch dichtbij alle voorzieningen. Op loopafstand vindt u winkels, horeca, theater, bioscoop en het zwembad. Ook de natuur is dichtbij met de Broekpolder en de Vlaardingse Vaart in de buurt. Metro, bus en uitvalswegen (A4 en A20) zorgen bovendien voor uitstekende verbindingen met Rotterdam, Delft en het strand van Hoek van Holland.

Kortom: een sfeervolle, instapklare benedenwoning op een ideale locatie. Kom snel kijken en ervaar zelf de charme van dit bijzondere huis!
Indeling
Dubbele deur als entree naar de woning, ontvangsthal met toegang tot de woonkamer.

Ruime woonkamer op een hoek, circa 42 m², voorzien van fraaie hoge plafonds en ramen aan beide zeiden waardoor er extra lichtinval is en 2 vaste kasten waarvan 1 met de meterkast.
Moderne open keuken met marmeren werkblad circa 6 m² voorzien van alle hedendaagse keukenapparatuur als een 4-pits inductie kookplaat met afzuigschouw, combi magnetron en voldoende kasten en lades voor bergruimte.

Ruime badkamer, circa 6.5 m,² voorzien van ligbad, douchecabine, wastafelmeubel met spiegel, design radiator en mechanische afzuiging.
Modern toilet met hangend closet.

Slaapkamer 1 circa 7.5 m².
Slaapkamer 2 circa 6.5 m² voorzien van 2 dakramen.

Inpandige berging circa 5 m² voorzien van cv-combiketel, wasmachine- en droger aansluiting en eigen ingang.

Bijzonderheden
– Fraaie 3 kamer benedenwoning;
– Woonoppervlakte 93 m² (gemeten middels meetinstructie);
– Gelegen op eigen grond;
– Royale woonkamer van 42 m² met ramen aan beide kanten waardoor er extra lichtinval is;
– Open keuken met marmeren blad en alle hedendaagse keukenapparatuur;
– Ruime badkamer voorzien van ligbad, douchecabine en wastafelmeubel met spiegel;
– 2 goede slaapkamers;
– Inpandige berging voor extra bergruimte met wasmachine opstelling en eigen ingang;
– De woning is goed onderhouden, geheel voorzien van dubbel glas, cv-combiketel uit 2022 met leasecontract (blijft) en energielabel C;
– In oprichting zijnde VvE bijdrage € 50 per maand;
– Ouderdomsclausule en niet bewoningsclausule zijn hier van toepassing;
– Ligging is centraal nabij het oude centrum met een uitgebreid winkelaanbod, theater, bioscoop, casino, zwembad en voldoende horeca;
– Openbaar vervoer als bus en metro op loopafstand om binnen 25 minuten in Rotterdam, Delft of Hoek van Holland strand uit te komen.

Overige
Huis kopen? Neem uw eigen NVM Aankoopmakelaar mee!
Download nu via www.dewittegarantiemakelaars.nl de brochure van deze woning.

Een daadwerkelijke koopovereenkomst komt pas tot stand nadat beide partijen de schriftelijke overeenkomst hebben ondertekend

Toelichtingsclausule NEN2580
De Meetinstructie is gebaseerd op de NEN2580. De Meetinstructie is bedoeld om een meer eenduidige manier van meten toe te passen voor het geven van een indicatie van de gebruiksoppervlakte. De Meetinstructie sluit verschillen in meetuitkomsten niet volledig uit, door bijvoorbeeld interpretatieverschillen, afrondingen of beperkingen bij het uitvoeren van de meting.

Nadrukkelijk zij vermeld, dat deze vrijblijvende informatieverstrekking niet als een aanbieding of een offerte mag worden beschouwd. Aan deze gegevens kunnen geen rechten worden ontleend.

  • 93 m2
  • 2

Kenmerken Oosterstraat 89

Overdracht

Vraagprijs€ 275.000,- k.k.
AanvaardingIn overleg

Oppervlaktes en inhoud

Woonoppervlakte93 m2
Inhoud340 m3

Bouw

SoortBenedenwoning
BouwvormBestaande bouw
Bouwjaar1900
Dak typeSamengesteld dak
IsolatievormenMuurisolatie, Grotendeels dubbelglas
EnergielabelC

Indeling

Aantal verdiepingen1
Aantal kamers3
Aantal slaapkamers2
Aantal badkamers1

Maandlasten

Ligging Oosterstraat 89

Voorzieningen

Centraal gelegen informatie over de buurt

Aantal inwoners

In de gemeente

71.999

Leeftijd

in percentages van totaal

Huishoudsamenstelling

in percentages van totaal

44%

20% NL

24%

20% NL

32%

20% NL

Vergelijkbaar woningaanbod