€ 525.000,- k.k.
Vrijstaande woning met inpandige garage gelegen in de rustig en bosrijke woonwijk Zandmeer in Smilde.
Een ideale plek voor wie houdt van ruimte, rust en groen. Dankzij de ligging aan een doodlopende straat, geniet je hier van een heerlijke en veilige woonomgeving met volop privacy.
Kenmerken:
– bouwjaar 1981;
– woonoppervlakte 193 m²;
– perceeloppervlakte 1.344 m²;
– provisiekelder aanwezig;
– levensloopbestendige woning.
Indeling
Begane grond:
Via de entree met trapopgang en toilet bereik je de woonkamer. De woonkamer beschikt over een houtkachel en een aangebouwde erker, die zorgt voor veel lichtinval en toegang tot het terras. De dichte keuken grenst aan de bijkeuken, die toegang biedt via een vaste trap naar de provisiekelder. Vanuit de bijkeuken is tevens de royale inpandige garage (ca. 3,5 × 8 m) bereikbaar, voorzien van elektra en een vliering. Daarnaast bevindt zich op de begane grond een slaapkamer met aangrenzend een badkamer, die voorzien is van een ligbad, douche en wastafel.
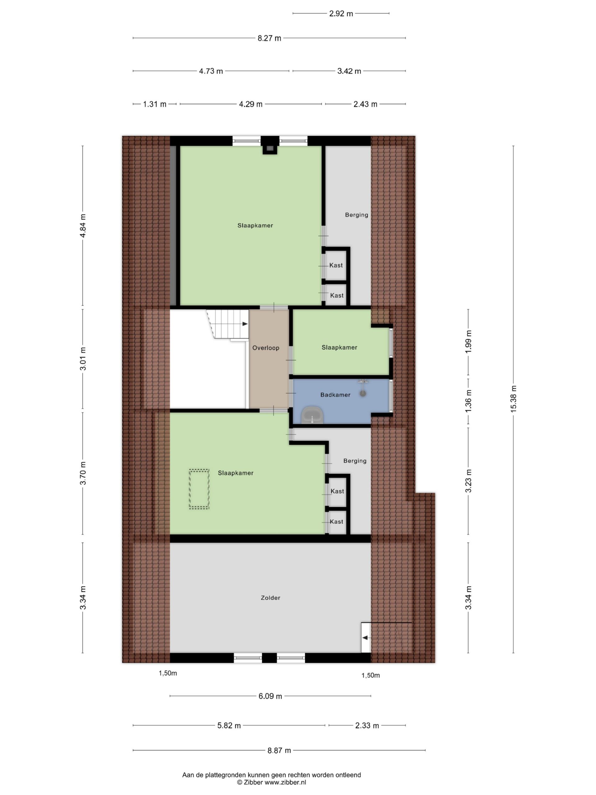
Verdieping:
De fraaie vide zorgt voor een ruimtelijk effect. De eerste verdieping beschikt over drie slaapkamers en een tweede badkamer die is voorzien van een douche en wastafel.
Vliering
De vliering is bereikbaar via vaste trap via garage.
De tuin rondom biedt volop privacy en is gunstig gelegen op het westen. Hier is ruimte genoeg voor bijvoorbeeld een moestuin, speelgelegenheid of meerdere terrassen, kortom een heerlijke plek om al je wensen te realiseren.
Bijzonderheden:
– inpandige garage met elektrische deur en vliering;
– 12 zonnepanelen;
– verwarming via Intergas cv-ketel (2015) + Brink heteluchtverwarming;
– twee badkamers;
– levensloopbestendige indeling;
– rustige ligging aan doodlopende straat.
Ligging en omgeving
Smilde is een levendig dorp in de gemeente Midden-Drenthe, met winkels, scholen, sportfaciliteiten en horeca binnen handbereik. De natuur begint letterlijk om de hoek: bossen, weides en wandel- en fietsroutes liggen op loopafstand. Hier woon je landelijk, maar met de stad Assen op korte afstand.
- 193 m2
- 1.344 m2
- 4
Kenmerken Zandmeer 4
Overdracht
| Vraagprijs | € 525.000,- k.k. |
|---|---|
| Aanvaarding | In overleg |
Oppervlaktes en inhoud
| Perceel oppervlakte | 1.344 m2 |
|---|---|
| Woonoppervlakte | 193 m2 |
| Inhoud | 872 m3 |
Bouw
| Soort | Eengezinswoning |
|---|---|
| Bouwvorm | Bestaande bouw |
| Bouwjaar | 1981 |
| Dak type | Zadeldak |
| Isolatievormen | Dakisolatie, Muurisolatie, Gedeeltelijk dubbelglas |
| Energielabel | C |
Indeling
| Aantal verdiepingen | 3 |
|---|---|
| Aantal kamers | 7 |
| Aantal slaapkamers | 4 |
| Aantal badkamers | 2 |
Maandlasten
Ligging Zandmeer 4
Voorzieningen
Centraal gelegen informatie over de buurt
Aantal inwoners
In de gemeente
33.399