Ga naar inhoud

Te koop: appartement Regentesselaan 351B 2562 ED 's-Gravenhage

Beschikbaar

Bezichtiging plannen

€ 300.000,- k.k.

Charmant en recent gerenoveerd topappartement op de derde verdieping van een karakteristiek drielaags bovenhuis. Dit schitterende 3-kamerappartement ligt op een uitstekende locatie in het populaire Regentessekwartier, met zowel de Weimarstraat als de Fahrenheitstraat op loopafstand.

De locatie in het Regentessekwartier is ideaal, op loopafstand van het levendige Regentesseplein en de vele winkels in de Weimarstraat. Bovendien is het appartement gunstig gelegen ten opzichte van het centrum, het strand van Scheveningen, diverse scholen en het openbaar vervoer.

Vanwege de aangebrachte energiebesparende maatregelen beschikt deze woning over een gunstig energielabel A.

Indeling:
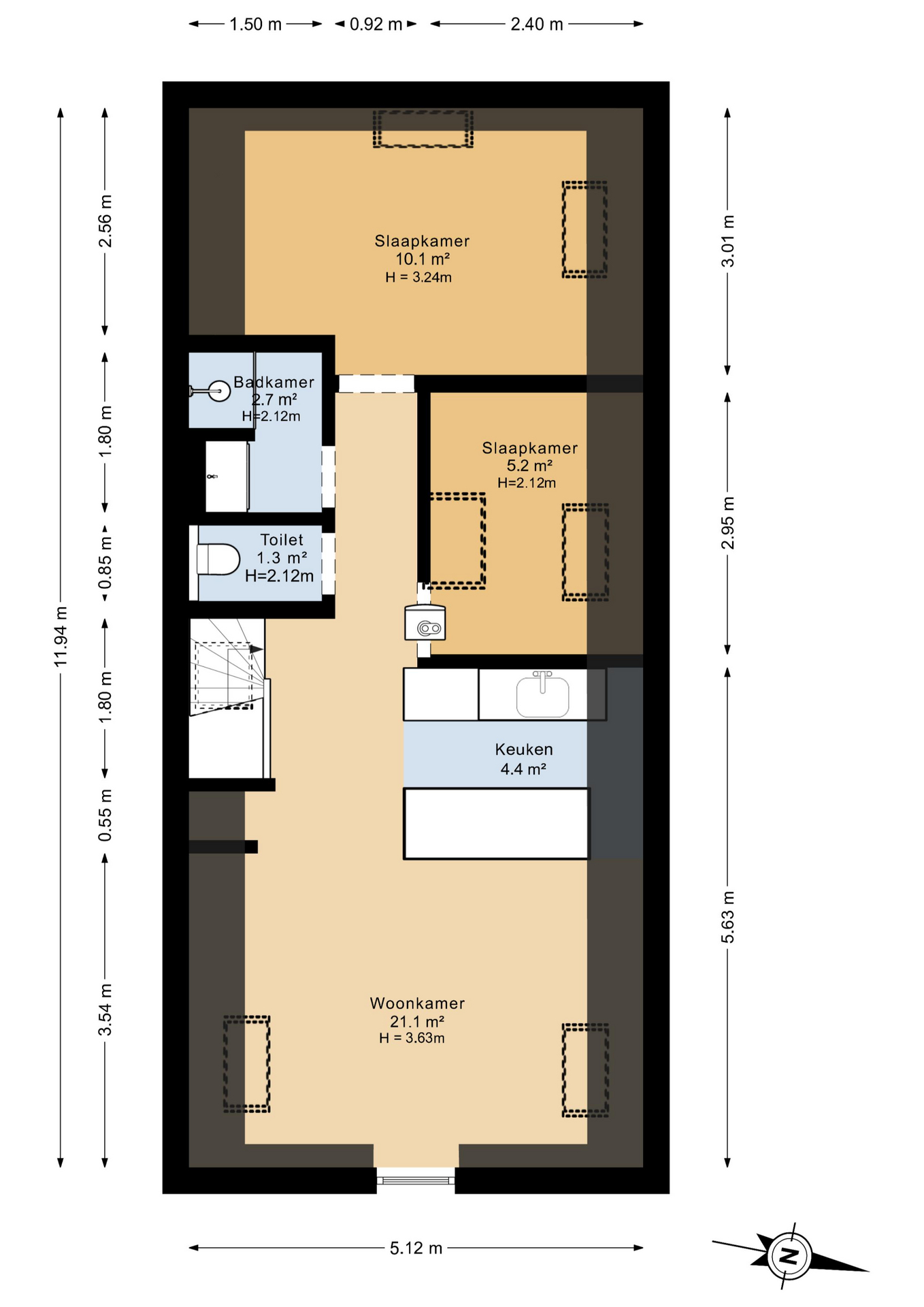
Gezamenlijke entree op de begane grond, trap naar de tweede etage, eigen entree, trap naar de derde etage, entree ruime woonkamer. De nieuwe luxe open keuken is voorzien van Siemens inductiekookplaat met ingebouwde afzuiging, koelkast, vriezer en combioven. De moderne tussengelegen badkamer is voorzien van fraai tegelwerk, ruime douche, wastafel met meubel en een verlichte spiegel. Aan de achterzijde de rustig gelegen slaapkamer van ca. 10 m², welke door de raampartijen is voorzien van een gunstig lichtinval. Tussen gelegen de tweede slaapkamer, welke ideaal zou kunnen dienen als werkkamer.

Aanvullende informatie:
– ’s-Gravenhage sectie Y nummer 2422 A-5
– ca. 51m² woonoppervlak conform BBMI
– Eigen grond
– Bouwjaar 1896
– Energielabel A
– Gemeentelijk beschermd stadsgezicht
– 47/300e aandeel in de VvE
– Maandelijkse VvE bijdrage € 44,65
– Maandelijks voorschot € 117,03 (water, gas, elektra en onderhoud CV)
– Volledig voorzien van dubbele beglazing
– Algemene verkoopvoorwaarden Plink NVM Garantiemakelaars van toepassing
– Ouderdoms-, materialen- en niet-bewoningsclausule van toepassing
– Projecnotaris van toepassing
– Oplevering kan indien gewenst snel

  • 51 m2
  • 2

Kenmerken Regentesselaan 351B

Overdracht

Vraagprijs€ 300.000,- k.k.
AanvaardingIn overleg

Oppervlaktes en inhoud

Woonoppervlakte51 m2
Inhoud175 m3

Bouw

SoortBovenwoning
BouwvormBestaande bouw
Bouwjaar1896
IsolatievormenDubbelglas
EnergielabelA

Indeling

Aantal verdiepingen1
Aantal kamers3
Aantal slaapkamers2
Aantal badkamers1

Maandlasten

Ligging Regentesselaan 351B

Voorzieningen

Centraal gelegen informatie over de buurt

Aantal inwoners

In de gemeente

524.882

Leeftijd

in percentages van totaal

Huishoudsamenstelling

in percentages van totaal

57%

20% NL

20%

20% NL

23%

20% NL