Ga naar inhoud

Te koop: appartement Noordplein 9 6581 WL Malden

Beschikbaar

Bezichtiging plannen

€ 400.000,- k.k.

Gelegen op de eerste woonlaag van “Het Kapitoor” bevindt zich dit moderne appartement.

Het complex, waar het gezondheidscentrum van Malden op de begane grond deel van uitmaakt, kenmerkt zich door een fraaie architectuur, terwijl bij het ontwerp en de bouw luxe, comfort, veiligheid en privacy een grote rol hebben gespeeld. Het appartement grenst direct aan de prachtige, riante daktuin die het speciale karakter van dit complex onderstreept.

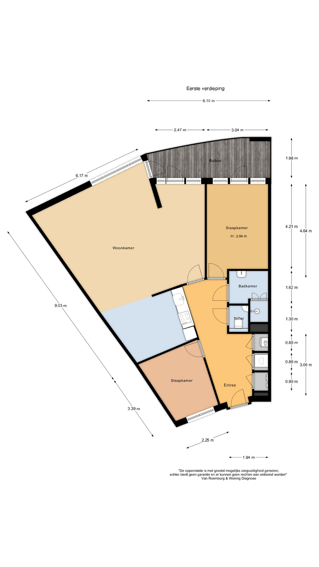
Deze woning is een mooi 3 kamer appartement met een bruto-oppervlakte van 96 m2, een loggia, een inpandige privé berging, een gemeenschappelijke fietsenberging en een eigen parkeerplaats in de afgesloten en met de lift te bereiken parkeergarage.

Indeling: Entree/hal met meterkast, wasmachine en droger ruimte, toilet, cv-ruimte, 2 slaapkamers, ruime woonkamer (39 m2) met een moderne open keuken (10 m2), een loggia op het oosten van 10 m2, badkamer met inloopdouche en wastafelmeubel met wastafel.

Dit fraaie appartement is centraal in het centrum gelegen nabij het winkelcentrum, vele voorzieningen, bos, heide, golfbaan en A73. Binnen 10 minuten bent u bovendien per auto of bus in het centrum van Nijmegen. De woning is verder onder meer voorzien van verwarming via vloerverwarming en warmwater via de c.v.-ketel, mechanische ventilatie, lift en videofooninstallatie.

Bouwjaar 2009. Inhoud ca. 309 m³. Woonoppervlakte (excl. buitenruimte) 96 m²

  • 96 m2
  • 2

Kenmerken Noordplein 9

Overdracht

Vraagprijs€ 400.000,- k.k.
AanvaardingIn overleg

Oppervlaktes en inhoud

Woonoppervlakte96 m2
Inhoud309 m3

Bouw

SoortPortiekflat
BouwvormBestaande bouw
Bouwjaar2008
Dak typePlat dak
IsolatievormenMuurisolatie, Vloerisolatie, Dubbelglas
EnergielabelA

Indeling

Aantal verdiepingen1
Aantal kamers3
Aantal slaapkamers2
Aantal badkamers1

Maandlasten

Ligging Noordplein 9

Voorzieningen

Centraal gelegen informatie over de buurt

Aantal inwoners

In de gemeente

16.475

Leeftijd

in percentages van totaal

Huishoudsamenstelling

in percentages van totaal

29%

20% NL

36%

20% NL

34%

20% NL

Vergelijkbaar woningaanbod