€ 239.500,- k.k.
Loop jij hier ook de deur uit met het gevoel: ‘Liefde op het eerste gezicht!’
Deze sfeervolle binnenstadswoning is helemaal af en klaar voor de nieuwe bewoner(s). Wat een plaatje!
In 2023 en 2024 is de gehele woning gerenoveerd. Met een moderne en strakke keuken, prachtige badkamer, twee ruime slaapkamers en een heerlijk plaatsje is het hier heerlijk wonen in de gezellige binnenstad van Kampen. Met het stadspark op een steenworp afstand en aan de rand van de historische binnenstad is dit een heel fijn plekje. Je bent zo in of juist uit de stad!
Het oorspronkelijke bouwjaar gaat terug naar begin 1900. Sfeer en gezelligheid voeren hier de boventoon en naast de 2 ruime slaapkamers op de verdieping in er nog een ruime bergzolder. Dat je hier een binnenplaatsje aan de achterzijde hebt, en dus je eigen ‘buiten’, is helemaal een pluspunt!
Het perceel is 46 m2 groot, de woning is bijna geheel voorzien van dubbel/ HR glas en verwarming is middels CV-combiketel 2017. Vanaf 2023 is de woning door de huidige eigenaar helemaal gerenoveerd en je ziet het: instapklaar!
Indeling:
Begane grond: entree/ hal – woonkamer met open keuken – trapopgang met trapkast met wasmachine aansluiting – badkamer (2024) met inloopdouche, toilet en wastafelmeubel – toegang tot de plaats. De strakke keuken (2024) is voorzien van een koelkast, vriezer, combimagnetron, vaatwasser en inductiekookplaat met afzuigkap
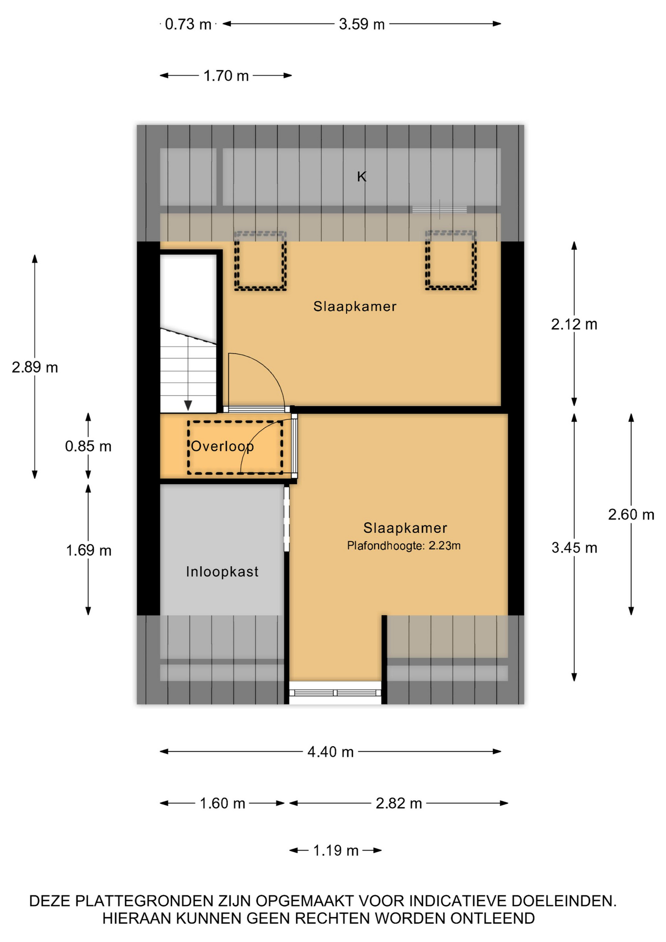
1e Verdieping: overloop – twee ruime slaapkamers met dakramen. Eén slaapkamer heeft een walk-incloset.
2e Verdieping: middels vlizotrap te bereiken bergzolder.
Wetenswaardigheden en pluspunten:
Bouwjaar: circa 1895, gerenoveerd in 2023/ 2024
Perceeloppervlakte : 46 m2
Plaats: ca. 9 m2 op het zuidoosten
Isolatie: HR glas (behoudens tuindeur)
Verwarming en warm water: CV-combiketel Intergas 2017
Moderne keuken en badkamer uit 2024
Binnenplaats op het zuidoosten
Parkeren met vergunning (in de omgeving zijn er ook andere opties)
Helemaal instapklaar!
- 52 m2
- 46 m2
- 2
Kenmerken Uiterwijksteeg 5
Overdracht
| Vraagprijs | € 239.500,- k.k. |
|---|---|
| Aanvaarding | In overleg |
Oppervlaktes en inhoud
| Perceel oppervlakte | 46 m2 |
|---|---|
| Woonoppervlakte | 52 m2 |
| Inhoud | 212 m3 |
Bouw
| Soort | Eengezinswoning |
|---|---|
| Bouwvorm | Bestaande bouw |
| Bouwjaar | 1895 |
| Dak type | Zadeldak |
| Isolatievormen | Gedeeltelijk dubbelglas, HR glas |
| Energielabel | F |
Indeling
| Aantal verdiepingen | 3 |
|---|---|
| Aantal kamers | 3 |
| Aantal slaapkamers | 2 |
| Aantal badkamers | 1 |
Maandlasten
Ligging Uiterwijksteeg 5
Voorzieningen
- Monseigneur Zwijsen-School 582 m Oudestraat 244 KAMPEN
- Theologische Universiteit van de Gereformeerde Kerk (Vrijg) in Nederland 92 m Broederweg 15 KAMPEN
- Hoornbeeck College 2 km W Hendrik Zwartallee 1 KAMPEN
- Christelijke Hogeschool Windesheim 13 km Campus 2 ZWOLLE
- Theologische Universiteit van de Gereformeerde Kerk (Vrijg) in Nederland 92 m Broederweg 15 KAMPEN
Centraal gelegen informatie over de buurt
Aantal inwoners
In de gemeente
52.511
Leeftijd
in percentages van totaal
Huishoudsamenstelling
in percentages van totaal
58%
20% NL
25%
20% NL
17%
20% NL