Ga naar inhoud

Te koop: woonhuis Witbol 2 7908 RA Hoogeveen

Beschikbaar

Bezichtiging plannen

€ 720.000,- k.k.

Aan de rustige en groene Witbol 2 in Hoogeveen staat deze ruime, onder architectuur gebouwde en goed onderhouden vrijstaande woning met slaap- en badkamer op de begane grond, een lichte en royale woonkamer, twee slaapkamers op de eerste verdieping en een verzorgde tuin rondom. Met energielabel A, 14 zonnepanelen en volledig voorzien van kunststof kozijnen is dit een ideale woning voor wie energiezuinig en gelijkvloers wil wonen zonder in te leveren op ruimte en gemak.

PLUSPUNTEN:
– Slapen en baden op de begane grond;
– Twee ruime slaapkamers op de eerste verdieping;
– Royale woonkamer met houtkachel en veel lichtinval;
– Volledig voorzien van kunststof kozijnen;
– 14 zonnepanelen;
– Gelegen in een rustige, groene woonwijk.

INDELING:
Begane grond: Entree met trapopgang, toilet met fontein, meterkast. Lichte eetkamer, half open keuken met inbouwapparatuur (o.a. koelkast, vriezer, vaatwasser, oven, inductie kookplaat), voorraadkast. Royale woonkamer met houtkachel, aan beide zijden twee terrasdeuren. Slaapkamer met vaste kast, terrasdeuren en aangrenzende badkamer voorzien van ligbad, inloopdouche, dubbele wastafel en toilet. Garage met kanteldeur, witgoedaansluitingen en achterom.

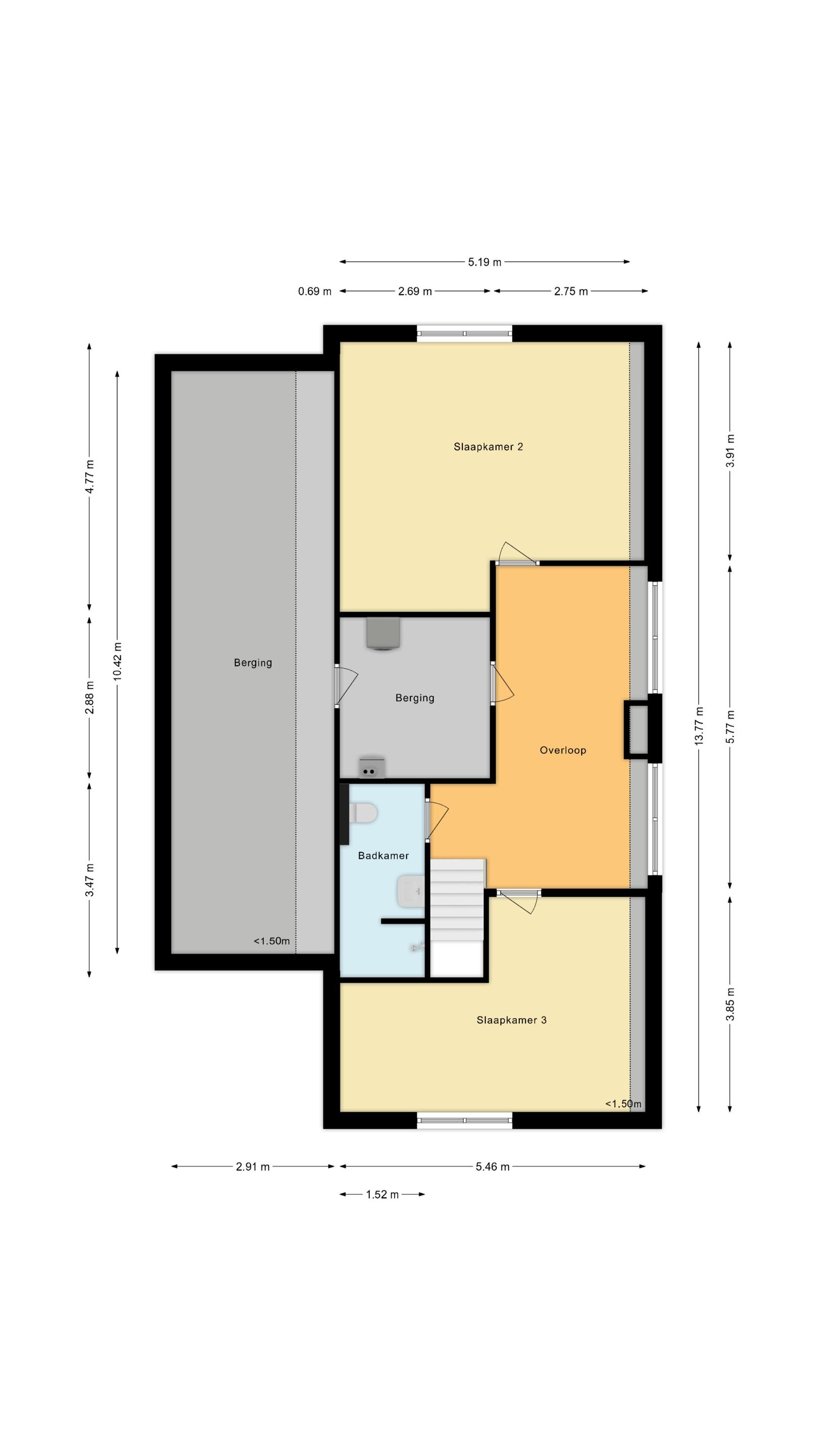
Eerste verdieping: Lichte overloop. Twee ruime slaapkamers. Badkamer voorzien van inloopdouche, toilet en wastafel. Berging/wasruimte met cv-installatie, omvormer en wasmachineaansluiting, extra opbergruimte.

BUITENRUIMTE:
De woning ligt op een ruim perceel met een verzorgde tuin rondom. Dankzij de meerdere terrassen is er altijd een plekje in de zon of schaduw te vinden. Eén van de terrassen is voorzien van een buiten barbecue, perfect voor lange zomeravonden. De oprit met overkapping biedt plaats aan meerdere auto’s.

LOCATIE:
De woning is gelegen in een rustige en geliefde woonwijk in Hoogeveen, waar groen en ruimte centraal staan. Binnen enkele minuten bereik je diverse supermarkten, scholen, sportaccommodaties en het winkelcentrum De Weide. Ook het gezellige centrum van Hoogeveen met zijn winkels, restaurants, theater en bioscoop ligt op korte afstand. Dankzij de gunstige ligging nabij de A28 en N48 zijn omliggende plaatsen als Meppel, Assen en Zwolle bovendien uitstekend bereikbaar.

KENMERKEN & BIJZONDERHEIDEN:
– Bouwjaar: 1994;
– Energielabel A;
– HR combiketel uit 2018;
– Gedeeltelijk voorzien van vloerverwarming;
– Woonkamer voorzien van airconditioning;
– In de koopakte wordt een “niet-zelfbewoning- en ouderdomsclausule” opgenomen;
– Scholten & Wilmink notarissen in Hoogeveen is aangesteld als projectnotaris;
– Aanvaarding op korte termijn mogelijk.

Benieuwd naar de mogelijkheden? Plan gerust een bezichtiging in via 0528-262191 / hoogeveen@hup-fidom.nl!

  • 202 m2
  • 627 m2
  • 3

Kenmerken Witbol 2

Overdracht

Vraagprijs€ 720.000,- k.k.
AanvaardingIn overleg

Oppervlaktes en inhoud

Perceel oppervlakte627 m2
Woonoppervlakte202 m2
Inhoud782 m3

Bouw

SoortEengezinswoning
BouwvormBestaande bouw
Bouwjaar1994
Dak typeZadeldak
IsolatievormenDakisolatie, Muurisolatie, Vloerisolatie, Dubbelglas, Volledig geïsoleerd
EnergielabelA

Indeling

Aantal verdiepingen2
Aantal kamers4
Aantal slaapkamers3
Aantal badkamers2

Maandlasten

Ligging Witbol 2

Voorzieningen

Centraal gelegen informatie over de buurt

Aantal inwoners

In de gemeente

55.311

Vergelijkbaar woningaanbod