€ 685.000,- k.k.
Sfeervolle jaren ’30 gezinswoning met 5 slaapkamers in geliefd Haarlem-Noord
Op een fijne locatie in een groene, kindvriendelijke buurt met alles binnen handbereik. Zo zijn de supermarkt, warme bakker, diverse sportverenigingen, scholen en het Schoterpark binnen loopafstand.
Een heerlijk huis met originele details, vijf slaapkamers en een prima achtertuin mét achterom.
Naast het winkelcentrum voor al uw dagelijkse boodschappen bevinden er vele voorzieningen om de hoek. Voor ontspanning in de natuur zijn Noorder Sportpark, het Nationaal Park Zuid-Kennemerland en de Hekslootpolder een ideale uitvalsbasis. De sportieve woning zoeker hoeft ook niet ver te fietsen met sportscholen, zwembad De Planeet, tennisbanen en voetbalvelden in de directe nabijheid.
Voor gezinnen met kinderen is de omgeving perfect: er zijn speelvoorzieningen, diverse basisscholen, middelbare scholen, kinderopvanglocaties en sportverenigingen op een steenworp afstand. De bereikbaarheid tot slot is meer dan goed te noemen. Zo stopt de bus naar het station bijna voor de deur en zijn uitvalswegen naar o.a. Amsterdam, Alkmaar en Schiphol snel bereikbaar.
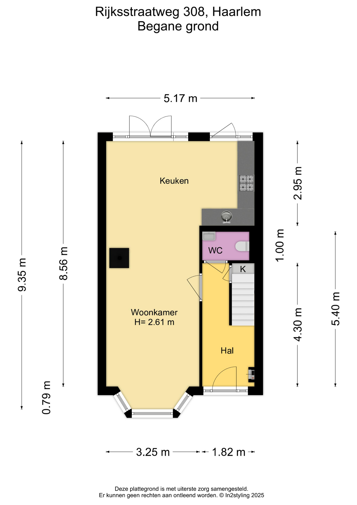
Begane grond
Via de voortuin bereikt u de entree. De hal biedt toegang tot een royaal toilet met fontein, trapkast en een lichte, sfeervolle woonkamer met fraaie visgraat vloer, authentieke erker voorzien van glas-in-loodramen en een gezellige houtkachel. De openslaande deuren brengen je naar de zonnige achtertuin met achterom. De eenvoudige doch praktische keuken beschikt over diverse inbouwapparatuur.
Eerste verdieping
De overloop leidt naar drie goed bemeten slaapkamers, waarvan de masterbedroom met openslaande deuren toegang geeft tot het balkon. De moderne en luxe badkamer is voorzien van een wastafelmeubel, vloerverwarming, ligbad, inloopdouche en toilet.
Tweede verdieping
Op zolder vind je een ruime overloop met dakraam, aansluitingen voor de wasmachine en veel bergruimte. Tevens zijn er twee zolderkamers met dakkapel, perfect als slaapkamer, werkkamer of hobbyruimte.
Bijzonderheden:
– Authentieke jaren ’30 sfeer met moderne elementen
– Maar liefst vijf slaapkamers
– Verzorgde en zonnige achtertuin met achterom
– Nabij winkelcentrum Marsmanplein en diverse uitvalswegen
– Heerlijk gezinshuis met veel licht en ruimte
– Oplevering in overleg
– Absoluut een bezichtiging waard!
Wonen in Haarlem-Noord betekent comfort, karakter en centrale ligging. Laat je verrassen door de ruimte en sfeer van dit heerlijke gezinshuis!
- 121 m2
- 136 m2
- 5
Kenmerken Rijksstraatweg 308
Overdracht
| Vraagprijs | € 685.000,- k.k. |
|---|---|
| Aanvaarding | In overleg |
Oppervlaktes en inhoud
| Perceel oppervlakte | 136 m2 |
|---|---|
| Woonoppervlakte | 121 m2 |
| Inhoud | 423 m3 |
Bouw
| Soort | Eengezinswoning |
|---|---|
| Bouwvorm | Bestaande bouw |
| Bouwjaar | 1934 |
| Dak type | Zadeldak |
| Isolatievormen | Dakisolatie, Muurisolatie, Dubbelglas |
| Energielabel | C |
Indeling
| Aantal verdiepingen | 3 |
|---|---|
| Aantal kamers | 6 |
| Aantal slaapkamers | 5 |
| Aantal badkamers | 1 |
Maandlasten
Ligging Rijksstraatweg 308
Voorzieningen
- Rooms katholiek Basisschool St Bavo 98 m Eemstraat 15 HAARLEM
- Hogeschool IPABO Amsterdam Alkmaar 14 km Jan Tooropstraat 136 AMSTERDAM
- ROC Nova College 867 m Planetenlaan 5 HAARLEM
- Hogeschool IPABO Amsterdam Alkmaar 14 km Jan Tooropstraat 136 AMSTERDAM
- Universiteit van Amsterdam 17 km Spui 21 AMSTERDAM
Centraal gelegen informatie over de buurt
Aantal inwoners
In de gemeente
159.229