€ 495.000,- k.k.
Klaar om te wonen in een huis dat letterlijk boven de rest uitstijgt? Deze unieke drive-in tussenwoning in Alkmaar is allesbehalve standaard. Dankzij de aangepaste voorgevel wijkt deze woning duidelijk af van de overige woningen in de rij en springt hij direct in het oog. Voeg daar het bijzondere balkon aan de voorzijde aan toe en je weet: dit is er zo één die je maar zelden tegenkomt. De woning is volledig en hoogwaardig verbouwd en lijkt in niets meer op de andere woningen in de buurt. Met 18 zonnepanelen, vloerverwarming (met uitzondering van de tweede etage, waar alleen de badkamer is voorzien), verrassend veel ruimte, meerdere badkamers en geen achterburen is dit een woning die vrijheid, comfort en karakter perfect combineert.
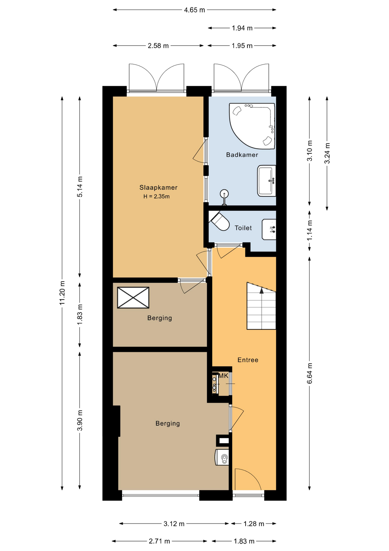
De parterre verwelkomt je met een diepe entree en de trapopgang naar de eerste etage. Praktisch en ruim opgezet, met een inpandig bereikbare berging die ideaal is voor fietsen, opslag of hobby’s. Aan de achterzijde bevindt zich een royale slaapkamer met openslaande deuren naar de achtertuin op het oosten. Hier geniet je van de ochtendzon én van volledige privacy, want achterburen ontbreken. De badkamer en-suite is comfortabel en luxe ingericht met een whirlpool, wastafel en douche en is bovendien voorzien van vloerverwarming. De badkamer beschikt eveneens over openslaande deuren naar de achtertuin, wat zorgt voor een prettig binnen-buiten gevoel. Daarnaast is er op deze verdieping een separaat toilet. De parterre is verder voorzien van comfortabele vloerverwarming.
De eerste etage vormt het kloppend hart van de woning en is een absolute blikvanger. Deze verdieping bestaat uit één grote, open leefruimte en is daarmee compleet anders ingedeeld dan de overige woningen in de straat. De woonkamer is ruim, licht en sfeervol, met een open haard en indrukwekkende ramen over de volledige breedte én hoogte van de verdieping. Het daglicht stroomt hier rijkelijk naar binnen en versterkt het open en loftachtige gevoel. Centraal in de ruimte bevindt zich de keuken, voorzien van diverse inbouwapparatuur en perfect gepositioneerd als verbindende schakel tussen koken, wonen en eten. Aan de voorzijde ligt de eetkamer, waar een schuifpui toegang geeft tot het unieke balkon. Een heerlijke plek om buiten te zitten en tegelijk een element dat deze woning, mede dankzij de aangepaste gevel, écht onderscheidt van de rest van de straat. Ook deze verdieping is volledig voorzien van vloerverwarming.
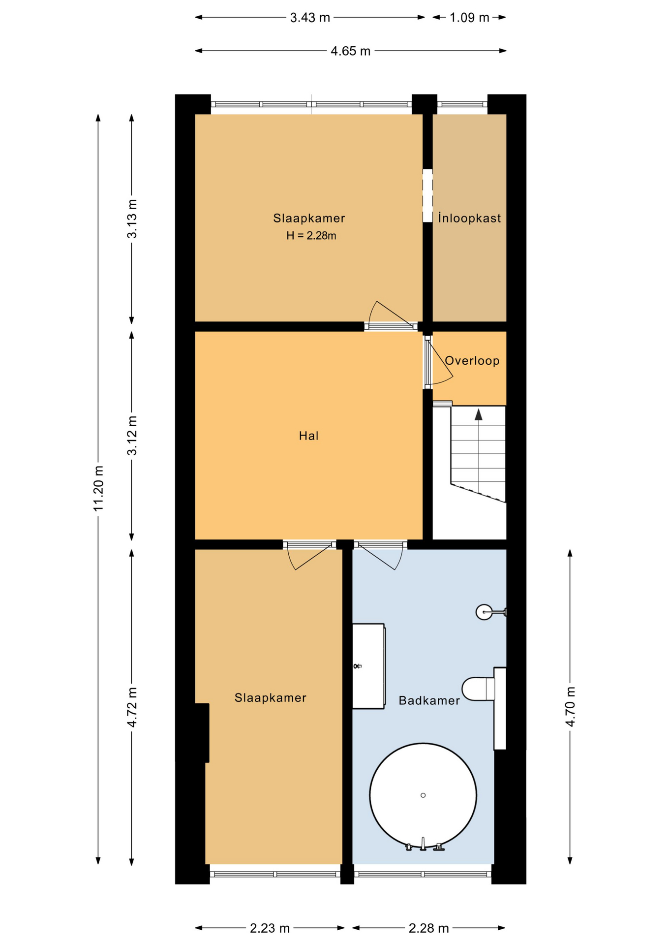
Via de trap in de woonkamer bereik je de tweede etage. Hier bevinden zich twee comfortabele slaapkamers, waarvan één is voorzien van een inloopkast. Ook deze verdieping beschikt over een eigen badkamer, uitgerust met een uniek rond ligbad, wastafelmeubel, douche, toilet en vloerverwarming. Ideaal voor gezinnen, gasten of wie gewoon houdt van extra luxe en gemak.
De woning is bovendien voorbereid op de toekomst dankzij de 18 zonnepanelen, wat zorgt voor een lagere energierekening en een duurzame woonomgeving.
Ook de ligging is een groot pluspunt. Het centrum van Alkmaar bereik je binnen 5 à 10 minuten, waar je volop winkels, horeca en culturele voorzieningen vindt. Voor ontspanning en groen hoef je eveneens niet ver te lopen: het stadspark ligt op slechts 4 minuten lopen. Daarnaast is er ruim openbaar vervoer aanwezig met uitstekende verbindingen naar omliggende steden. Werk je of leef je (deels) in de Randstad? Dan zit je hier eveneens goed: Amsterdam ligt op circa drie kwartier rijden, waardoor deze woning rust en ruimte combineert met uitstekende bereikbaarheid.
Kortom: een volledig verbouwde, opvallende drive-in woning met karakter, licht en privacy, een unieke open indeling en een voorgevel die je niet snel vergeet.
Onze makelaars leiden je graag rond in deze fraaie woning. Voor meer informatie en een goede indruk van de woning en de omgeving kijk je onze bezichtigingsvideo. Voor alle ins & outs kun je de brochure downloaden, hier tref je ook de lijst van roerende zaken en de vragenlijst van de woning. Tot snel!
PS. Ons nieuwe aanbod als eerste zien? Volg ons dan op Social Media, dan zit je pas eersterangs in de markt! Ons werkgebied beslaat een groot gebied in Noord-Holland. Benieuwd wat jouw huidige woning waard is? Onze makelaars komen graag bij je langs voor een vrijblijvend verkoopgesprek met gratis waardebepaling!
- 143 m2
- 132 m2
- 3
Kenmerken Stikkelwaard 168
Overdracht
| Vraagprijs | € 495.000,- k.k. |
|---|---|
| Aanvaarding | In overleg |
Oppervlaktes en inhoud
| Perceel oppervlakte | 132 m2 |
|---|---|
| Woonoppervlakte | 143 m2 |
| Inhoud | 490 m3 |
Bouw
| Soort | Eengezinswoning |
|---|---|
| Bouwvorm | Bestaande bouw |
| Bouwjaar | 1974 |
| Dak type | Plat dak |
| Isolatievormen | Dakisolatie, Muurisolatie, Vloerisolatie, Dubbelglas |
| Energielabel | A |
Indeling
| Aantal verdiepingen | 3 |
|---|---|
| Aantal kamers | 5 |
| Aantal slaapkamers | 3 |
| Aantal badkamers | 2 |
Maandlasten
Ligging Stikkelwaard 168
Voorzieningen
- Rooms Katholieke Basisschool De Regenboog 43 m Tochtwaard 14 ALKMAAR
- Hogeschool IPABO Amsterdam Alkmaar 31 km Jan Tooropstraat 136 AMSTERDAM
- Clusius College 187 m Drechterwaard 10 ALKMAAR
- Hogeschool IPABO Amsterdam Alkmaar 31 km Jan Tooropstraat 136 AMSTERDAM
- Universiteit van Amsterdam 32 km Spui 21 AMSTERDAM
Centraal gelegen informatie over de buurt
Aantal inwoners
In de gemeente
108.373
Leeftijd
in percentages van totaal
Huishoudsamenstelling
in percentages van totaal
40%
20% NL
27%
20% NL
33%
20% NL