€ 185.000,- k.k.
- Home>
- Bedrijfspanden>
- Koop Bovenkarspel Hoofdstraat 289a
Ben jij ondernemer en op zoek naar een meer dan geschikte locatie, of een vervend hobbyist die geen project kan afslaan? Dan is deze bedrijfsruimte c.q. loods in het verzamelgebouw aan de Hoofdstraat in Bovenkarspel meer dan geschikt voor jou!
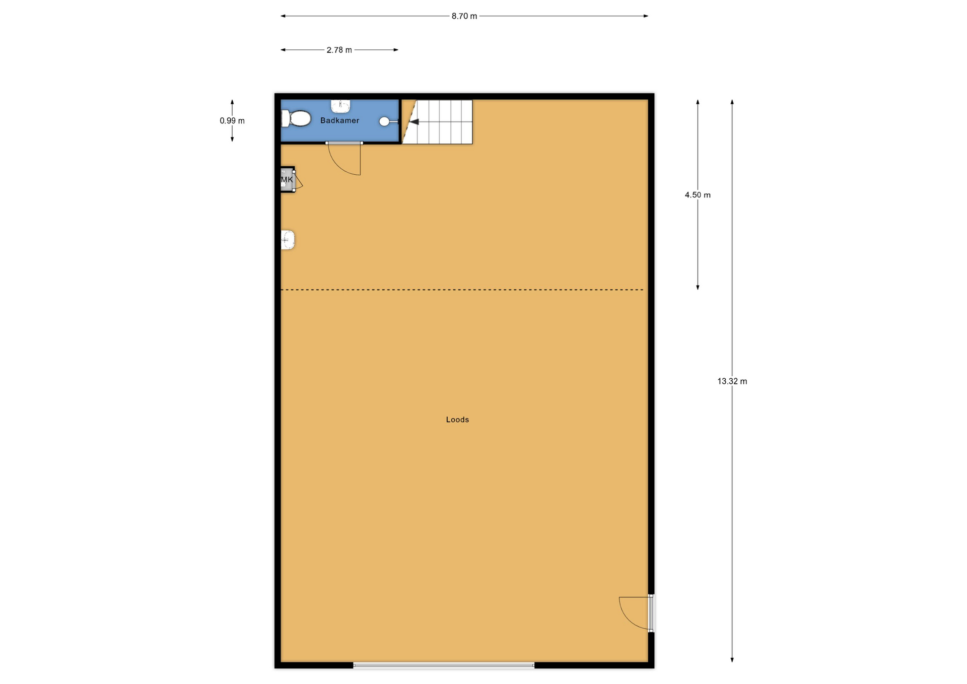
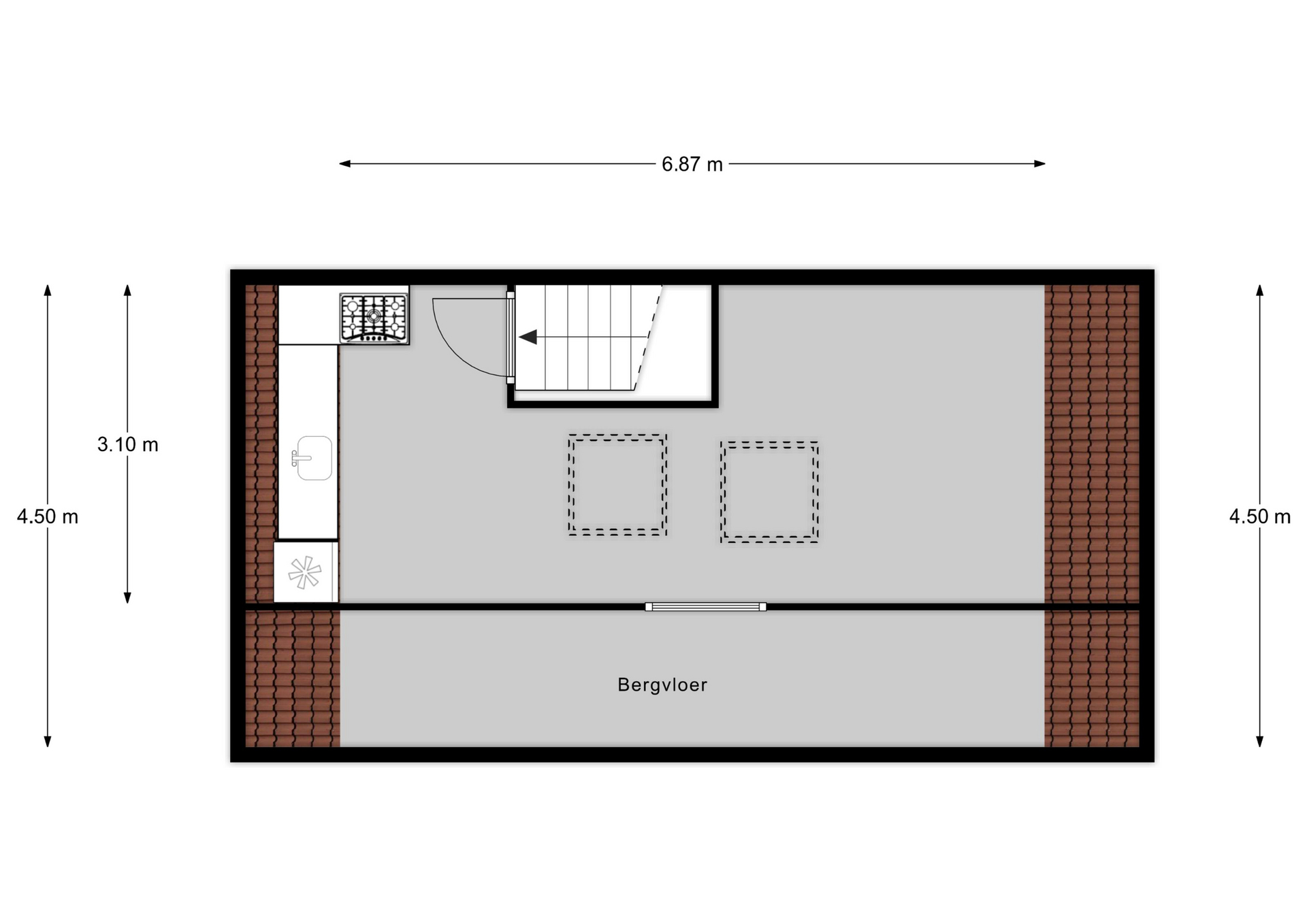
Sinds de aanschaf is de ruimte voorzien van een zeer complete inrichting. Denk hierbij aan een extra verdieping met een keukenunit, een zithoek en kantoorruimte én een toiletgroep met urinoir en douche op de begane grond!
De bedrijfsruimte is voorzien van:
– elektrisch bedienbare overheaddeur,
– separate loopdeur,
– uitgebreide elektrische installatie,
– eigen toilet met douche,
– verdiepingsvloer,
– kantoorruimte, en
– keuken.
Kerngegevens:
– frontbreedte ca. 8.87 m1,
– diepte bedrijfshal ca. 13.26 m1,
– goothoogte ca. 4.27 m1,
– nokhoogte ca. 5.67 m1, en
– overheaddeur 4.00 m1 breed x 3.74 m1 hoog.
Er is een hoofd watermeter en een hoofd elektra aansluiting gezamenlijk, de unit zelf heeft een watermeter intern in de toiletgroep en een eigen elektra meter in de gezamenlijke ruimte. Beiden worden betaald via de VVE met een eventuele naheffing per unit bij hoog verbruik. Maandelijkse VvE kosten: ± € 112,- p.m.
- 147 m2
Kenmerken Hoofdstraat 289a
Overdracht
| Status | Verkocht |
|---|---|
| Prijs | € 185.000,- k.k. |
| Aanvaarding | In overleg |
Oppervlaktes en inhoud
| Soort Object | Bedrijfsruimte |
|---|---|
| Oppervlakte | 147 m2 |
| Vloerbelasting | 1.000 kg p. m2 |
Parkeergelegenheid
| Parkeerplaatsen | 3 |
|---|---|
| Overdekt parkeren | terrein voor de loods aanwezig. |
| Onoverdekt parkeren | terrein voor de loods aanwezig. |
Bouw
| Bouwvorm | Bestaande bouw |
|---|---|
| Bouwjaar | 1950 |
| Bouwjaar toelichting | in 2019 gerenoveerd |
Overig
| Bedrijfshal in units vanaf | 147 m2 |
|---|---|
| Locatie | IN_WOONWIJK, LANDELIJK_GEBIED |
| Aantal lagen | 1 |
| Onderhoud binnen | Goed |
| Onderhoud buiten | Goed |